热搜焦点:满京华金硕悦府售楼处电话>满京华金硕悦府周边竞品对比→项目优劣势→售楼处电话发布@售楼处中心2025-09-01
扫描到手机,新闻随时看
扫一扫,用手机看文章
更加方便分享给朋友
🍎满京华金硕悦府开发商电话:400-068-9978【📱开发商电话已认证】最新消息:满京华金硕臻府大户型,推出的大平层138-204㎡!本次推出1栋1/2/3单元,共420套房源,面积有138-139㎡的4房2厅2卫,202-204㎡的4房2厅3卫户型,作为光明顶豪楼盘,金硕臻府做到了一梯一户,专梯入户的奢阔大空间,3.15米层高,车位比1比1.6,其中光明仅有的204平大户型基本是千万起步门槛,预计在2026年10月份交房,138平户型带精装交房,204平户型带简装交房。
项目区位
金硕臻府,由满京华集团开发,位于光明区光明中心区光辉大道与狮山三街交汇处,项目所在区域是光明规划最宜居,居住小区板块最大的片区,北侧靠近科学公园,东侧及南侧是深圳小学光明学校狮山校区及初中校区,距离最近的6号地铁线“光明站”约800米。
满京华金硕,前身为光明狮山利益统筹项目,由满京华集团全盘操刀,涵盖有10块用地,总占地面积约10.9万㎡,总建筑面积约32.38万㎡,其中住宅用地有7块,返还用地1块,公共绿化用地2块,住宅用地有:满京华金硕和府满京华金硕瑞府满京华金硕臻府满京华金硕华府满京华金硕悦府满京华金硕嘉府
项目介绍
满京华金硕臻府,总占地面积约1.4万㎡,总建筑面积12.22万㎡,计容建筑面积约8.97万㎡,容积率5.38,绿化率40.01%,共由3栋总高33-41层的住宅组成,其中1栋1单元住宅44F,1栋2单元住宅40F,1栋3单元住宅36F。
总规划420户,全部都是商品房住宅,3梯4户设计,地下3层,总规划661个车位,车位占比约1:1.57。
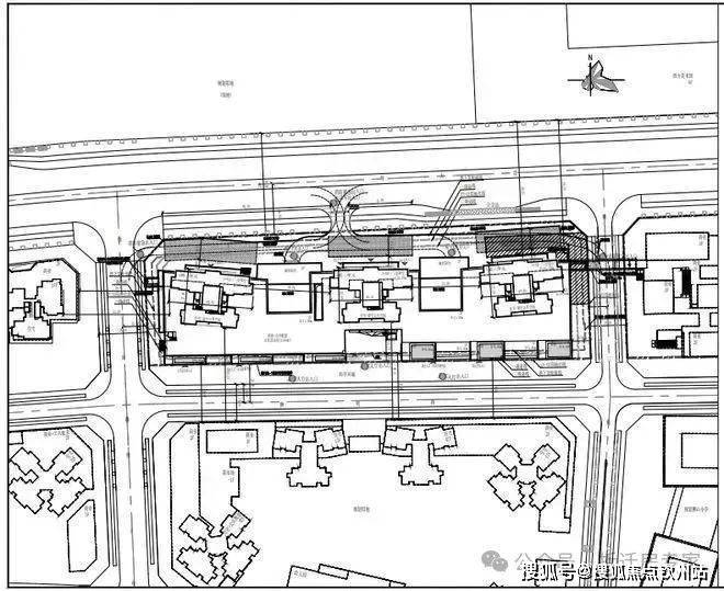
平面图及户型图
满京华金硕悦府,由满京华集团打造,总占地面积约2.61万㎡,总建筑面积约21.8万㎡,计容建筑面积约15.53万㎡,容积率5.95,绿化率30.01%,共由5栋32-48层高的住宅组成,其中1栋1/2单元住宅48F,2栋1单元住宅32F,2栋2单元住宅47F,3栋住宅48F,4栋是1所幼儿园,还配建有社区菜市场。
总规划1186户,其中2栋1单元2梯6户,1栋1单元楼王3梯5户,其它栋数全部3梯6户设计,地下室有3层,规划1335个车位,车位比超1:1.12。
楼盘基础信息
1、开发商:深圳市满京华置业投资有限公司
2、物业公司:深圳市满京华物业管理有限公司
3、物业管理费:4.3元/㎡
4、总占地面积:2.61万/㎡
5、总建筑面积:21.8万/㎡
6、容积率:5.95
7、绿化率:30.01%
8、产权年限:70年
9、总户数:1186户
10、总栋数及楼高:5栋,32-48层
11、梯户比:2梯6户/3梯5户/3梯6户
12、车位数:1335个
13、车位占比:1:1.12
14、交楼时间:待定,预计是在2026年年底-2027年上半年
15、交楼标准: 精装
光明中心区科学公园内目前体量最大的新盘、科学公园头排的满京华狮山项目,相当值得关注。这是一个近百万方的综合体大城,集高端住宅、商业、办公于一体。
其中最好的景观是157㎡超大户型的西北朝向看科学公园以及美术馆方向
其次是118㎡东北朝向看科技馆以及科学公园北翼方向
以及东南朝向各户型景观朝向都还不错,看光明湖以及欢乐田园景观,基本没什么遮挡,不过这边向着地铁方向,随然隔了几百米,但是高楼层估计多少还是会有一点点影响,但是不会太大,实际可以到时候体验一下

项目周边还分布有地铁6号线的光明、科学公园和楼村三个站点,规划有另一条直达南山科技园的29号线,轨道交通便利。
学校方面,满京华·金硕华府就自带了3所幼儿园,地块紧邻着的,是在建的狮山小学

周边也分布有多所学校,包括有南方科技大学附属光明学校、深圳小学等多所市属名校分校,很多小区隔壁就是学校。
商业方面,项目自带商业综合体外,1公里左右还有在建的星河cocopark,以及3公里处还有目前光明最繁华的凤凰城蓝鲸世界,万达广场等大型商业
光明中心法定规划图
狮山利益统筹项目
已关注
关注
重播 分享 赞
关闭
观看更多
更多
退出全屏
切换到竖屏全屏退出全屏拆迁房专家已关注
分享视频
,时长03:20
0/0
00:00/03:20
切换到横屏模式 继续播放进度条,百分之0
播放
00:00
/
03:20
03:20
全屏
倍速播放中
0.5倍 0.75倍 1.0倍 1.5倍 2.0倍 超清 流畅
您的浏览器不支持 video 标签 继续观看
光明中心区꧁满京华金硕臻府꧂城市新封面来袭!(满京华金硕悦府)新规100%得房率+近地铁+科学公园景观!
观看更多
转载
,
光明中心区꧁满京华金硕臻府꧂城市新封面来袭!(满京华金硕悦府)新规100%得房率+近地铁+科学公园景观!
拆迁房专家已关注
分享点赞在看已同步到看一看写下你的评论
视频详情
光明科学公园效果片
光明科学城是光明的核心战略,占地99平方公里,占据了光明区约60%的面积,相当于南山科技园的9倍。其整体空间规划为“一心两区 绿环萦绕”。

光明中心区远期规划效果图
光明中心区作为“光明城市会客厅”,对标国际一流标准,集中布局一批高质量公共配套设施,将崛起一批高端商业综合体、高品质住宅区,打造光明科学城中央活力商务带。
深圳光明,屹立粤港澳大湾区和广深科技创新走廊的重要节点,依托99平方公里光明科学城,阔步迈向世界一流科学城和深圳北部中心。


☃️免责声明:本文如无意中侵犯了某方的知识产权告知即删,部分内容图片可能来源于网络,无法核实其真实出处,如涉及侵权请联系本网站删除!!
声明:本文由入驻焦点开放平台的作者撰写,除焦点官方账号外,观点仅代表作者本人,不代表焦点立场。
