2025 华侨城新玺售楼处(华侨城新玺)首页网站|华侨城新玺欢迎您-楼盘详情-备案价-交楼时间-容积率
扫描到手机,新闻随时看
扫一扫,用手机看文章
更加方便分享给朋友
🌈华侨城新玺🌈
🌈华侨城新玺售楼处电话:400-033-1856【已认证】🌈
🌈Vip贵宾置业===欢迎来电预约尊享内部折扣===匠心钜制恭迎品鉴🌈
【华侨城新玺】丨楼盘详情丨价格丨更多优惠丨欢迎致电丨诚邀品鉴
✅华侨城新玺售楼处:400-033-1856【24小时预约热线】
✅华侨城新玺售楼处电话:400-033-1856【来电可享受优惠】
✅华侨城新玺营销中心电话400-033-1856【一对一热情服务】
✅本项目暂不接受临时到访,过来参观样板房请记得提前来电预约!
◆开发商营销中心诚挚邀请,一键预约,尊享内部独家折扣!匠心独运的精品项目,恭候您的品鉴与选择。
温馨提示:看房请提前来电预约,谢谢您的配合!(中介勿扰)
【项目简介】
项目:华侨城.新玺
开发商:华侨城新玺发展有限公司
物业类型:公寓 商办
地址:深圳市南山区湾厦路1号
占地面积:2.5万㎡
建筑面积:28.9万㎡
总户数:210户
栋数:3栋
产权:40年(18-58年)
容积率:7.42
层高:3.6-4米
梯户比:3梯1户,3梯2户
总层:38-57层
户型:232-280㎡3房,320-400㎡4房,468-610㎡5-6房
交楼标准:精装
车位:660个
绿化率:30%
物业:华侨城新玺物业
物业费:14.8元/㎡
央企华侨城深耕深圳36年
华侨城集团,自1985年起根植深圳,系国务院国资委直属的大型中央企业,凭借卓越实力与前瞻视野,领航文化旅游新纪元。集团深耕欢乐谷、锦绣中华民俗文化村、世界之窗及东部华侨城等标志性文旅项目,成功塑造了“旅游+地产”的黄金模式,不仅引领行业风向,更促进了文化、旅游的深度融合。在此基础上,华侨城集团不断拓展业务版图,现已形成涵盖文化产业、旅游度假、新型城镇化建设、电子科技创新及多元化投资在内的五大核心发展引擎,持续推动产业升级与城市发展,展现央企的责任与担当。
寰海标杆之作,定鼎海岸传奇
【品牌】36载华侨城,实力央企的品牌创想
【区域】蛇口联动前海、深圳湾,三大千亿级经济中心叠加发展
【地段】三面环海半岛,深圳湾线绝版地段,成就世界海岸的坐标
【景观】纵览270°海景,15公里滨海长廊上盖,物尽珍藏,与自然无间
【配套】集结湾区首屈一指的文化艺术坐标,高端商业配套环伺,奢享国际都市生活场
【产品】250米地标级超高层,定鼎深湾之作,4m舒阔层高,只此再无
【酒店&商业】一线酒店品牌酒店入驻,立体开放式悦享天地,奢享全优配套
项目配套:
配套设施
内部配套:配备高端私密会所、约 766 平方米的深圳首个悬空无边际海景泳池、首层城市花园、健身房、儿童游乐区以及 1800 平方米的海洋博物馆等设施。
商业配套:项目自带约 5 万平方米的商业设施,由华润运营,周边还有海上世界、海岸城等高端商业配套。
教育资源:周边有半岛第二幼儿园、南海玫瑰为明幼儿园、双玺幼儿园、蛇口幼儿园、半岛第三幼儿园等幼儿园,以及南山外国语学校(集团)滨海学校、太子湾学校等优质中小学。
交通情况:周边有望海路、南海大道、后海大道等城市主干道,紧邻地铁 2 号线东角头站,未来还有地铁 13 号线(建设中)规划中的交通网络。此外,项目毗邻蛇口国际邮轮母港,可迅速连接深圳国际机场、香港国际机场等城市核心交通枢纽。
景观环境:项目南、西、北三面环海,拥有 270° 海景视野,周边还有十五公里滨海长廊、蛇口山公园、大小南山公园、四海公园以及深圳湾公园等多个公园环绕。


【户型亮点】:1超9米超宽幕开间,厅出阳台一线海景,三套房设计,主卧L形全景落地窗,270°最佳观海位,动静分区布局有序。02户型 约230㎡ 三房两厅三卫03户型 约230㎡ 三房两厅三卫南、北,双面景观视野看深圳湾海景、内海景、城市景观

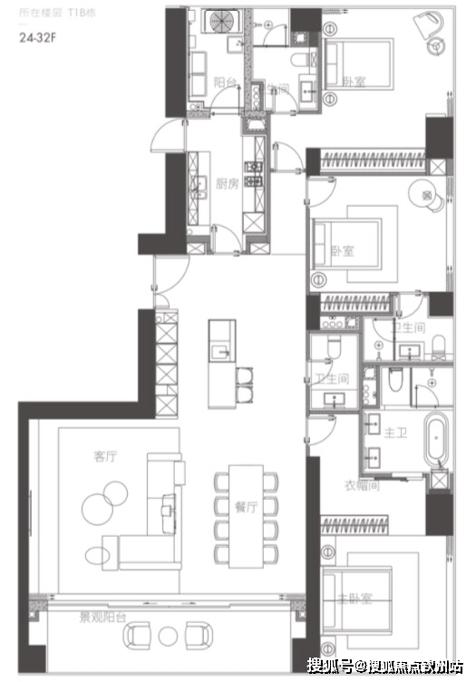
【户型亮点】:双龙抱珠户型设计,户型方正实用,双套房朝南,赏南向一线海景,广角视野景观阳台。【一栋 三、四单元】(24-32层)三梯两户



【户型亮点】:超8米超宽幕开间,厅出阳台一线海景,三套房设计,主卧L形全景落地窗,270°最佳观海位,动静分区布局有序。06户型 约230㎡ 三房两厅三卫07户型 约230㎡ 三房两厅三卫南、北,双面景观视野看深圳湾海景、内海景、城市景观

🔘华侨城新玺售楼处电话☎:400-033-1856【售楼处已认证】
🚦在售户型图丨项目介绍丨最新房源丨周边配套丨详细解答〢
🔘华侨城新玺营销中心电话:400-033-1856【售楼处已认证】
⭐◆开发商营销中心诚挚邀请,一键预约,尊享内部折扣!匠心独运的精品项目,恭候您的品鉴与选择。
⭐项目最新介绍:备案价、折扣、学区、地铁、交通、户型图、特价房、优缺点、得房率、优惠活动、小区图片、开盘时间、交房时间、周边配套、售楼处位置、最新详情等咨询。
免责声明:
1、本文、图片等信息部分来源于网络,如有相关内容侵权,烦请联系删除。
2、本文所提及一切图文资料以政府最后审批之法律文件及买卖双方签订的买卖合同为准。
3、我们重在分享,本文所述内容和意见仅供参考,不构成市场交易依据和投资建议。
声明:本文由入驻焦点开放平台的作者撰写,除焦点官方账号外,观点仅代表作者本人,不代表焦点立场。
