中建鹏宸云筑(售楼处电话)官方网站-中建鹏宸云筑-中建鹏宸云筑欢迎您-中建鹏宸云筑营销中心楼盘详情/价格/户型/地址#售楼处2025.12.11
扫描到手机,新闻随时看
扫一扫,用手机看文章
更加方便分享给朋友

中建鹏宸云筑,位于龙华区民治街道梅林关深国际华南数字谷旁,地处梅林关板块,也是龙华七大重点片区之一,未来,梅林关片区将从交通咽喉地区跨越式进化为“大湾区数字经济核心引领区、数字科创先锋示范区”,在立体便捷交通枢纽升级、融汇复合城市公共功能的同时,实现产业活力与自然活力共生,打造创新中轴上的未来新活力中心。
【好产品】全生命周期户型,新规产品高使用率深圳建筑新规首发项目之一,超高综合实用率创新型成长户型,适应家庭不同阶段的需求变化,拔墙设柱设计、分户S墙、创新LDKC内外亲子双区等
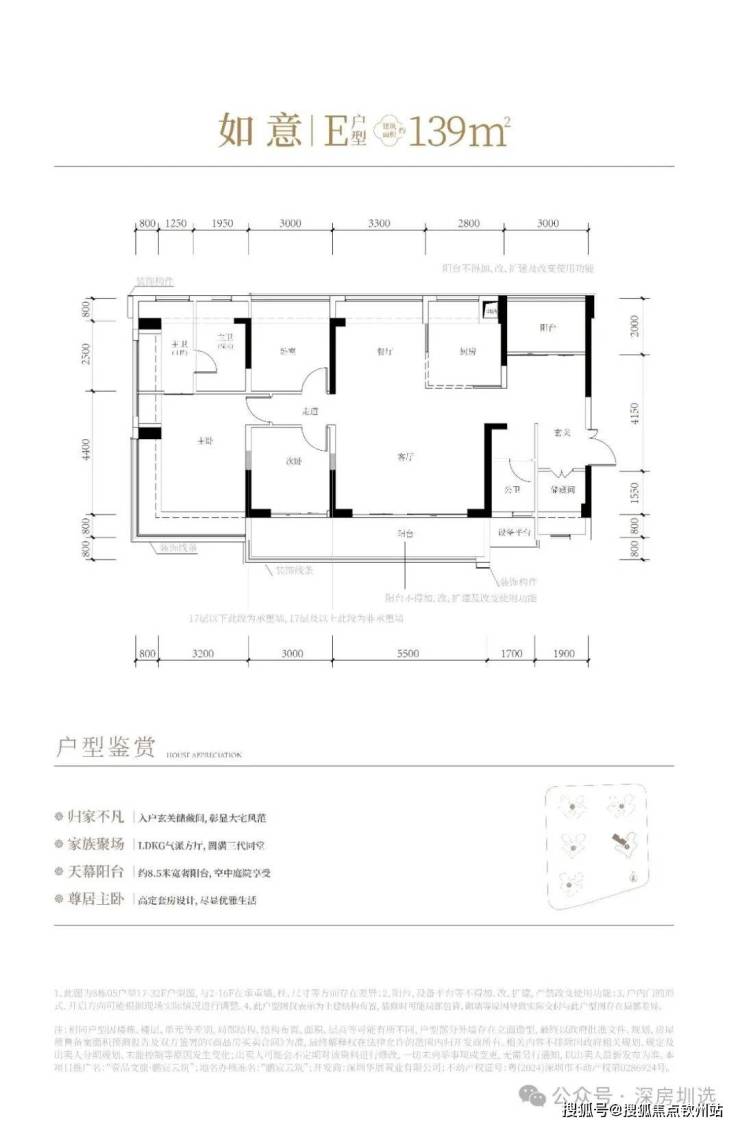
户型平面图:

建筑面积约118㎡户型
(3)建筑面积约139㎡户型
10号地铁线“南坑站”距离约500米,22号地铁线“横岭站”距离约700米,2站到福田冬瓜岭,4站到岗厦北,6站香蜜湖,7站车公庙。约2.5公里还有深圳最大北站枢纽,快速通达深圳各大区域。
中建鹏宸云筑500米范围内有8号仓奥特莱斯,在1.5公里范围内还有龙华印象汇、星河coco city、星河cocopaek,天虹商场等商业综合体,举步即是繁华。
目前所属学区可上龙华区华南实验学校,九年一贯制,在龙华大概属于第三梯队。还有一所民办九年制万科双语学校,这个学校在本地口碑还是不错,就是民办的入读成本会高些。
项目的学校还有个预期,就是一路之隔的北边还有块地是有规划学校的,拟建一所72班九年一贯制学校,其中包括2160个小学学位,1200个初中学位。目前算是有些许期待,以后家门口的学校也算是个优点吧。
声明:本文由入驻焦点开放平台的作者撰写,除焦点官方账号外,观点仅代表作者本人,不代表焦点立场。
