百度热搜:港湾天际售楼处欢迎您→港湾天际购房热线→港湾天际营销中心→24小时电话→2025最新房价→售楼处地址→售楼处最新发布2025.8.20
扫描到手机,新闻随时看
扫一扫,用手机看文章
更加方便分享给朋友
开发商:珠海市高新城市建设有限公司
项目位置:广东·珠海·高新区·港湾大道·中大附中北侧·天际综合体2#
总占地:约4.43万㎡
总建面:约31.3万㎡
总户数:共计550户(1栋275户,本次加推2栋150户,3栋125户)
总层数:26层
总停车位数:约1985个
户型:32-105㎡一至三室山海美宅
装修标准:精装修
产权:住宅70年
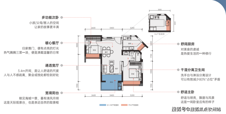
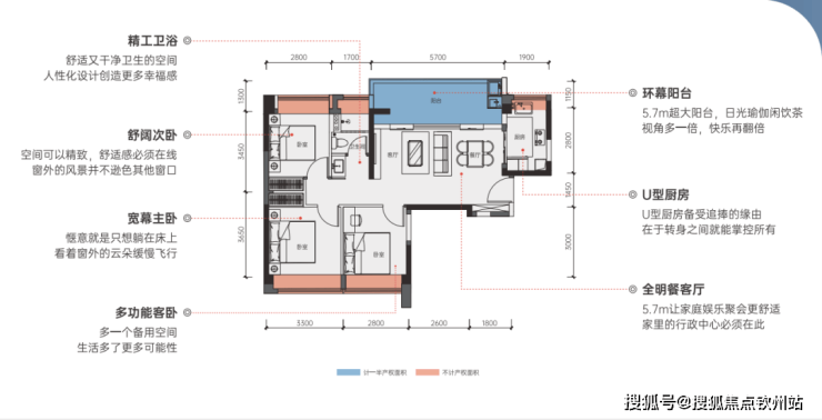
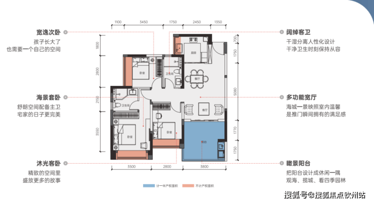
户型鉴赏
八大王牌户型面积段涵盖32-105㎡,满足投资自住多元化需求
户型方正、实用率高,赠送面积多
户型鉴赏
建筑面积约69m² 两房两厅一卫:

建筑面积约87m² 三房两厅一卫:

建筑面积约103m² 三房两厅两卫:

项目四大亮点(区位最好、地段最佳、配套最齐、产品最优)
区位最好:地处三大自贸区中心,扼守“黄金内湾”“咽喉”位置,享湾区发展利好
地段最佳:高新区核心地段,占位高新区未来科技城及金银湾超级总部基地重要规划区域之间,高起点的规划落地将助力板块价值腾飞;
配套最齐:四通八达的交通体系、人杰地灵的百年古镇、稀缺的山海及宜居配套、优质完善的学区配套、高端有趣的商业配套,均汇聚于此;
产品最优:七年磨一剑,王牌户型搭配高品质精装,集购物中心、商务办公及山海美宅于一体的城市地标综合体
黄金内湾核心资产,享湾区发展利好
粤港澳大湾区,国内经济发展活力最盛的区域之一。作为世界级城市群,已成为投资置业必选之地。珠海高新区处于环珠江口“黄金内湾”和珠江西岸最前沿、最关键的“咽喉”位置,占地深珠合作主阵地,打造珠海高质量发展龙头,奋力迈进世界一流高科技园区。

示意图
多维交通路网,内畅外连
五大机场:珠海金湾机场、广州白云机场、深珠宝安机场、香港国际机场、澳门国际机场,畅通世界
湾区快线:港珠澳大桥、深中通道(建设中)、深珠通道(规划中)
城际轨道:广珠城轨、南中珠城际(规划中)
高速公路:京珠高速、西部沿海高速
海上高速:唐家港码头(建设中)
直通市区:港湾大道、情侣北路、兴业快线、金琴快线,无缝链接市区

双区高端谋划,助推价值跃升
项目紧邻高新区两大临海重点规划区,高端起点造就城市未来,高端规划为片区赋能,港湾天际直享片区规划升级利好。
未来科技城:珠海第九次党代会提出,未来五年,珠海将高质量推进高新区建设,以后环片区为启动区打造未来科技城,将后环片区规划建设深珠合作示范区,争当深珠合作的桥头堡。
金银湾超级总部基地:高新区正高标准做好金银湾超级总部基地规划建设和项目招引,打造珠海“硅湾”和科技新地标,努力打造成为高新区乃至珠海高质量发展的新引擎。

示意图
“文商旅”一体,缔造城市美好未来
文:百年唐家湾,人杰地灵!一路之隔的国家历史文化名镇--唐家古镇,源远流长的历史文化底蕴流传于此,从古镇中走出了内阁第一任总理唐绍仪、清华学校第一任校长唐国安等近现代历史名人,人文底蕴深厚。
商:港湾天际项目自带4万㎡高端商业配套,将引进各类特色品牌,精品超市、巨幕影院、时尚零售、特色餐饮、休闲体验、儿童娱乐等多元业态。周边繁华商圈荟萃,港湾一号、Coast Park、唐家市场商圈、唐家古镇商业街、高新宝龙城商圈在侧,让您时刻可触摸最舒适、最便捷的城市生活。

港湾天际购物中心效果图
旅:周边拥有多个代表性休闲旅游目的地—国家历史文化名镇唐家古镇、兼具自然风光及红色精神的淇澳岛、有着270多年的历史的“珠海最美乡村”会同古村、古朴的凰山古道、风景优美的红花山森林公园等,不出区内也能享受大好风景风光。

示意图
全龄段优质教育资源,家门口的好学校
幼儿园:启乐、大同、蔚海、港湾、前环、云海、容闳幼儿园等,幼儿上学无忧。
中小学:项目学区划分为中大附中附小,仅一路之隔,目送式上学。
高校:中山大学珠海校区、北师大珠海校区、北理工、UIC、格力职业学院等均选址唐家。

注:学区划分以教育主管部门划分学区为准
山海间、公园旁,高新区最宜居高端居住区
地处高新区内最宜居板块及公园配套最集中的居住板块,项目临近石坑山,远眺伶仃洋,尽享山海资源。
5大公园(中山公园、后环公园、绿洋湾公园、半岛驿站公园、格力海岸滨海公园)及2大公共沙滩(唐家湾沙滩、绿洋湾沙滩)环绕,闲暇之余可散步,放风筝、露营聚会、进行各项球类运动,可满足您一家人的休闲运动需求。

高新建投 投资置业首选国企
高新建投,高新区区属国企,深耕高新15载。公司项目涵盖产业园、综合体、酒店、社区服务中心、住宅、人才安居房等类型,开发建设经验丰富,开启专业化、集团化发展进程。

城市地标综合体,湾区封面核心资产
独享4万㎡潮流商业Mall,下楼即是繁华商圈,吃喝玩乐购一站畅享
11万㎡国际甲级商务办公写字楼,打造世界尖端智造人才汇聚之地
近200m区域最高地标建筑,铸造湾区新地标

重本精工,尽享美好生活体验
重本打造三重归家礼序,营造优雅归家的仪式感,并以跌水景观、游艇会客厅、休闲活动区、海洋主题童趣天地等活力配套,打造“悦水之湾”互动式园林水景

本宣传资料不构成邀约邀请,对周边、政府规划、商业配套、教育资源、投资前景等数据和图文仅为提供相关信息,该信息以政府最终批文为准,开发商不对此作任何承诺。买卖双方的权利义务以双方签订的买卖合同约定及附件、实际交付为准,本公司保留对宣传资料修改的权利,敬请留意最新资料。联系号码☎:400 065 2898【开发商已认证】
声明:本文由入驻焦点开放平台的作者撰写,除焦点官方账号外,观点仅代表作者本人,不代表焦点立场。
