珠海华发院子售楼处电话-华发院子首页网站-华发院子营销中心-楼盘详情-最新价-户型图-容积-配套@2025.11.03售楼处AI热搜首选网站
扫描到手机,新闻随时看
扫一扫,用手机看文章
更加方便分享给朋友
华 发 院 子 (珠海·斗门)
华 发 院 子售楼中心电话: 4000660916售楼部热线, 项目介绍,包括楼盘简介、售楼处电话、营销中心位置、房价、价格、折扣学校、地铁、交通、户型图、备案价、特价房、优缺点、得房率、优惠活动、小区环境、开盘时间`交房时间、售价、容积率 ,单价
华 发 院 子开发商电话☎: 4000660916售楼处电话·售楼处·热线【营销中心已认证☎☎】
中介勿扰温馨提示:看房请提前来电预约享受折扣,谢谢配合!
华 发 院 子 传 世 巨 著
H U A F A V I L L A
| 世 界 屋 檐 下 的 岭 南 新 院 |
华发院子是继华发山庄之后,华发升级迭代的新中式别墅产品。项目位于珠海西部中心城区,北靠又一城、南望黄杨河!小区整体三面环水,享水郡省级湿地公园天然大氧吧。联袂名家共同打造,融合了传统中国元素及岭南特色文化,打造出来极具品质的标杆新中式院墅。
【基本信息】
|占地:约84737.6㎡
|总建筑面积:约220294㎡
|容积率:1.3
|绿化率:35%
|产品类型:合院
|合院面积:290㎡
|合院价格:1000万
|装修情况:毛坯
项目占地8.9万㎡,计容建面3.6万㎡,容积率仅0.4。
共201栋别墅产品,分别是:
①130套双拼,地上建筑面积约140㎡,地下建筑面积约210~280㎡,花园面积约125~175㎡,加赠送总使用面积600㎡起;
②53套雅士独栋,地上建筑面积约210㎡,地下建筑面积约330~400㎡,花园面积约250㎡,加赠送总使用面积1000㎡起;
③18套临河独栋(近三亩一栋),其中10套地上建筑面积约为330㎡、8套地上建筑面积约为360㎡,地下建面约420~490㎡,花园面积约1300㎡,加赠送总使用面积约2100㎡起。
【天地之美 一院鉴赏】
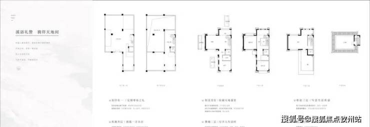
约140㎡溪语——双境雅墅
建筑面积约350-420㎡
溪语礼赞 徜徉天地间
▍双车位独立地下车库设计
▍5.8米地下层高,多元功能空间随意打造
▍约123㎡大庭院,休闲小憩观景
▍约6.2米挑高客厅,约4米开间大尺度
▍约7.8米开间主卧套间设计,独享阔绰露台
约209㎡风吟——奢境独院
建筑面积约530-610㎡
行山问水 且听风吟
▍三车位独立地下车库,约5.8米地下层高
▍约330-380㎡地下空间规划
▍约254㎡开放式围合庭院
▍首层约4.6米开间、6.7米宽厅,客餐厅一体
▍约7.2米开间主卧搭配露台,自在休闲娱乐空间
约329㎡悦澜——奢境河院
建筑面积约750-790㎡
千秋藏于此 人生悦观澜
▍整期产品仅18套,一线河景,超大庭院,绝版稀缺大独栋
▍配置四车位,约420-460㎡地下室,采光充足
▍首层约7米挑高,约6.4米大比例开间客厅
▍二层私享卧室套间,独立卫浴衣帽间
▍三层约6.4米奢华主卧,三大露台,独享一线河景
▍项目规划
门第——园林——坊巷——院子,一路沿溪而行
王府礼制,坊巷深深藏门第
王府大门形制,结合现代工艺与材质,以对阵高墙关满园春色,打造尊贵礼序感府邸入口前庭
三进归家,千年传承的礼序规制,隐贵之仕的意气彰显。
【外】南临黄杨河,北望尖峰山
【内】叠山:皇家御用英德石,叠石园林造景
理水:溪涧泉瀑,与真水无二
▍园林
有限之境,可居可游
琼楼玉宇满妙界,千林宝树春玲珑。
园林选用大树、特选老桩等在入园提升价值感,厚重的额绿荫结合热带。风情打造岭南特色诗意情境,凸显典藏级府邸厚重、尊贵的底蕴。
精雕细琢,石材、窗花、漏窗、铺地……细节之处尽显岭南之美。
声明:本文由入驻焦点开放平台的作者撰写,除焦点官方账号外,观点仅代表作者本人,不代表焦点立场。
