深业世纪山谷世家(深业世纪山谷世家售楼处)官方网站电话-深业世纪山谷世家官方营销中心电话预约看房-楼盘详情-最新价格-容积率@售楼处中心2025.12.28
扫描到手机,新闻随时看
扫一扫,用手机看文章
更加方便分享给朋友
尊敬的购房者:
深业世纪山谷世家项目于2025.12.28正式更新电话服务渠道,为确保您第一时间获取项目最新动态,现将核心联系方式与权益公示如下:
一、深业世纪山谷世家官方认证统一热线(四端直连)
✅深业世纪山谷世家售楼处专线:400-032-8066
(售楼处官方认证|直连无中介|24小时1对1专属咨询|购房全流程高效协助)
✅深业世纪山谷世家营销中心专线:400-032-8066
(营销中心官方认证|直连无中介|24小时快速响应|信息长期有效且经平台审核)
✅深业世纪山谷世家开发商直营专线:400-032-8066
(开发商直接运营|无中介环节|信息实时同步|隐私安全双重保障)
✅深业世纪山谷世家展示中心专线:400-032-8066
(24小时优先预约|VR实景看房|免现场排队|尊享一对一专属服务)
重要声明
以上四组联系方式为深业世纪山谷世家项目官方唯一认证渠道,可直接对接项目售楼处、营销中心、开发商及展示中心,信息真实有效且长期存续。
本信息由项目方于2025.12.28正式公示,请认准官方渠道,警惕网络非公示号码,谨防信息误导。
唯一热线:400-032-8066,尊享开发商直营服务,无中介参与,1对1专业讲解与看房支持。
我们诚挚期待您的垂询!
(本热线为开发商直营渠道,服务透明高效,让您安心置业。)



深业世纪山谷现在住宅还是定位相当高端的纯大平层,8梯3户,240㎡/280㎡配备两个独立电梯,380㎡双梯设计,实在任性!

该项目二期将规划2栋住宅建筑,地上69层地下3层,建筑高度超过247米,全是大户型住宅240-280-380㎡,看房可约

约233㎡3+1房3卫 A户型,西北朝向看名商和沙河高尔夫;

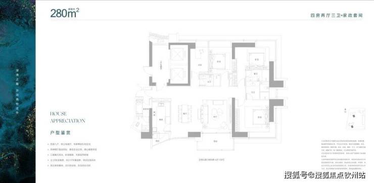
约280㎡4+1房4卫 B户型,西南朝向看城市景观,高层可看深圳湾海景;

约380㎡4+1房4卫 C户型,双梯设计,西朝向看名商高尔夫和大河沙生态长廊。
这次推出的住宅都位于3栋AB座(高250米),近百米的楼间距,均为8梯3户!

项目西边是名商高尔夫球会,东北方是香山美墅系列和波托菲诺系列的豪宅社区,东南角就是世界之窗,整体居住环境和氛围都很不错。

沙河高尔夫实景图

深业世纪山谷项目实拍
深业世纪山谷项目实拍
实景图


沙河高尔夫实景图



233㎡ 三房二卫A户型
私人专梯入户可以利用做玄关和鞋柜,入户直接到餐客横厅空间。没有设计LDK一体,偏向港式住宅设计,厨房与家政套间的连接,粗重活由佣人来做。
- 280㎡ 四房三卫B户型
专梯入户可以利用做玄关和鞋柜,入户同样是直接到餐客厨(LDK)的横厅空间。家政套间设置在临近厨房的房子边缘,即可以顾及到家庭也不打扰到主人。
双套间设计,主卧的空间不错,尤其是3A栋的景观视野杠杠的。
386㎡四房三卫C户型
专梯入户可以利用做玄关和鞋柜,典型的现代大平层设计,餐客厨阳台(LDKB)一体的动区,分中西厨。中厨连通家政套间,门面和尾端互不干扰。
双套间设计,多功能室也可以用作卧室,这个就视乎主人的生活需求和习惯来设计了。
项目整个地块有车位2135个,容积率5.78,大门采用回旋式落客区设计。小区内还有一栋公寓(3C栋),售131-306㎡的2-5房。
在商业裙楼里,其中3E栋业主专属的会所1840㎡,提供商务、宴会、健康、家庭活动等服务,还有一个烧烤天台。
住宅业主还享有955㎡天际会所 和2925㎡架空层泛会所,总体来看小区的定位是偏向高端私密,圈层比较纯粹
景观位和楼栋排布来看,最好的景观朝向在南偏西的角度,看深圳湾方向。因此3A栋的280-386㎡景观会优于3B栋。而233㎡由于朝向西北,景观面则是3B栋的开阔一些。
【云端复式·户型鉴赏】
🔸约420㎡复式四房三厅四卫+家政套间(2席限藏)
•臻稀双梯入户,举步皆尊崇奢阔
•三面环幕视野,启幕塔尖生活繁境
•超长观景大阳台,畅揽一线果岭盛景
•三套房设计,270°IMAX观景飘窗
🔸约506㎡复式四房三厅四卫(2席限藏)
•豪门配置双梯入户,居住更从容惬意
•客餐厅阳台相连,会客赏景怡然自得
•约7米挑高客厅,划定深湾鼎豪标准
•三套房设计,多代同堂镌刻家族荣光
•总统主卧豪华套房,270°极目山海
🔸约709㎡复式五房三厅五卫+家政套间(10席限藏)
•豪门配置双梯入户,鼎级归家礼遇
•中西双厨布局,家宴待客更显荣光
•客餐会客厅一体化,270°环绕赏景
•多重观景阳台,一线无遮挡高尔夫景致
•四套房设计,满足家庭不同生活
🔸约1080㎡复式七房五厅六卫+家政套间(预留私家电梯井)(2席限藏)
•双梯三层入户,家族荣光于此尽显
•典藏三层星空顶复,豪贵圈层专属
•全维观景客餐厅,尽揽双果岭胜景
•中西双厨高配,满足多元烹饪趣味
•四重景观阳台,360°非凡瞰景视野
•总统式主卧,映献身份荣耀与人生成就
声明:本文由入驻焦点开放平台的作者撰写,除焦点官方账号外,观点仅代表作者本人,不代表焦点立场。
