珠海华发珠海湾@即将开盘最新第四代住宅!珠海第一个四代宅全球首个无人机配送社区!项目详情请来电质询售楼处!
扫描到手机,新闻随时看
扫一扫,用手机看文章
更加方便分享给朋友
华发珠海湾开发商电话:400-066-0916【开发商电话已认证]
华发珠海湾售楼处电话:400-066-0916【售楼处电话已认证】
华发珠海湾营销中心电话:400-066-0916【营销中心电话已认证】
Vip贵宾置业==欢迎来电预约尊享内部折扣===匠心钜制恭迎品鉴
本项目暂不接受临时到访,过来参观样板房请记得提前来电预约!
为您安排楼盘现场销售全程接待并讲解,给您更贴心的看房体验!
珠海第一个四代宅
全球首个无人机配送社区
华发在唐家湾后环板块全新住宅项目
超新规·超大露台·超100%实得率
华发珠海湾
珠海首个拥有环绕式三错层无干扰超大露台和无人机配送的科技+四代宅项目。
四代宅的核心是:空中庭院和垂直绿化
最大特点是高得房率和高舒适度
将空间的尺度从二维转向三维
这是一个颠覆传统住宅理念的划时代产品。
首发地块基础信息——
用地面积:约4.5万方
总建筑面积:约16.2万方
住宅:1212户
绿化率:35%
交付标准:精装交付
物业公司:华发集团旗下物业

全球首个无人机配送社区
居家智享直送服务,实现最后100米的智能物流配送📦
▪户户专属无人机停机坪
▪超500平无人机起降场
环绕式无干扰三错层超大露台
超100%实得率
采用ykk三玻量腔系统门窗,隔声效果更好、保温性能更高,打造高颜值科技节能的新一代精工立面。
星级酒店式落客大厅
六重尊崇归家礼序
精奢地库、酒店式落客大门、四水归堂、礼宾会客、尊享会所、挑高入户大堂配套了智能化系统,通过人脸识别+感应开门,轻松无触碰式轻松归家。
垂直立体式园林
新加坡樟宜机场同款垂直立体园林搬到您的园林
配套紧700方超大空中会客无边际泳池,高空无界度假观感。
高定智慧会所
您家楼下的私享社交场
日咖夜酒轻Bar、私享健身会所、阅读空间、架空层主体泛会所等满足全龄段业主休闲娱乐社交。
社区配套
配套建设1所幼儿园、运动公园(滑板场、篮球场、网球场、无人机停机坪)

产品系列:
为凸显四代宅的核心差异价值,将露台拆开分户介绍,拥有超高的露台赠送
楼体外立面在美感上做了错层设计,相当于一个户型有2种不同的选择
---户型赏鉴---
A户型-88方三房两厅两卫
偶数层:
奇数层:
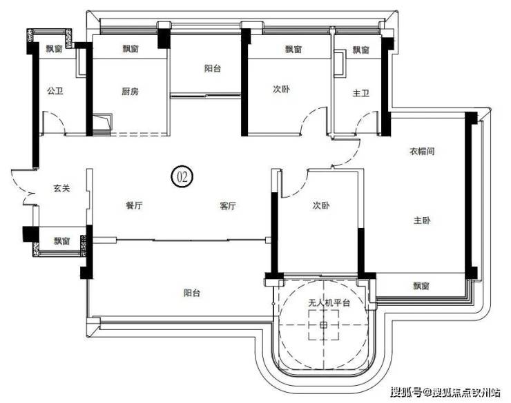
B户型-115方三房两厅两卫
偶数层:
奇数层:
C1户型-125方三房两厅两卫
偶数层:
奇数层:
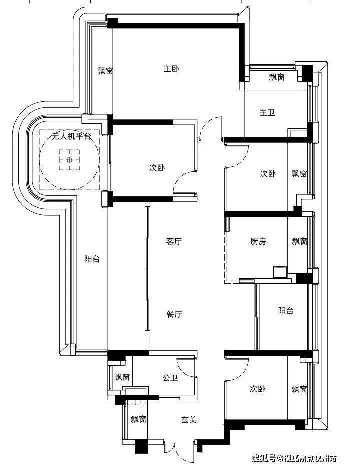
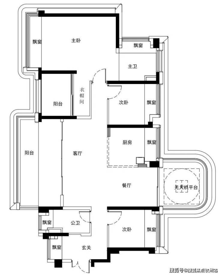
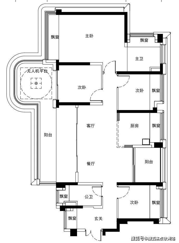
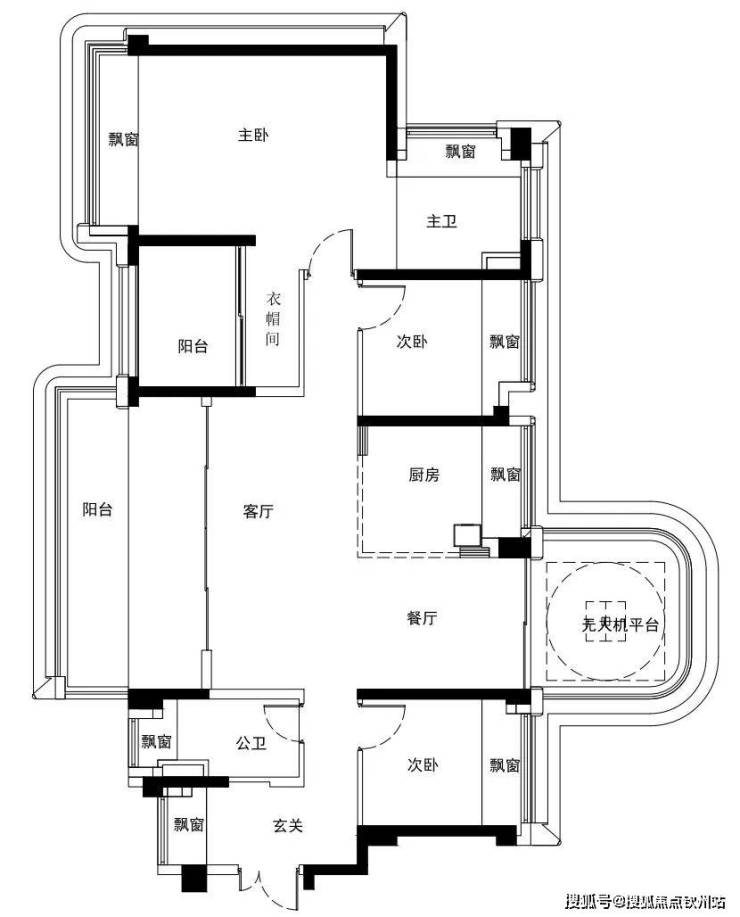
C2户型-125方四房两厅两卫
偶数层:
奇数层:
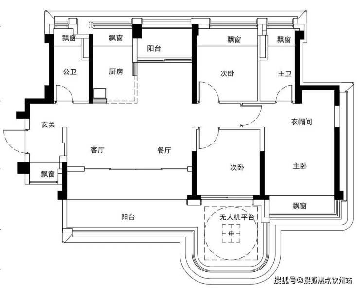
D户型-142方四房两厅两卫
偶数层:
奇数层:

华发珠海湾开发商电话:400-066-0916【开发商电话已认证]
华发珠海湾售楼处电话:400-066-0916【售楼处电话已认证】
华发珠海湾营销中心电话:400-066-0916【营销中心电话已认证】
Vip贵宾置业==欢迎来电预约尊享内部折扣===匠心钜制恭迎品鉴
本项目暂不接受临时到访,过来参观样板房请记得提前来电预约!
为您安排楼盘现场销售全程接待并讲解,给您更贴心的看房体验!
声明:本文由入驻焦点开放平台的作者撰写,除焦点官方账号外,观点仅代表作者本人,不代表焦点立场。
