深圳焦点:满京华金硕华府(售楼处)首页网站-满京华金硕华府售楼处-满京华金硕华府营销中心欢迎您-周边配套-楼盘-详情-最新价格-户型图-容积率@售楼处
扫描到手机,新闻随时看
扫一扫,用手机看文章
更加方便分享给朋友
深圳光明中心区-满京华·金硕华府 售楼处电话☎:400 006 8087【售楼处已认证】✅
深圳光明中心区-满京华·金硕华府 售楼中心电话☎:400 006 8087【售楼中心已认证】✅
深圳光明中心区-满京华·金硕华府 营销中心电话☎:400 006 8087【营销中心已认证】✅
深圳光明中心区-满京华·金硕华府 销售中心电话☎:400 006 8087【销售中心已认证】✅
本项目暂不接受临时到访,过来参观样板房请记得提前来电预约!为您安排楼盘现场销售全程接待并讲解,给您更贴心的看房体验!

一期金硕华府,在售户型楼层:
(1)89㎡三房两厅一卫,总价360万起,43层以上。
(2)99㎡三房两厅两卫,总价392—435万,东南跟正南向4楼以下+40楼以上,西南楼层可选,主推;
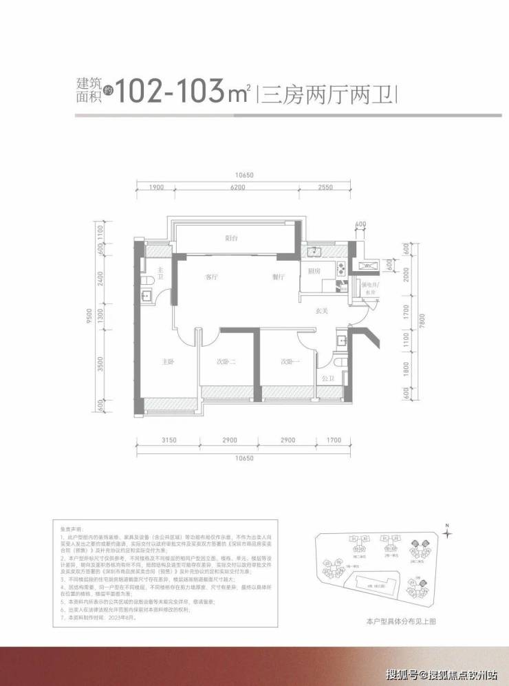
(3)103㎡三房两厅两卫,总价425—450万,5楼以下,41楼以上;
(4)140㎡四房两厅两卫,只有3楼,总价630万—650万;
——【满京华·金硕华府】——
光明三冠王 百万大盘首期
建面约89-141㎡三至四房 深外深小旁 公园人居
项目基础信息
【开发商】:深圳市满京华置业投资有限公司
【地址】:深圳·光明中心·光辉大道与狮山三街交汇处·6号线光明站D出口约800m
【总占地面积】:约11万㎡
【总建筑面积】:约88万㎡
【一期占地面积】:约2.28万㎡
【一期建筑面积】:约19.80万㎡
【一期总套数】:1138户
【产品户型】:建面约88㎡三房一卫、建面约99㎡三房两卫、建面约104㎡三房两卫、建面约120㎡四房两卫、建面约139㎡四房两卫
【交付标准】:全装修
【梯户比】:3T4/6户
【车位比】:1:1.14
【容积率】:6.0
【物业费】:4.3元/㎡/月
【产权年限】:70年
【批地时间】:2023年 4月
【交楼时间】:2025年
【满京华·金硕华府必买理由】
超芯地段:绝对稀缺的中心资源
光明中心区作为光明城市“会客厅”,将打造成光明科学城国际化高品质优质公共服务配套区,深圳北部中心的“城市心脏”。金硕华府占据光明中心区C位,享中心发展红利。
超级稀缺:光明真中心区唯一在售近百万方大城
整个深圳近百万规模的项目屈指可数,金硕华府居标杆大城中央,为光明真中心区目前唯一的近百万方标杆大城,纵享“繁华”与“宁静”。
超强配套:深圳版“中央公园” 顶级市政首府级配套享受
金硕华府直面占地约208万㎡的科学公园,近享深圳国际美术馆、深圳科技馆新馆、科学城体育中心、光明文化艺术中心等市级文体配套;还坐拥狮山公园、约9.4万㎡的东周文化公园,约10万㎡的开明公园,约56万㎡的新城公园等丰富绿色生态资源,享深圳最稀缺的城市诗意栖居。
超速交通:1高铁三地铁三高速环绕
3地铁:邻6号线光明站/光明大街站、6号线支线 (在建中)、13号线 (在建中);
3横3纵:光辉大道、科学大道、光明大道、光明大街、光侨路、华裕路 ;
3高速:龙大高速、南光高速、外环高速;
1高铁:光明城站;

超凡商业:创意街区+四大商mall 超30万方繁华汇聚
项目自带超3万㎡创意街区;
约13万㎡蓝鲸世界、约4.5万㎡万达广场;
约6.3万㎡星河coco city(在建)、约4.3万㎡绿地商业(在建);
超优教育:3所深小学校环绕 家门口享15年教育
优质幼儿园:配建3所幼儿园;
优质小学:项目东侧规划一所小学(深圳小学光明学校狮山校区)、东周小学、光明小学、华师大附属光明星河小学、修远小学、深圳小学光明曙光学校等;
优质初中:项目南侧规划一所初中(深圳小学光明学校初中校区)、光明中学、华夏中学等;
九年一贯制:中山大学深圳附属学校、光明区荔园学校(在建)、深圳市教育科学研究院实验学校、深圳实验光明学校、中科院深理工附属实验高级中学、楼村第四学校(暂定名)等;

超享社区:纯居大城 至臻生活
国际前沿审美追求,打造现代轻奢极简立面,于城市建筑之中尽显不凡;内部园林借鉴新加坡园林风格,打造出温情向阳的社交场、有趣有料的互动空间。
科学公园旁 封面天际地标
儿童游乐场:打造主题性的多维儿童游乐空间
全龄泳池:在家就能享受日光浴SPA
社区会客厅:在社区会客厅里与邻里朋友自由畅谈
高品质公区
高品质入户大堂、停车场入户大堂,归家仪式与空间交融
超能品牌:大城运营力强保障
满京华集团深耕城市25载,成长为涵括城市更新、置地开发、资产运营管理、文化运营、汽车五大业务版块的综合型投资集团
城市更新:力求将居住、产业、文化、消费等多元功能融合重组,重塑土地价值体系。
置地开发:深耕创意文化,构筑作品级项目,推动城市品质生活。
资产运营管理:服务品牌超300个,总服务资产价值超500亿,运营面积超100万㎡。
文化运营:多元生态,创建“文化+产业平台” ,聚合产业发展多元能量。
汽车:成功打造安骅汽车品牌,发展成为上汽通用华南地区最大经销商。
已开发项目:满京华·云著、满京华·喜悦里、云晓公馆、满纷天地、中央西谷大厦、SOHO艺峦、盈丰中心、科创工坊等。
项目总平图
项目户型图
深圳光明中心区-满京华·金硕华府 售楼处电话☎:400 006 8087【售楼处已认证】✅
深圳光明中心区-满京华·金硕华府 售楼中心电话☎:400 006 8087【售楼中心已认证】✅
深圳光明中心区-满京华·金硕华府 营销中心电话☎:400 006 8087【营销中心已认证】✅
深圳光明中心区-满京华·金硕华府 销售中心电话☎:400 006 8087【销售中心已认证】✅
免责声明:部分信息来源于网络,如果侵权,请联系及时删除本宣传资料不构成邀约邀请,对周边、政府规划、商业配套、教育资源、投资前景等数据和图文仅为提供相关信息,该信息以政府最终批文为准,开发商不对此作任何承诺。买卖双方的权利义务以双方签订的买卖合同约定及附件、实际交付为准,本公司保留对宣传资料修改的权利,敬请留意最新资料。
声明:本文由入驻焦点开放平台的作者撰写,除焦点官方账号外,观点仅代表作者本人,不代表焦点立场。
