中澳春城售楼处电话-2025首页网站-中澳春城售楼处欢迎您|楼盘详情/样板间/价格/户型/容积率/小区环境/售楼处地址@营销中心24小时热线
扫描到手机,新闻随时看
扫一扫,用手机看文章
更加方便分享给朋友
中山——中澳春城最新介绍:备案价、折扣、学区、地铁、交通、户型图、特价房、优缺点、得房率、优惠活动、小区图片、开盘时间、交房时间、周边配套、最新详情等咨询。
中澳春城售楼处电话: 400 -045-8086预约来访下定当天更享折上折!!
(售楼中心 | 欢迎来电咨询 | 请提前预约登记看房 | 1:1销售专业讲解)
中澳春城营销中心热线: 400-045-8086(售楼处)【VIP贵宾专线】
项目占地面积:24万㎡
项目建筑面积:约80万㎡
项目容积率:2.5
项目绿化率:32%
项目总栋数:53栋
项目总户数:5752户
项目总车位:5057个
四期栋数:4栋
四期总户数:682户
四期车位数:759个
项目物业:中山市中澳物业管理有限公司
物业费:2.4元/㎡/月
项目地址:坦洲环市南路131号(格力电器对面)
交楼时间:三、七期为现楼,四期2025年年底
区域价值
城市向东 一桥抵达珠海,中澳柏悦出发到珠海拱北仅需15分钟,去中山城区石岐需要40分钟,去广州市区也需60分钟,深中通道开通后,到达深圳也仅需60分钟车程。与珠海南湾片区仅一桥之隔,可迅速到达华发商都、珠海明珠站、横琴、拱北口岸等,同事接轨港澳,尽享中珠双城半小时生活圈
作为中澳集团历时7年打造的5000户融城大盘,中澳春城总建面约120多万㎡,楼间距宽达85米,容积率仅2.5,绿化率约32%,低密高绿化的配置成为舒适人居的经典范本。

中澳春城位于南屏华发商都旁,直距仅约3km。项目同时打造约3万㎡商业风情街,出门即享便捷生活配套;项目直距优越城约1km,海底捞、星巴克、电影院就在咫尺之间,出门就可看尽繁华都市的万千气象。

项目毗邻珠海众多地标性景点,距圆明新园约5.4km;距珠海渔女约10.8km;距珠海日月贝大剧院约11km、距横琴长隆海洋王国约16.7km,集人文历史休闲娱乐于一体,让您随时随地开启丰富的度假生活。

交通配套
立体交通 加速湾区城市群互联互通
5高速、4机场、3大桥、2城轨、1立交、多条快速路
中山南站(规划中)、广中珠澳(建设中)、广州18号线(规划中)等
轨道交汇迅达广深,为湾区生活提速。
商业配套
万象荟萃 大城生活一应俱全,自配约3万方路径约1.5km风情商业街,约1km逛优越城,约3KM享华发商都,万象繁华,咫尺在握。
教育配套
优质教育 筑梦精英未来,外有优质学校护航,内配双语国际幼儿园(规划中),筑梦孩子金色未来。
项目配套了超10万㎡热带园林景观,约1300㎡超大室外泳池、超2公里彩色景观跑道等,用理想居所、舒心生活、隐逸园林,打造成为独树一帜的大城人居标杆。

【户型鉴赏】
本次推出的77-97㎡二至三房轻奢灵动户型,不仅保持着中澳项目一贯的高品质设计,更是对舒适度与品质感的立体表达,我们通过精心打造的样板房完美展示出来。

每一处精工细节,都承载着我们对品质人居的追求;
每一寸匠心设计,皆源于对美好生活的理解。

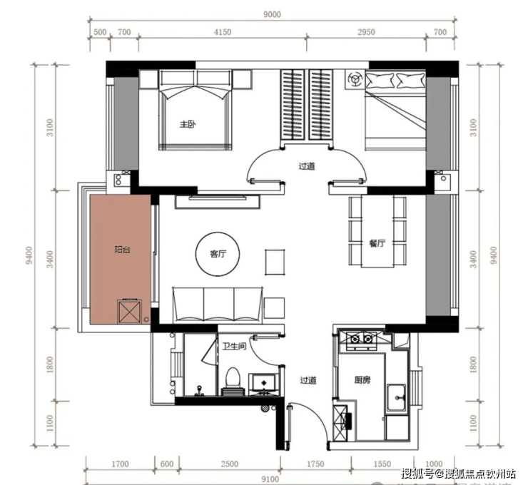
图一:77m² 两房两厅一卫

图二:81m² 两房两厅一卫
售楼处热线:400-045-8086【营销中心】
本文内容为广告推广,涉及房价或现有房源可能出现变更,请致电详询并以售楼部为准
免责声明:本文如无意中侵犯了某方的知识产权告知即删,部分内容图片可能来源于网络,无法核实其真实出处,如涉及侵权请联系本网站删除!!
声明:本文由入驻焦点开放平台的作者撰写,除焦点官方账号外,观点仅代表作者本人,不代表焦点立场。
