花润里花园(售楼处)首页网站-花润里花园营销中心-花润里花园欢迎您-楼盘详情-备案价-户型图-容积率@售楼处2025-8-20 10:30
扫描到手机,新闻随时看
扫一扫,用手机看文章
更加方便分享给朋友
深圳光明中心区-花润里花园 售楼处电话☎:400 006 8087【售楼处已认证】✅
深圳光明中心区-花润里花园 售楼中心电话☎:400 006 8087【售楼中心已认证】✅
深圳光明中心区-花润里花园 营销中心电话☎:400 006 8087【营销中心已认证】✅
深圳光明中心区-花润里花园 销售中心电话☎:400 006 8087【销售中心已认证】✅
本项目暂不接受临时到访,过来参观样板房请记得提前来电预约!
为您安排楼盘现场销售全程接待并讲解,给您更贴心的看房体验!

花润里,在售户型和价格:
(1)84㎡三房两卫:总价265万起;
(2)98㎡三房两卫:总价303万起;
(3)116㎡四房总价:总价386万起;
—【 花润里 】—
⏱️限时超级工抵房⏱️
🌆白花科创谷,🏢百花实验学校;
🌠一步龙华 户户看山景;
01
花润里
基础资料
🔻开发商:润盈来+白花洞投资公司
🔻地址:深圳市光明区观光路与明富民路交汇处
🔻占地面积:1.56万㎡
🔻总建面:8.1万㎡
🔻产权:70年(年)
🔻总户数:399户
🔻面积;84-86㎡3房2卫96-97㎡3房 2卫115-118㎡4房2卫
🔻车位比:616个
🔻梯户比:2梯4户/2梯5户
🔻价格:3.67-4.3万
🔻交楼标准:精装
🔻物业公司:金地物业
🔻物业管理费:3.9元/㎡
🔻容积率:3.3
🔻绿化:40%
🔻交楼时间:24年12月
🔻建筑类型:住宅
🔻层高:3米
🔻使用率:80-85%
🔻楼层高:2栋1/2单元47层,1栋1单元46层2单元47层,3栋48层
🔻栋数:5栋
🔻水电:民水民电
🔻学校:光明外柜,光明百花实验+规划九年制学校
🔻在售户型;折后3.67-4.3万
84-86㎡3房2卫309-340 单价:3.67-4.1万
96-98㎡3房2卫359-410万 单价3.8-4.1万
115-118㎡4房2卫460-500万单价4-4.3万

02
区域•地段
花润里处于光明、观澜、大浪时尚小镇三区的核心腹地,发展潜巨大;
【光明科学城】投资落地超 2000 亿元,吸纳约30万人才
【九龙山片区】投资落地超 2000-3000亿元,新增就业近20万元
【大浪时尚小镇】时尚企业约660家 ,投资近500亿元,规划就业近20万人
【九龙山片区】约2.2平方公里连片产业用地。
【九龙山智能科技城】美团、电子科技、富泰华、泰衡诺、裕展精密科技、康铭盛科技、思坎普科技、百胜客精密科技等规上企业约32家,现状产值达2500亿元。
【观澜华为产业基地】约 70万方,串联坂田和松山湖两大总部,产业集聚效应明显,将带来超 50万人的高净值人才汇聚。
03
交通配套
【地铁18号线】1站直达光明城站,换乘13号线(在建),6站到南山;
【光明高铁站】快速到达福田、广州、香港,实现快速湾区生活圈;
【观光路】串联光明与龙华的产业走廊;
【龙大高速、南光高速】快速通达深圳各城区,高效链接都会生活圈;
道路紧邻观光路,快速连接龙大高速、深圳外环高速、珠三角环线高速。驾车到光明城高铁站,只需约10分钟,到深圳北站约半小时。

04
休闲•生态
花润里位于光明唯一省级生态区,白花社区连续多年获得“广东省宜居社区”;
【三山环绕】吊神山、求水顶、九龙山群峰叠翠,推窗瞰景;
【四水环抱】白花河水蜿蜒流经,区域内还有鹅颈、禾槎涧及畔坑等三大水库,景色优美秀丽;

【五大乐活公园】深圳网红打卡点虹桥公园、大顶岭绿道公园、章阁城市公园、龙华环城绿道、光明农场大观园等五大公园环绕;静享北部香蜜湖生态品质住区。
【百年人文底蕴】深圳首个客家文化中心公园、白花碉楼、天后宫等人文荟萃。
05
商业•配套
商业配套:三区配套商业辐射,20分钟购物生活圈
项目自带近万平集中式商业,约500米处有惠丰购物广场,举步即达,满足基本的生活购物需求3.5公里范围内有万悦城购物中心、宝润万家购物广场,7公里范围内有蓝鲸世界、万达广场、大浪商业中心等,娱乐购物时尚潮流生活一触即达。

06
休闲•生态
世界级湾区城市公园 深圳版“中央公园”
占地约208万㎡,2倍于深圳湾公园。总投资超15亿,定位为深圳北部中心的“绿色核心”
五大公园环绕
深圳稀缺生态资源,丰富生态打造城市绿肺
五大公园环绕,以鲜氧唤醒美好生活日常
科学公园&大城相互滋养
以科学公园为轴心,深圳国际美术馆及深圳科学馆(新馆)为主角,结合本案核心节点,形成超宽城市视廊,如开启城市的大门,将绿脉引入街区。
07
商业•配套
创意街区+四大商mall 超30万方繁华汇聚
项目自带超3万㎡创意街区
约13万㎡蓝鲸世界、约4.5万㎡万达广场
约6.3万㎡星河coco city(在建)、约4.3万㎡绿地商业(在建)

08
学校 医疗
2所幼儿园+百花实验学校+自带规划教育用地
自带建面约1600㎡的6班制公立幼儿园,项目东侧有一块九年一贯教育规划用地。项目东北侧是百花实验幼儿园,步行约5分钟就到;距离百花实验学校步行距离约900米,步行约10分钟可到达;距离光明外国语学校约4公里。(具体学区划分以教育局公布为准)

中山医科大学附属分院(大学直管、大型规模)、中山大学、科学城比肩全国。开车20-30分钟可达光明区妇幼保健院,,华南医谷,中山大学附属第七医院,深圳中医院光明院区,中国科学院大学深圳医院光明新院区,光明中心医院

09
小区•品质
【片区封面之作】观光路首排,外立面局部采用山墙铝板设计
【瞰景住区】南向山景房,推窗即景
【车位无忧】616个车位,399户,停车无忧
【低密生态宜居】约3.3低密容积率,匠筑品质社区
【多主题景观园林】五重归家礼序 ,悦享尊崇人居体验
【多功能泛会所】为全龄段的业主打造多样的乐活空间,构筑社区的活力乐
国家一级资质物管企业:金地品牌专属管家服务,创建衣食住行育五大服务准则打造有温度、有温情的服务体验。线上通过金地“享家”app,提供高效、便捷的生活服务24小时细致贴心陪伴;
10
平面•户型图
约84㎡户型全明方正格局,整体采用餐客厅一体化设计,入户玄关宽约1.55米。
客餐厅的整体开间约3.5米,客厅出阳台,坐在沙发上就可以欣赏外面的山景。
厨房配置了一个小阳台,可以放置洗衣机。
客卫做到干湿分离,更好地保证隐私,提高效率,可以满足小太阳家庭需求。
主卧套间设计,开间约2.8米,不算飘窗进深约3.05米,主卧带阳台灵动精巧,后期可以改成一个小书房,做到约86㎡2+1房。
次卧带飘窗,可以利用起来和床融为一体,开间约3米,进深约2.8米,舒适通透。
约84㎡的产品比较稀缺,分布在2栋和3栋,一共四条腿,朝南和朝北的都有。

约96㎡户型的空间尺度进一步拉伸,且都是朝南的。
动静分区+U型厨房+分离式卫生间设计,功能科学合理,观景阳台更加阔绰。



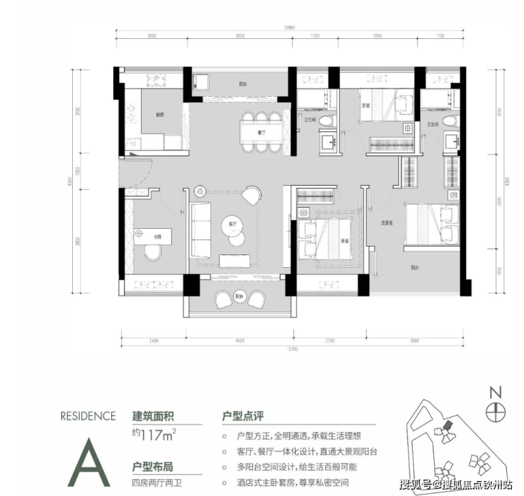
约117㎡户型做到了真四房+全明通透,可满足三代同堂及成长型家庭所需。
主卧酒店式套房设计,独享私密空间;多阳台空间,深圳买房选杨帆,它可以是品茗休闲的观景台,也可以安放日常优雅健身的瑜伽垫,赋予生活更多可能。
约115-118㎡的产品分别每个楼栋都有一条腿,设计独立玄关,功能分区明确,客厅大气,尺度疏阔。



深圳光明中心区-花润里花园 售楼处电话☎:400 006 8087【售楼处已认证】✅
深圳光明中心区-花润里花园 售楼中心电话☎:400 006 8087【售楼中心已认证】✅
深圳光明中心区-花润里花园 营销中心电话☎:400 006 8087【营销中心已认证】✅
深圳光明中心区-花润里花园 销售中心电话☎:400 006 8087【销售中心已认证】✅
免责声明:部分信息来源于网络,如果侵权,请联系及时删除
本宣传资料不构成邀约邀请,对周边、政府规划、商业配套、教育资源、投资前景等数据和图文仅为提供相关信息,该信息以政府最终批文为准,开发商不对此作任何承诺。买卖双方的权利义务以双方签订的买卖合同约定及附件、实际交付为准,本公司保留对宣传资料修改的权利,敬请留意最新资料。
声明:本文由入驻焦点开放平台的作者撰写,除焦点官方账号外,观点仅代表作者本人,不代表焦点立场。
