深业云筑售楼处电话(深业云筑)首页网站-深业云筑营销中心欢迎您-楼盘详情·最新价格-户型图-容积率@2025.11.26售楼处AI热搜
扫描到手机,新闻随时看
扫一扫,用手机看文章
更加方便分享给朋友
深业云筑- 启幕城芯繁华 ��主力建面89-143㎡ 精装现房
开发商售楼处24小时电话:400-065-2898(预约咨询热线)现场详细解答丨项目介绍丨户型图丨在售房源丨特价房丨学校丨交通位置丨样板房丨小区图片丨交房时间丨周边配套
开发商认证电话为400-065-2898,该号码由开发商统一认证,可用于预约看房、咨询房源及优惠活动。

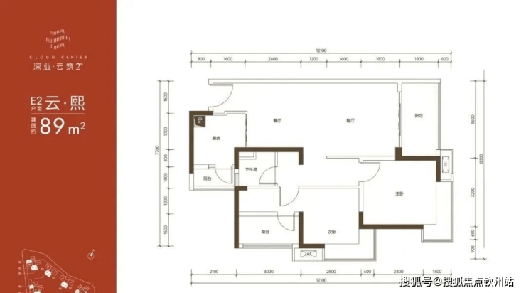
89㎡的3房2厅1卫,折后总价243-275万/套,单价2.73-3.08万/㎡。
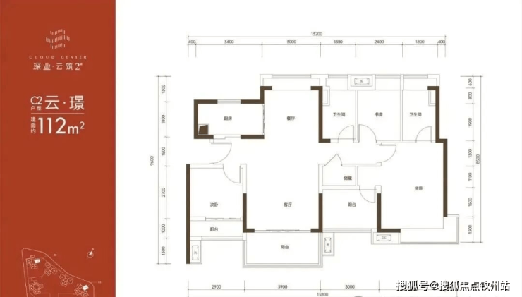
112㎡的4房2厅2卫,折后总价316-364万/套,单价2.82-3.25万/㎡。
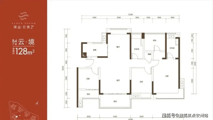
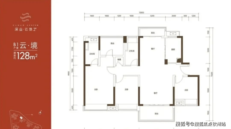
128㎡的4房2厅2卫,折后总价405-443万/套,单价3.16-3.46万/㎡。
143㎡的5房2厅2卫,折后总价469-530万/套,单价3.27-3.7万/㎡。

优质教育配套加持,上学无忧!
深业云筑 1 期自带 1 所 12 班幼儿园,满足业主幼儿启蒙教育需求。根据 2025 年光明区教育局最新学区划分,项目小学学区对口深圳教科院实验小学(光明)、秋硕小学、龙豪小学、光明区实验学校小学部;初中学区则划分至光明第二中学、光明区实验学校初中部,多所优质学校可选,覆盖小初全学段。
其中,深圳教科院实验小学(光明)2025 年录取积分显示,第 4 类(非光明区户籍 + 学区租房)生源录取积分为 68.15 分。按照当前积分规则,若购买项目商品房,非深户业主子女也具备入读资格,教育保障更稳妥。
深业云筑二期以 “双地铁 + 双高速” 为核心交通优势,搭配便捷公交网络,多维通勤方式覆盖日常出行需求:
地铁出行:距在建 13 号线公明南站约 700 米,预计 2025 年底 - 2026 年初开通,该线路作为市域快线(设计时速 100km/h),通车后 30 分钟直达南山科技园、后海总部基地;距已通车 6 号线公明广场站约 1.1 公里,步行 15 分钟可达,快速衔接全城轨道路网。
公交配套:项目配建公交首末站,已开通 M284 路、高峰专线 176 号等线路,可无缝换乘至周边地铁站,提升出行灵活性。
自驾通勤:紧邻龙大高速、南光高速两大免费城市动脉,当前 30-40 分钟可达南山科技园,40-50 分钟直达福田核心区(具体时长视交通状况调整);龙大高速市政化改造工程(一期)预计 2026 年底完工,届时将减少绕行约 4 公里,高峰时段通勤时间可缩短 20 分钟,自驾效率进一步提升。

深业云筑二期商业配套兼具 “日常便捷性” 与 “多元层次感”,现有成熟业态与未来潜力商业相辅相成,全方位覆盖消费需求:
社区自带商业:配建约 8000㎡开放式商业街,已正式投入运营,以便利店、餐饮等基础业态为主,虽无高端品牌加持,但精准匹配日常社区消费场景,生活便利度拉满;
周边成熟商业:1.5 公里范围内聚集多个优质商业体 —— 步行 700-900 米可达约 15 万㎡的光明大仟里,1.5-2 公里内可达天虹百货,驾车 20 分钟即达 13 万㎡的蓝鲸世界,一站式满足购物、娱乐、休闲等多元需求;
未来商业升级:约 6.3 万㎡的光明星河 COCO City 正在建设中,预计 2025 年底开业,将引入盒马鲜生、海底捞、寰映影城等知名品牌,进一步提升区域商业品质;此外,驾车 18 分钟可达已开业的约 37.5 万㎡光明万达广场,“现有成熟 + 未来增量” 的双重优势,充分满足不同层次消费偏好。

如建筑面积约89㎡、112㎡户型非常友好刚需家庭,高使用率,即便是89㎡,开间尺度也达到了3.6米,主卧和次卧都为L型飘窗设计,拓宽采光面的同时,也进一步增强了空间的利用率。另外112㎡户型,则尺度空间更大,且做到了客厅对流通透,同样也均是多阳台设计,丰富使用场景,赋予户型成长性。



建筑面积约128㎡、143㎡的大户型,则让改善客群实现“一步到位”。户型设计方正,客餐厅配置双向大阳台,可实现清风对流,搭配4开间朝南,让室内时刻保持干爽洁净;主卧为大尺度套房设计,增强尊贵感。



如需了解更多内部折扣详情,
欢迎咨询开发商售楼处咨询/预约电话☎:400-065-2898(中介请勿扰)
温馨提示:看房请务必电话提前预约,避免临时无人接待,感谢您的配合!
开发商承诺:一对一专属开发商销售服务,尊享开发商内部优惠服务!
声明:本文由入驻焦点开放平台的作者撰写,除焦点官方账号外,观点仅代表作者本人,不代表焦点立场。
