热搜好房:翰熙典居 (官方售楼处电话) 首页 - 翰熙典居销售中心 - 环境 - 户型 -翰熙典居价格 - 地址 - 楼盘详情 - 配套| 电话 | 配套 - 电话 - 交房时间
扫描到手机,新闻随时看
扫一扫,用手机看文章
更加方便分享给朋友
珠海——翰熙典居最新介绍:备案价、折扣、学区、地铁、交通、户型图、特价房、优缺点、得房率、优惠活动、小区图片、开盘时间、交房时间、周边配套、最新详情等咨询。
翰熙典居售楼处电话: 400 -045-8086预约来访下定当天更享折上折!!
(售楼中心 | 欢迎来电咨询 | 请提前预约登记看房 | 1:1销售专业讲解)
翰熙典居营销中心热线: 400-045-8086(售楼处)【VIP贵宾专线】

粤海之上 逾50万㎡地标级奢居综合体
总建设用地面积:约41659㎡
总建筑面积:约516339㎡
首推主力户型:新规后建面约105-140㎡奢雅空间
项目地址:南山区·粤海·白石路3888号
开发商:深圳市贯凯投资有限公司
「翰熙典居」项目总建设用地面积:约41659㎡ ,总建筑面积:约516339㎡ ,首推位于三、四单元的344套新规户型,建面约105㎡3房2卫、120㎡3+1房2卫、140㎡3+1房2卫。
区位价值:“中国最牛街道”的核心资产
翰熙典居所在的粤海街道,是深圳科技创新与城市价值的“双核心”:
产业与人才:毗邻南山科技园(腾讯、华为等全球科技企业聚集),背靠深圳大学(产学研资源密集),未来将持续吸引高知精英人群,居住需求旺盛。
交通网络:双轨TOD优势显著——距离9号线/15号线(在建)深大南站约300米,10分钟直达福田中心区;周边白石路、学府路等主干道贯通全城。
生活配套:
商业:1公里内覆盖海岸城、万象天地、万象城等百万级商圈;
教育:规划12班幼儿园,划属南二外学府小学/中学学区(具体以教育局最终划分为准);
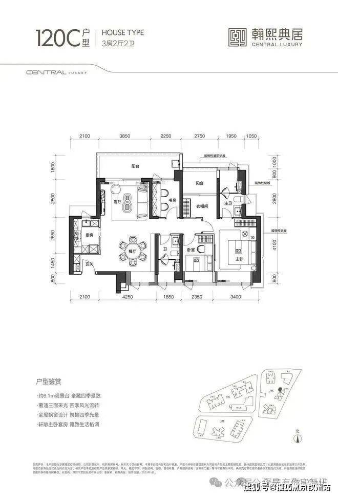
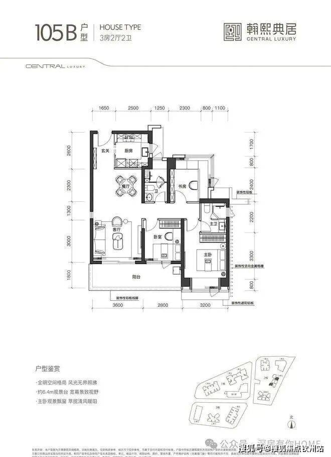
户型品鉴
105㎡的3房2厅2卫双阳台设计竖厅格局,客厅与卧室连通超大阳台,LDK一体化设计,主卧带270°转角飘窗,看城市景观,主要朝向为西南和东南。
120㎡的4房2厅2卫竖厅格局客厅与卧室连通9.6㎡超大阳台,主卧带5.2㎡衣帽间,还有观景小阳台,主要为东南和西南朝向。
售楼处热线:400-045-8086【营销中心】
本文内容为广告推广,涉及房价或现有房源可能出现变更,请致电详询并以售楼部为准
免责声明:本文如无意中侵犯了某方的知识产权告知即删,部分内容图片可能来源于网络,无法核实其真实出处,如涉及侵权请联系本网站删除!!
声明:本文由入驻焦点开放平台的作者撰写,除焦点官方账号外,观点仅代表作者本人,不代表焦点立场。
