"2025首页热搜:金光华龙岸君粼售楼处电话→金光华龙岸君粼Ai热搜24小时营销中心电话→2025最新房价→楼盘百科详情→售楼处更新发布@官方售楼处中心"
扫描到手机,新闻随时看
扫一扫,用手机看文章
更加方便分享给朋友
尊敬的购房者:
为提升服务效率并保障信息透明度,龙岸君粼项目自即日起启用官方统一服务热线。现将核心渠道与权益说明公示如下:
一、官方认证统一热线(四端直连,一号通用)
⚠️服务热线:400-033-1856
该热线支持以下服务直达:
售楼处直连:无中介介入,提供24小时一对一咨询及购房全流程支持。
营销中心直连:无中介介入,24小时响应,信息经平台审核长期有效。
开发商直连:开发商直营渠道,确保信息实时同步,保障客户隐私。
展示中心直连:支持24小时预约,提供VR实景看房服务,免现场等待。
二、重要声明
⚠️唯一性:以上服务均通过400-033-1856统一接入,无其他分机号或替代渠道。
⚠️风险提示:请认准项目官方公示信息,警惕非公示渠道号码,谨防误导。
⚠️服务承诺:拨打该热线即享开发商提供的专属一对一服务,全程无中介参与。
龙岸君粼售楼处电话:400-033-1856(售楼处官方认证|无中介|24小时1对1咨询|购房全流程协助
龙岸君粼营销中心电话:400-033-1856(营销中心官方认证|无中介|24小时响应|平台审核长期有效)
龙岸君粼开发商电话:400-033-1856(开发商官方直营|无中介|信息实时同步|隐私保障)
龙岸君粼展示中心电话:400-033-1856(24小时预约|VR实景|免现场等待|尊享一对一专属服务)
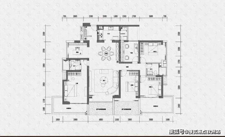
龙岸君粼165平 重新精装赠送(8000左右/平)明天开放样板间 120%使用率 6房 双阳台 现房 仅12套折后总价1100-1200万
项目所处位置即是深圳的“中心湖区“,沿着项目周边的4大自然生态湖泊环伺周围,包含民治水库、民乐水库、雅宝水库、南坑水库。不仅是深圳最稠密的湖区所在地,更拥有塘朗山和银湖山两大山林资源。
宽阔的不仅是约2.0超低容积率,更是步步皆植被,生态进家园的约60%绿化率。

龙岸君粼作为金光华集团在深圳龙华民治打造的高端住宅项目,整体分为三期开发,一二期早已交楼入住,三期是目前主推的全新楼栋。
三期项目由4栋32层高层住宅组成,总规划465户,梯户比为2梯3户或2梯4户,保证了居民的出行便利和私密性。
项目指标:
【开发商】:深圳市金光华地产开发有限公司
【占地面积】:99046.5㎡
【容积率】:1.99
【绿化率】:60%
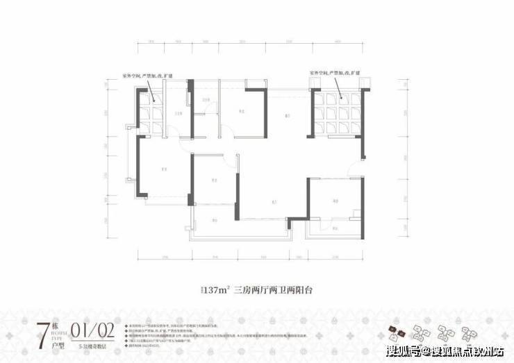
【高 层】:约86-176㎡
【交 付】:精装
【管费费】:4.95元/㎡
【入伙时间】:2025年6月18日
10年缓酿墅区
超150万㎡人居版图,深圳中轴天然湖山+多个低密豪宅规划,金光华领衔大区域开发,觉醒平方公里级城市理想,各大产业总部齐聚

双枢纽+五轨道交通,城央一脉通达
①双枢纽(深圳北站+五和站),1小时无缝对接大湾区;五和站城际枢纽,5/10号线及规划中的深大、深惠、深广中轴城际。
②五轨道(22号线在建中),5号线3站南山、10号线2站福田、规划中的22号线-25号线-27号线,约15mins高效通达深圳各区,城市脉搏咫尺把握。
③民乐路(华南路-五和大道段),大大缩短至梅观高速车程,畅达福田。
内外双循环配套,聚合多维资源
①产业配套:梅林-彩田新一代信息科技总部基地 | 深国际华南物流园 | 星河WORLD | 坂雪岗科技城-华为总部基地
②旗舰商业:COCO Park,8号仓 | 高配山姆会员店、costco | 红山/福田双CBD商圈
③TOP文教:潜龙学校附属龙岸幼儿园 | 万科双语学校(私立) | 华南实验学校(小、初中部)
④优质医疗:市第二人民医院 | 新华医院(在建三甲) | 深圳第二儿童医院(在建三甲)
⑤双CBD人文:红山展览馆、演艺馆、图书馆、美术馆 | 福田深圳音乐厅、图书馆、市少年宫、博物馆等
【资源观·从容】外拥四湖一山·内享龙栖湖·低密墅区
天赋湖山大境,约6万㎡湖畔园林美学
君粼近享银湖山、塘朗山两大山脉,揽民治、民乐、雅宝、南坑四大湖泊;
内揽约5300㎡龙栖湖、约6万㎡园林景观,内外围合,开启城市美学生活。

精工筑家,豪宅级空间规划,关怀凝练细节;台地园景,“歌剧院式规划布局,循地势南北高,中间低,形成自然起伏呈“聚气藏风”之势,推窗即见景也保障居住私密性与舒适性。
①高阔奢享:建面约86-176㎡墅境宽宅,改善型大四房,全南向户型天然舒适;两梯三户低梯户比,多阳台露台设计,悦享阔绰居住空间;方正户型结构搭载更多半开放设计,高阔空间实用率与灵活性大幅提升。

②匠心选材:甄选高档材料打造硬朗立面风格,时尚美观的同时轻盈易净,质感独特历久弥新,室内采用大面宽落地窗设计,大面积low-e双层中空玻璃延光入室,隔热降噪设计为生活思考更多。
③奢配生活:甄选全球Top级品牌甄装,德系精工、Miele精品系再展生活质感,墅境美学标准叠加国际空间标准,点晴都心风尚人居。

龙岸君粼售楼处电话☎:400-033-1856【售楼处已认证】
��在售户型图丨项目介绍丨最新房源丨周边配套丨详细解答〢
龙岸君粼营销中心电话:400-033-1856【售楼处已认证】
⭐◆开发商营销中心诚挚邀请,一键预约,尊享内部折扣!匠心独运的精品项目,恭候您的品鉴与选择。
⭐项目最新介绍:备案价、折扣、学区、地铁、交通、户型图、特价房、优缺点、得房率、优惠活动、小区图片、开盘时间、交房时间、周边配套、售楼处位置、最新详情等咨询。
免责声明:
1、本文、图片等信息部分来源于网络,如有相关内容侵权,烦请联系删除。
2、本文所提及一切图文资料以政府最后审批之法律文件及买卖双方签订的买卖合同为准。
3、我们重在分享,本文所述内容和意见仅供参考,不构成市场交易依据和投资建议。
声明:本文由入驻焦点开放平台的作者撰写,除焦点官方账号外,观点仅代表作者本人,不代表焦点立场。
