(光明)宏发悦见公园里售楼处首页网站-宏发悦见公园里售楼处热线-宏发悦见公园里营销中心欢迎您-周边配套-楼盘详情-最新价格-户型图-容积率→售楼处地址
扫描到手机,新闻随时看
扫一扫,用手机看文章
更加方便分享给朋友
宏发悦见公园里在2023年7月份取证以来,推出803套 ,已经销控约709套房源,剩余94套,整体去化率约88.29%,其中110-120平的4房户型已经售罄,该项目在近期还推出了少量的工抵房源,打出了7.9折的钜惠,折后均价3.7万/㎡,折后单价3.49-3.91万/㎡,总价297-370万/套。
85㎡的3房2厅1卫,折后总价297-319万/套,单价3.49-3.75万/㎡。
88㎡的3房2厅1卫,折后总价308-324万/套,单价3.5-3.68万/㎡。
91㎡的3房2厅2卫,折后总价344-356万/套,单价3.78-3.91万/㎡。
94㎡的3房2厅2卫,折后总价329-357万/套,单价3.5-3.79万/㎡。
95㎡的3房2厅2卫,折后总价357-370万/套,单价3.75-3.89万/㎡。
97㎡的3房2厅2卫,折后总价365-366万/套,单价3.72-3.73万/㎡。
坐落城市繁华地段,近享中芯配套
双地铁:便利可达地铁6号线(已通车)与13号线(北延段建设中)公明广场站,直通福田、南山,共享都会高效与繁华。
商圈配套:步行即可到达区域核芯商圈——大型商业综合体光明大仟里购物中心、高端希尔顿花园酒店等。即享购物、休闲、娱乐一站式繁华。
自然风光:外侧北邻约27万方红花山公园, 内侧遵循自然之理,与公园绿地共生,目光所及之处,是公园的四季更迭。
(红花山公园占地面积:27.39万平方米,数据/信息来源:深圳光明公众号)
人文配套:项目约2公里范围内,近享红花山体育中心、光明图书馆红花山分馆、文化馆等城市人文配套。
教育配套:
自带社区幼儿园,东北面规划教育设施用地(18班小学);
(数据来源于深圳市光明区城市更新和土地整备局)
周边教育资源:
· 小学:光明教科院实验小学、公明第一小学、公明第二小学、东宝纪念小学等
· 中学:深圳市公明中学、深圳市光明区第二中学(光明区省一级公办中学)、光明区高级中学等
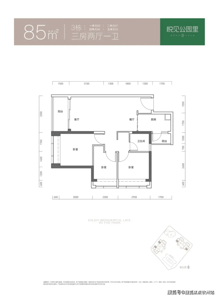
85㎡的3房2厅1卫,设计的是竖厅格局,客厅3.3米开间,LDKB一体化设计,3个卧室分别做到了主卧10.97㎡/次卧8.24㎡/次卧6.7㎡(实测面积,去掉墙体),L型厨房带1个生活阳台,卫生间三段式分离,得房率73.72%(不含赠送),西北或东南朝向。

88㎡的3房2厅1卫,设计的是经典竖厅格局,客厅3.3米开间,LDKB一体化设计,动静分区,3个卧室分别做到了主卧10.9㎡/次卧6.78㎡/次卧6.47㎡(实测面积,去掉墙体),L型厨房带1个生活阳台,公卫三段式分离,得房率73.71%(不含赠送),有西北、东北、西南或东南朝向。

91㎡的3房2厅2卫,仅3栋2单元01户型,设计的是竖厅双龙抱珠格局,客厅3.4米开间,三开间朝南,3个卧室分别做到了主卧11.9㎡/次卧7.06㎡/次卧6.2㎡(实测面积,去掉墙体),L型厨房带1个生活阳台,卫生间干湿分离,得房率73.55%(不含赠送),西南朝向。

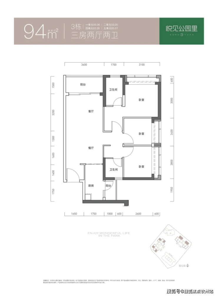
94㎡的3房2厅2卫,设计的是竖厅格局,客厅3.4米开间,LDKB一体化设计,3个卧室分别做到了主卧12.82㎡/次卧7.94㎡/次卧6.84㎡(实测面积,去掉墙体),L型厨房带1个生活阳台,公卫三段式分离,得房率73.71%(不含赠送),有西北、东北或西南朝向。

95㎡的3房2厅2卫,仅3栋1单元01户型,设计的是竖厅双龙抱珠格局,客厅3.4米开间,三开间朝南,3个卧室分别做到了主卧11.97㎡/次卧7.47㎡/次卧7.17㎡(实测面积,去掉墙体),L型厨房带1个生活阳台,公卫三段式分离,得房率73.71%(不含赠送),西南朝向。

97㎡的3房2厅2卫,仅3栋4单元01户型,设计的是竖厅双龙抱珠格局,客厅3.4米开间,三开间朝南,3个卧室分别做到了主卧11.97㎡/次卧7.47㎡/次卧7.17㎡(实测面积,去掉墙体),L型厨房带1个生活阳台,公卫三段式分离,得房率73.61%(不含赠送),东南朝向。

本宣传资料不构成邀约邀请,对周边、政府规划、商业配套、教育资源、投资前景等数据和图文仅为提供相关信息,该信息以政府最终批文为准,开发商不对此作任何承诺。买卖双方的权利义务以双方签订的买卖合同约定及附件、实际交付为准,本公司保留对宣传资料修改的权利,敬请留意最新资料。联系号码☎:400 065 2898【开发商已认证】
声明:本文由入驻焦点开放平台的作者撰写,除焦点官方账号外,观点仅代表作者本人,不代表焦点立场。
