卓越·缦悦(售楼处)首页网站-深圳卓越·缦悦欢迎您-卓越·缦悦楼盘详情@售楼处
扫描到手机,新闻随时看
扫一扫,用手机看文章
更加方便分享给朋友
📣📣卓越缦悦📣📣
卓越缦悦售楼处电话:4000 437 779(营销中心24小时电话)项目最新介绍:房价、价格、折扣、学区、学校、地铁、交通、户型图、备案价、特价房、优缺点、得房率、优惠活动、小区图片、开盘时间、交房时间、周边配套、售楼处位置、最新详情等咨询
📣📣卓越缦悦开发商24小时电话☎:4000 437 779【开发商认证】📣📣
📣📣卓越缦悦售楼处24小时电话☎:4000 437 779【开发商认证】📣📣
📣📣卓越缦悦售楼部24小时电话☎:4000 437 779【开发商认证】📣📣
📣📣☞☞Vip贵宾置业==欢迎来电预约尊享内部折扣===匠心钜制恭迎品鉴☜☜📣📣
◈◈若有中介虚假宣传,请及时与售楼中心核对真假,避免上当!开发商热线4000 437 779【开发商认证】

卓越缦悦属于皇岗村旧改的一部分。
该旧改最早可追溯到2010年。
但因各种原因长时间搁置不前。
一直到2023年6月。
旧改实施主体才明确,由卓越集团与皇岗实业合作。
整个皇岗村旧改,总建设用地达31.40万平。
预计的总建面约200万平,含住宅、酒店、商业、办公、公寓等多种业态。
而卓越缦悦,其实为皇岗村第一期旧改项目。
这里边,卓越缦悦又分为一期(西地块)和二期(东地块)。

【主力户型】建面约91-173㎡3-4房新规产品
【开 发 商】深圳卓越皇岗旧城改造有限公司、深圳皇岗实业股份有限公司
【物业公司】卓越商企服务物业
【物 业 费】待定
【产权年限】70年
【总 栋 数】1栋5单元
【总 户 数】一期可售232户
【总 楼 层】45层
【梯 户 比】近1:1梯户比,大户型双电梯独立电梯厅入户,北区2梯2户双电梯独立电梯厅入户,南区3梯4户
【容 积 率】5.54
【占地面积】31428.9㎡
【建筑面积】174082.2㎡
【停 车 位】1266个
【交楼标准】精装
皇岗村城市更新总建面约201万㎡,由卓越与皇岗强强联合开发,承载历史融合新生,将打造成世界级城市典范综合体项目。项目位于深圳中轴之上,北接莲花山公园和城市CBD,南至深圳河对望香港,是深圳城市地标轴线的重要一环。

项目分2期开发,首开推一期5单元,二期明年2季度入市,项目122-175平米4房为主,占比83%,纯粹改善型住区,新规产品,销售使用率90%+,精装修交楼。
【近1:1梯户比】大户型双电梯独立电梯厅入户,北区2梯2户,双电梯独立电梯厅入户,南区3梯4户。

一期楼下就是7号线皇岗村地铁站,4条地铁环绕。一站到石厦可换乘3号线,一站到福民站可换乘4号线,便捷通达全市。另外项目2站可达皇岗口岸,通关直达香港。
项目周边有滨河大道、粤港澳高速等,驾车前往各区十分方便。
商业方面
「皇熙悦府」本身是个综合体规划,项目的B1F-4F为商业,体量也几乎满足近距离的生活所需,例牌的日用品、餐饮奶茶应有尽有。
若需大型商业,跨过滨河路就有Coco Park、卓悦中心、皇庭广场等等,整个CBD的商业都可享用。

休闲配套
行政文化中心——市民中心(市政府所在地)、10所市级政府机关单位、深圳中心书城、深圳音乐厅、少年宫、深圳博物馆、当代艺术与城市规划馆、关山月美术馆等

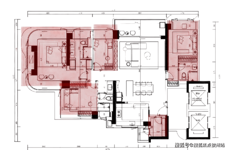
户型鉴赏
【105㎡3+1房2厅2卫】

【125㎡4房2厅2卫】

【173㎡4+1房2厅3卫】双梯入户

📣📣卓越缦悦📣📣
📣📣卓越缦悦开发商24小时电话☎:4000 437 779【开发商认证】📣📣
📣📣卓越缦悦售楼处24小时电话☎:4000 437 779【开发商认证】📣📣
📣📣卓越缦悦售楼部24小时电话☎:4000 437 779【开发商认证】📣📣
📣📣☞☞Vip贵宾置业==欢迎来电预约尊享内部折扣===匠心钜制恭迎品鉴☜☜📣📣
◈◈若有中介虚假宣传,请及时与售楼中心核对真假,避免上当!开发商热线4000 437 779【开发商认证】
免责声明:本文部分内容来自网络,如有侵权,请联系删除
声明:本文由入驻焦点开放平台的作者撰写,除焦点官方账号外,观点仅代表作者本人,不代表焦点立场。
