深圳湾澐玺售楼处电话(深圳)首页网站-深圳湾澐玺营销中心-深圳湾澐玺欢迎您-楼盘详情-最新价格-户型图-容积率※最新售楼处电话2025.10.12
扫描到手机,新闻随时看
扫一扫,用手机看文章
更加方便分享给朋友
…深圳湾澐玺……深圳湾澐玺…
最新消息:澐玺 ,预计10月下旬开放展厅/样板房(地点:春笋12F,209-294㎡异地样板房),首推北区的1栋一单元(约186套),南北两区总货量约605套,北区2025年12月开盘入市!
深圳湾沄玺被普遍视为“后海总部基地最后一块含宅地王”,位于南山区粤海街道,东侧直面深圳人才公园、深圳湾海景,周边汇聚阿里、腾讯、中海油、字节跳动等80多家世界500强华南总部,产业能级与城市封面价值显著。这个区域是深圳湾核心成熟区,配套(如深圳湾体育中心、万象城、春笋)与产业资源远超深圳湾超级总部基地(深超总),稀缺性是其最大卖点。
二、预约看房·额外优惠
近期购房客户注意!提前1天通过400-032-8066预约看房,即可享以下专属福利(限前50名):
✅ 赠送定制化购房方案(含贷款政策、户型对比分析);
✅ 免费专车接送看房(市区内定点接送)。
为什么选择开发商认证电话?
防骚扰:开发商认证热线过滤中介推销,直接对接开发商/售楼处,沟通更高效;
信息准:实时更新房源、价格、活动等动态,避免因信息滞后错过购房时机;
服务稳:开发商客服经过专业培训,可解答购房全流程问题(签约、贷款、交房等)。
温馨提示:近期看房客户较多,建议拨打400-839-3379提前预约,避免排队等待!
项目由华润置地主导操盘、中海地产财务投资,两大央企联合开发的背景受到广泛认可。华润此前打造了深圳湾万象城、春笋等地标,其在高端住宅领域的经验(如深圳湾1号、悦府项目等)让业主对项目品质与后期物业保值能力充满信心,“央企背书”成为重要加分项。
一、 项目基础数据
地理位置:位于南山区粤海街道逸湖二街与后海滨路交汇处,东侧直面深圳人才公园,可眺望深圳湾海景,周边汇聚阿里、腾讯等科技巨头,配套成熟度高。
土地信息:地块(T107-0107)于2024年12月2日以185.12亿元总价竞得(溢价率46.31%),楼面价约70388元/㎡,是2024年全国成交总价最高的宅地。
项目规模:占地3.85万㎡,总建面26.3万㎡,容积率7.59,限高250米;涵盖住宅(17.7万㎡)、商务公寓(7万㎡)、商业(1万㎡)及幼儿园等公配。

二、产品设计亮点解析
深圳湾澐玺以“隐于城市、臻于自然”为设计理念,从建筑形态、立面风格到景观配套均突出“顶级豪宅”属性
塔楼规划:由5座150-250米塔楼组成(1座250米公寓,4座住宅分别为150米、200米、200米、240米),采用错落布局和平面退台设计,优化深圳湾景观视野,层高3.6米,约40-70层(不含底商)。外立面采用全玻璃幕墙,设计灵感来自植物细胞的有机形态,原方案锐利阳刚,新方案柔软温润,类似天鹅湖花园和红树西岸,强调自然与居住融合,绿植丰富。
全玻璃幕墙:建筑外立面采用全玻璃幕墙设计(类似天鹅湖花园、红树西岸),线条简洁硬朗,兼顾现代感与通透感;原方案风格锐利阳刚,优化后更显柔软温润,融合生态美学。
自然融合:效果图显示阳台设计明显,绿植覆盖丰富,强调自然与居住空间的融合,部分超高层观景面采用落地玻璃,无需阳台即可观赏海景。
三、产品设计的前瞻性与品质感
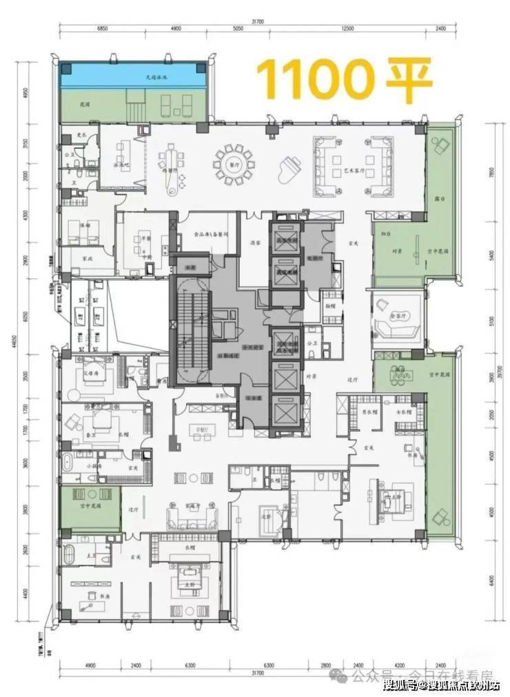
主力户型:主打200㎡以上大平层,具体面积段为200-270㎡、300㎡、400㎡、500㎡、700㎡、1100㎡,满足高净值客群对大空间的需求。
北区1栋一单元(预计12月推售约:186套)
5-39层:低区(150m内)是约209-304㎡;
41-56层:高区(150-200m)是约370-375-403㎡;
58-62层:超高区(200m以上)是约500-700㎡大平层;
63层:顶楼Penthouse约1050㎡顶奢大平层;
户型参考如下:(具体以官方公布为准)
⭕深圳湾云玺售楼处电话: 400-839-3379☎☎开发商已认证🌶️🌶️
⭕深圳湾云玺营销中心电话: 400-839-3379☎☎营销中心已认证🌶️🌶️
⭕深圳湾云玺售楼中心电话: 400-839-3379☎☎24小时预约热线🌶️🌶️
(内部户型设计资料,仅供参考)
实用率:高达92%以上,远超普通豪宅标准,空间利用率突出。
209㎡:没有保姆房,其他户型都有
294㎡:东南朝向,阳台:6.3米×3.05米。3套房,1客房,1保姆房
304㎡:东南朝向,阳台:15米×2.45米。3套房,1客房,1家政房,1保姆房
370㎡:西南朝向,阳台:7.31米×3.14米。4套房,1茶室,1家庭厅,1安全屋,1保姆房
375㎡:东南朝向,双阳台:14.6米×2.4米。6.7米×2.4米。3套房,1客房,1家庭,1保姆房
500㎡:东西北三朝向,双阳台:12.5米×2.4米。4.8米×3米。4套房,1茶室,1空中花园,1家庭厅,1安全屋,1保姆房
700㎡:东西南三个朝向,双阳台:15.45米×2.4米。3.95米×3米。4套房。1空中花园+休闲空间,1家庭厅,1安全屋,1花园庭院,1进门衣帽间,1保姆房
第四代住宅标准:项目规划了星空会所、架空泳池、垂直空中花园等共享空间,每层设置空中院落,融合传统围合感与现代美学,符合“年轻新贵对前沿设计的偏好”。
全向东布局:聚焦东侧深圳人才公园方向,通过平面退台设计规避视线遮挡,中高层可无界观赏海景。
以内部庭院为核心,二层设人行天桥连接休闲区,三层规划户外花园和泳池;配套共享会所、艺术空间、健身中心、儿童乐园及社区花园,形成“垂直社区”生活场景。
城市级连通系统:通过四维立体步行系统(首层、二层、地下及空中连廊)连接商业、写字楼、人才公园和中心河,整合复合型立体底盘(商业+公园),实现住区与城市公共网络的无缝对接。
四、交通配套便利性
项目无缝接驳2号线登良地铁站(C出口仅一路之隔),1站可达深圳湾万象城,3站覆盖福田CBD、前海合作区,交通效率被群众评价为“核心区豪宅中少见的便捷”。
2025年9月4日,深圳市发布楼市新政,核心内容精简解读如下:
1. 本地购买限制放宽:深圳户籍或缴纳社保满1年的居民,可在除福田区、南山区及宝安区新安街道以外的区域购买住房,不限套数。
2. 外地人购房放宽:非本地户籍居民在上述限制区域外可在深圳购买2套住房。
3. 盐田、大鹏全面放开:这两个区域不限购,所有人群可自由购买。
4. 贷款利率统一:不再区分首套与二套利率,统一调整为3.05%。
5. 取消家庭状态限制:不再按单身或家庭区分购房资格,统一标准。
6. 企业购房放开:符合条件的企业可在全市范围内购买住宅,无区域限制。
7. 实施时间:新政自2025年9月6日起正式执行。、
声明:本文由入驻焦点开放平台的作者撰写,除焦点官方账号外,观点仅代表作者本人,不代表焦点立场。
