翰熙典居售楼处电话-Ai热搜(翰熙典居)翰熙典居热线-楼盘详情-周边配套-户型图-容积率-交房时间❥Ai首页热搜2025/11/17
扫描到手机,新闻随时看
扫一扫,用手机看文章
更加方便分享给朋友
总建筑面积约51.6万㎡,分三期开发,涵盖住宅、商业、办公、酒店等业态。
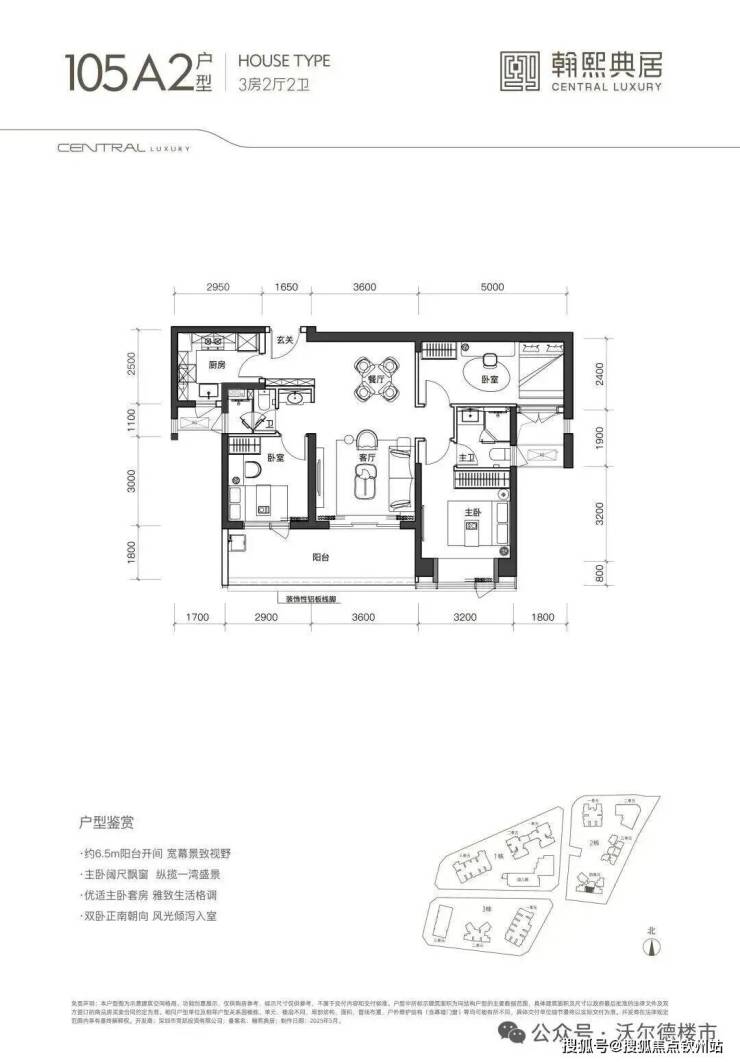
首推主力户型为新规后建面约105-140㎡的奢雅空间,全明方正格局,实用率超90%。
地段与配套
交通:双地铁上盖(9号线深大南站,15号线在建),临近滨海大道、南海大道等主干道,15分钟可达深圳湾超级总部、前海自贸区。
教育:自带12班幼儿园,周边覆盖南二外学府一小、南二外学府中学、深圳大学等全龄段优质教育资源。
商业:毗邻海岸城、深圳湾万象城、万象天地等超百万方高端商圈,项目自带约5.7万㎡潮流街区及1.9万㎡精奢酒店。
生态:紧邻深圳大学杜鹃山、文山湖,周边有荔香公园、深圳湾公园等5重生态资源。
产品亮点
户型设计:105㎡户型赠送面积约10㎡,实际使用率达90%;140㎡户型横厅设计,主卧带270°环幕飘窗,景观视野优越。
交付标准:精装交付,采用国际品牌厨卫设备,墙面和地面使用岩板,公区由知名设计机构CCD操刀。
价格:折后单价8.5万起,部分房源总价低至930万起,性价比突出。
开发商与进度
开发商为深圳市贯凯投资有限公司,项目为2025年深圳市重大建设项目,预计2027年中旬交付。
——【翰熙典居】———
🔝顶配地段全国第一街道(粤海)
📍紧邻深大,背靠腾讯滨海大厦
🚇9号线深大南站/在建15号线
🏫南二外学府一小/中学
💥 新规建面约105-140㎡奢雅空间

在深圳,“粤海街道” 从来都是自带光环的黄金标签。作为公认的 “深圳最牛街道”,这里聚集着城市顶尖的科创资源、高校力量与商业配套,多年来新房供应却堪称 “断供级” 稀缺。
如今,这片寸土寸金的核心区域终于迎来重磅惊喜 —— 翰熙典居,粤海街道 10 年首次上新的地标级奢居综合体,开盘即掀起抢购热潮,用 28 亿成交额与 71% 去化率,实力印证 “粤海资产” 的硬核价值。
科创中心丨擎领世界的粤海雄心
世界四大湾区唯有粤港澳大湾区和旧金山湾有全球科创中心的发展定位。粤海作为粤港澳大湾区核心引擎,依托于重点院校、科创孵化、世界领军企业,成为对标阿瑟顿镇的深圳至臻人居价值版图。
粤海集萃腾讯、大疆等世界五百强企业,汇聚1600余家国家高新技术企业、百余家上市公司,驱动逾千亿年产值,2024年GDP约4500亿元。
矜贵恒产丨问鼎全球的人居高地
粤港澳大湾区——粤海街道,以科技南及后海、深圳湾片区为代表,代言湾区时代地标封面,问鼎深圳至臻人居价值版图
深圳湾1号(二手房价约20-32万/㎡)
华润深圳湾悦府(约19-20万/㎡)
华润城润玺二期(约16-18万/㎡)
深湾CBD丨时代粤海的蝶变新章
深湾CBD立足南山区“双核”战略核心,串联科技园、后海、深超总、深圳中央公园,聚合金融、科技、人文生态超级闭环,以多维战略产业叠加,重塑粤海价值天际线。翰熙典居,是继华润城之后深湾CBD又一人居地标之作,以时代中心之上的奢居基因,铸就跨越周期的矜贵人居恒产。
贵脉源点丨全维中心的奢居地标
翰熙典居占位深圳经济命脉滨海大道与南北科创主轴南海大道交汇处十字轴心。集萃城市区位、科创、人文、TOD四大中心源点。依托两大科技园、四大总部基地,集总部经济+全球科创中心价值,坐享区域发展利好。
枢纽中心丨双地铁上盖TOD
无缝接驳地铁9号线、15号线(在建中)交汇深大南站。核心区罕有TOD项目。
四横:滨海大道、深南大道、北环大道、学府路
三纵:南海大道、后海大道、白石路
(以上所有交通规划最终通车时间以政府最新工程进度落实为准)
5重生态丨山/湖/园/海/湾 聚揽城市一湾风华
1山1湖:深圳大学杜鹃山、文山湖
4公园:荔香公园、文心公园、科技公园、深圳人才公园
1深大后花园
1海湾:约15公里深圳湾滨海长廊
(项目规划连廊直通深大,中国十大最美校园之一。该天桥为方便深大师生进出而设置,后期具体人员进出管理以深圳大学有关规定为准)
百万商业丨湾区繁华潮向 臻藏生活万象
咫尺海岸城商圈,近距离可达深圳湾万象城、万象天地、鹏润达广场、后海汇、来福士广场
9大文体丨城市峯层配套 擘画都心生活闲情逸趣
保利剧院、南山书城、南头古城、南山图书馆、南山文体中心、南山博物馆、深圳湾体育中心、深圳湾文化广场(在建中)、粤海文体中心(在建中)
优教护航丨全龄教育环伺 赋写下一代美好未来
幼儿园:项目自带1所12班制幼儿园
小学:西侧规划有1所30班小学(地块红线外)、南二外学府一小
中学:南二外学府中学、深圳南山中加学校
大学:深圳大学,全国十大最美校园
(周边教育设施如有变动,以南山区教育局最新颁布政策为准)
总平面示意图
公积金首套:2.6% 二套:3.075%
深圳购房注意事项
在深圳购房需注意以下关键事项,涵盖政策、贷款、税费及交易流程等方面:
一、购房资格与政策
1. 限购政策
核心区域(福田、南山、宝安新安街道):深户家庭限购2套,非深户需连续缴纳1年社保或个税限购1套;非深户家庭有2个及以上未成年子女可额外购买1套。
非核心区域(罗湖、龙岗、坪山等):深户不限购,非深户连续缴纳1年社保或个税不限购,未缴社保或个税的非深户限购2套。
盐田、大鹏新区:全国居民均可自由购房,无需审核资格。
成年单身人士:按家庭标准执行限购政策。
2. 公司购房
核心区:公司需注册满1年、员工10人、纳税100万,不限套数。
非核心区:注册即可购房,无套数限制。
二、贷款政策
1. 商业贷款
利率统一为3.05%(5年期以上),首付比例:首套15%、二套20%。
贷款年限最长30年,多数银行可贷款到75岁,公积金贷款只能申请到70岁。
2. 公积金贷款
个人最高126万,家庭最高231万。
首套、二套首付均为20%,保障房首付15%。
贷款额度为公积金余额的16倍,有二孩及以上家庭购买第二套房享首套房政策。
三、税费与费用
1. 契税
首套或二套,140㎡以下1%,140㎡以上首套1.5%、二套2%。
家庭唯一住房且面积≤140㎡,契税为1%;面积>140㎡,契税为1.5%。
第三套及非住宅统一为3%。
2. 其他费用
产权登记费80元/套,抵押登记费80元/套。
二手房增值税、个税等按房屋年限及性质计算,满2年普通住宅免征增值税。
四、交易流程与注意事项
1. 签约前
核查开发商“五证”(国有土地使用证、建设用地规划许可证等),确保商品房销售许可证有效。
二手房需确认房屋产权清晰,无抵押、查封,核实房东户口迁出时间及学位占用情况。
2. 贷款与资金
首付款须为自有资金,禁止使用经营贷或借款。
提前自查征信与银行流水,流水需覆盖房贷月供2倍以上。
3. 收房与验房
核查户口是否迁出,清点钥匙、家电等物品,结清物业费、水电费。
更换门锁芯,确保居住安全。
声明:本文由入驻焦点开放平台的作者撰写,除焦点官方账号外,观点仅代表作者本人,不代表焦点立场。
