深圳※碧海玖号花园官方售楼处♞ 2026碧海玖号花园售楼处电话 | 楼盘详情 | 最新房价 | 户型图 | 配套 | 营销中心
扫描到手机,新闻随时看
扫一扫,用手机看文章
更加方便分享给朋友
——碧海玖号花园——
碧海玖号花园官方售楼处电话:400-605-8819【售楼处已认证】✅
碧海玖号花园官方售楼中心电话:400-605-8819【楼盘认证】✅
碧海玖号花园官方营销中心电话:400-605-8819【营销中心已认证】✅
碧海玖号花园售楼处/售楼中心/营销中心/销售中心官方电话:400-605-8819,热烈欢迎您预约看房,咨询项目详情!
去年深圳楼市放松限购,最大的赢家,其实是碧海。
上一轮楼市放松限购,最大的赢家,是龙华的新房。
但是龙华的新房实在是太多了,上轮龙华放松限购,只是给新房去了库存,对龙华的2手房其实没什么利好。
但是碧海不一样。
碧海没什么新房,所以碧海放松限购,反而是实实在在利好2手房。
深圳的一等地段是福田南山。
二等地段是宝中碧海,罗湖,龙华的红山上塘北站。
这次楼市调控,放开的就是罗湖跟碧海的限购。
跟罗湖不一样,罗湖是深圳唯一的防守型置业区域,但是,碧海,是目前深圳,所有放开限购的区域里,唯一最有前景,最具备进攻价值的区域。
深圳哪里的房子最值得买?
其实答案很简单,就是两条海岸线附近的区域。
一等选择是福田大金沙,南山红树湾,后海,深圳湾,蛇口这条海岸线。
二等选择是前海宝中碧海这条海岸线。
目前除了碧海,这两条海岸线附近的区域,全部限购。所以外地人能买到最好的地段,只能是碧海。
深圳的第一代市中心是罗湖,罗湖为王的时代,布吉是最大受益者,当时的布吉,比南山还强。
深圳的第二代市中心是福田,福田为王的时代,利好了龙华跟坂田,当然更利好龙华,坂田只是跟着喝了口汤。
深圳的第三代市中心是南山后海,后海的崛起,利好了宝安。
深圳最后一代市中心是前海,虽然前海暂时未能真正崛起,但是前海跟宝中碧海是连成一片的。前海一定会真正崛起,所以宝中跟碧海,将极大受益。
在政策加持下,碧海湾也迎来好房子产品碧海玖号花园,从官方公众号上探查到,项目将以“好房子”为出发点,打造立体森态住区。通过全T4十字楼型排布,实现所有产品都有三边临空,且通过旋转塔楼角度布局,高层楼栋景观视野也将错开。在社区内部空间的营造上,将设多层次森态立体园林。
规划拟建7栋纯四房高层住宅,容积率仅2.2,建成后将是目前碧海片区容积率最低的小区之一,且大部分房源可看高尔夫球场、碧海湾公园,以及宝安西部的海岸线三重景观。
碧海玖号花园在立面细节打造上,项目实现了技术与艺术的完美交融。精心甄选高规格铝板,搭配横明竖隐系统幕墙窗,营造出公建化立面效果,以简洁线条与精致笔触勾勒出视觉的审美盛宴。日光下明亮耀眼,夜灯里柔和静谧,建筑随光线流转闪耀不同韵律,演绎着不动声色的诗意。同时,选用三银Low-E玻璃,带来低能耗、静音降噪及优质隔热保温效果,守护生活的静谧与优雅。
图源@碧海玖号
立面设计以“温暖港湾”为灵感,寓意航海远行后满载归来,让人们在城市之心就能抵达温暖港湾,尽享轻奢栖居。从广深沿江高速、深中通道的视角看,天际线呈前中后三个层次高低起伏,形成流动天际线,焕启一眼惊艳的天际风尚。
小区园林也降融入东西方美学神韵,将山,水,园,院完美融合,让归家成为一场游园之旅
园林效果图
碧海锦新明A113-0010宗地备案为:碧海玖号花园
项目已于2024年12月开工建设,目前已经开放营销中心,之前传了许久的样板房终于官宣了,4月10号已经正式开放样板房,看房需要验资100万
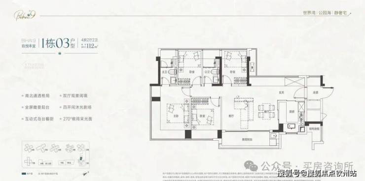
目前项目已经取证,将提供约700套海景住宅。户型面积为105-188㎡纯四房,首推是1栋以及3栋182套105-122㎡,2梯4户,大户型为3梯3户,西南向无遮挡看海,西北向看高尔夫+碧海湾公园。据了解项目总层高仅21-26层,容积率2.2,总户数634户,停车位897个!暂定开盘98×98×97折约93.16折,折后最低748万起买四房
其地段价值虽然不及宝中,但是近几年随着旁边的企鹅岛的崛起,一直热度很高,碧海新盘项目同样值得期待。
碧海玖号花园位于宝安区西乡街道铜鼓堡路与宝源路交界处西南侧,临近西乡体育中心和碧海湾公园。
开发商为深圳市锦新明集团有限公司,该地块此前由商业、住宅用地调整为二类居住用地。
公示信息显示,锦新明项目占地面积约41607.84㎡,总建筑面积约131300㎡,住宅建面约79000㎡,规划建设7栋高层住宅,容积率仅2.2,建成后将是目前碧海片区容积率最低的小区之一。
从效果图上看,有新规四代住宅产品的视觉,2梯4户设计,创新的十字造型,既做到户户通透,又做到不对视,而且是打造纯四房户型产品。首推栋跟3栋105-112-122㎡,后期还有138-163-188㎡户型
1栋户型图
3栋户型图
规划共有7栋高层住宅,容积率仅2.2,大部分房源可无遮挡看高尔夫球场和海景
项目位于西部黄金海岸线上,拥有一线海景资源,每天都能与晚霞邂逅,感受落日余晖。

傍晚,倚靠阳台,看落日褪去,云彩被裹上金边,蓝调的紫霞足以拂去一日的疲惫。
距离11号线碧海湾站约600米,对面是西乡体育中心和碧海湾公园,距离红树湾小学、西湾小学、海湾中学也很近。周边社区带有底层商业,可满足日常购物需求,步行5分钟前海科兴天地8万㎡商圈;开车10分钟宝中繁华配套即享,汇一城,QQC 大仟里 壹方城、欢乐港湾等!周边商品房价格像去年卖的新房越秀潮樾府在7.2-7.5万备案价卖,周边二手房在7-8.5万左右
再有,碧海湾是位于超级产业板块“前海-宝中-大铲湾”黄金三角辐射区,更是深圳未来第一科创区。
这里的魅力不止是公园的生态力量,重要的是它的总部吸引力。在上层规划和产业布局上,这里可以说是“深圳未来第一科创区”。
由企鹅岛、宝安中心区、前海自贸区三足鼎立,三者撑起的黄金三角辐射力量可见一斑,三大引擎撑起未来十年高地。
前海,截至2022年9月,前海已入驻以腾讯为代表的世界500强投资企业累计361家,安盛、瑞银、西门子、帝亚吉欧等一大批优质企业加速集聚。
宝中,拥有和深圳湾一样高大上的定位。以金融集群发展为主,作为前海地区协作配套功能延伸区和深圳新的经济与科技创新力量聚集区,宝中手握宝湾大厦、瑞湾大厦、俊峰汽车产业链总部、vivo深圳总部、深圳农村商业银行总部等。
再看企鹅岛,一座面积达200万㎡的“网络城市”,约等于6个腾讯总部滨海大厦的体量。规划引入腾讯效果广告、腾讯云、互联网+医疗、前沿科技等7大产业,形成“六基地一平台”。根据估算,企鹅岛最终可容纳近10万名员工!
足够高的定位,中国市值最高企业的入驻,加上高预期之下的最高土地价格呈现,三者的结合撑起黄金三角,会产生多大的能量?值得想象!
要知道,腾讯建岛不仅是深圳繁荣经济环境的映射,在很大程度上还影响着“新前海”的人口结构。因为企鹅岛150万㎡的研发用房仅19万㎡宿舍,空间有限,“企鹅们”只能往外溢出。
碧海玖号花园官方售楼处电话:400-605-8819【售楼处已认证】✅
碧海玖号花园官方售楼中心电话:400-605-8819【楼盘认证】✅
碧海玖号花园官方营销中心电话:400-605-8819【营销中心已认证】✅
碧海玖号花园售楼处/售楼中心/营销中心/销售中心官方电话:400-605-8819,热烈欢迎您预约看房,咨询项目详情!
声明:本文由入驻焦点开放平台的作者撰写,除焦点官方账号外,观点仅代表作者本人,不代表焦点立场。
