中建鹏宸云筑售楼处电话丨首页官方网站-中建鹏宸云筑营销中心欢迎您-2025实时房价-户型图-楼盘详情-容积率@官方售楼处中心2026.1.21
扫描到手机,新闻随时看
扫一扫,用手机看文章
更加方便分享给朋友
中建鹏宸云筑官方售楼处:400-031-6012【工作日9:00-21:00,周末无休】
中建鹏宸云筑官方24小时电话:400-031-6012【营销中心☎☎已认证】
中建鹏宸云筑官方营销中心:400-031-6012【售楼中心☎☎已认证】
中建鹏宸云筑官方营销中心24小时电话:400-031-6012【售楼处限时特价】
中建鹏宸云筑官方营销中心官方售楼中心24小时电话:40 0-031-6012【营销中心☎☎已认证】
中建鹏宸云筑官方营销中心营销中心24小时电话:400-031-6012【售楼处☎☎已认证】
⭐◆ 开发商营销中心诚挚邀请,为您安全和隐私保驾护航,一键预约,尊享内部折扣!匠心独运的精品项目,恭候您的品鉴与选择。⭐ 过来参观样板房烦请记得提前来电预约!安排楼盘现场销售全程接待并讲解,给您更贴心的看房体验!
====基础指标 ====
•总占地面积:约4.2万㎡
•总建筑面积:约31万㎡
•规定容积率 :≤5.37
•绿化覆盖率 :约40.01%
•开 发 商 :中建壹品&湖北文旅
•总 户 数:总户数1992户(东区1016户,西区976户)
•停 车 位:总2155个(东区1059个,西区1096个,车位与幼儿园共享,东西区停车场不连通)
•楼 栋 数:总共10栋楼
•梯 户 比:西区高层2梯5户,超高层3梯6户
•在售户型:建筑面积约89㎡、102-103㎡、104㎡、120㎡、126㎡、139㎡
•项目地址:龙华·8号仓旁·华南数字超核
•导 航:鹏宸云筑·岭南美学馆(华南路旁)
==【鹏宸云筑】必买理由==
【口碑见证】超3000批客户冻资鉴证,超千户业主认可
【品牌钜献】双国匠联袂钜献,品质保障行业标杆
【城市中轴】十字中轴交汇,定鼎湾区极核
【区域跃升】梅林关&华南数字超总,区域腾飞
【配套迭代】全维度配套服务,进阶改善首选
【社区进阶】建面约31万㎡人文高阶住区,纯粹圈层
【园林焕新】清晖园灵感传承,岭南高阶人文住区
【精工品质】精工智能奢居,一线品牌精装
【产品革新】家庭全阶段户型,新规产品高使用率

🏆【口碑见证】超3000批客户冻资鉴证,超千户业主认可
🔥【深圳顶流热盘💎八开八捷✨传奇加冕】
🏆历经八次开盘,次次热销全城🏆
🔥首开日光大捷,持续创领TOP榜🔥

🔥【实力红盘,热销鉴证,品质口碑认可】
🔥2025年1-11月深圳住宅销售业绩TOP3🔥
🔥2025年4-11月蝉联龙华区网签套数TOP1🔥
🔥2025年1-11月深圳房地产企业销售业绩TOP12🔥
(新房销售金额及网签套数排名数据来源于中指研究院)
💎超30000批客户到访,共创顶流热度💎
💎超3000批冻资抢房,热销实力鉴证💎
💎超1000批业主认购,品质口碑双赢💎
(来访、冻资、业主数据来源:中建壹品营销互动中台)

🏆【品牌钜献】双国匠联袂钜献,品质保障行业标杆
🎖中建三局——中国建筑业竞争力百强企业榜首,世界500强企业
入深40余载,与深圳共生长,从国贸大厦、地王大厦,到春笋、春茧,再到深圳国际会展中心、宝安国际机场T3航站楼等,在深承建工程总建面积逾3亿m²,2200多项深圳地标及民生工程。

🎖中建壹品——中建三局旗下专业房地产投资开发运营平台,2024年中国房地产百强企业TOP30
累计获得国家广厦奖、华鼎奖、美国MUSE金奖、美国TITAN金奖、第七届LA园匠杯年度地产示范区景观优秀奖等数十项荣誉,截至目前,累计开发地产项目66个,计划权益总投资额1777亿元,开发面积1939万平方米,经营触角延伸至4省13市,并重点向北上深等高能级城市布局。

🎖湖北文旅——湖北政府控股的国有企业,蝉联中国旅游集团20强
擅长以现代人文手法构筑人文诗居生活,拥有3000平方公里旅游资源,景点包括恩施大峡谷、长阳清江画廊、神农架、襄阳古隆中7家5A级景区以及37处优质旅游资源。

🏆【城市中轴】十字中轴交汇,定鼎湾区极核
(1)科创中轴|纵贯莞深港,湾区时代的顶层设计
港深科创中轴之上,纵贯莞深港,北起东莞松山湖,串联光明科学城、观澜高新园、华为-富士康基地、华南物流园、梅林关片区,一路向南延伸至香蜜湖新金融中心、福田CBD与河套深港合作区,鹏宸云筑占位“中轴之中”,揽资源聚核。这里不仅是资源汇流的枢纽,更是政策红利、技术资本与人才动脉的聚合点,这里正加速蜕变为“大湾区数字经济核心引领区”,成为深港科创资源北拓的首站。
以上信息来源于龙华政府在线官网(https://www.szlhq.gov.cn/bmxxgk/zdqyjstjzx/dtxx_124551/gzdt_124552/content/post_11725351.html)

(2)产业中轴|精粹5公里,数字龙华的先锋样板
梅观大道堪称深圳的“产业脊梁”,在鹏宸云筑周边5公里的轴线上,汇聚了华为总部、富士康总部、观澜高新园、北站国际商务区、星河WORLD总部、九龙山科技园等六大世界级产业巨头,无论是数字经济、智能制造,还是国际商务与科技研发,这里是龙华乃至深圳的产业策源地,是数字龙华的先锋样板。
以上信息来源于深国际官网https://www.szihl.com/business/majorproject/7.html)

(3)生态中轴|一条环城公园轴,尽揽两山两水九公园
项目雄踞深圳生态景观中轴之上,远眺阳台山-塘朗山-银湖山等城市山脊绿脉,周边环绕民治水库、民乐水库、南坑水库等湖景及阳台山森林公园、北站红木山郊野公园、梅林山郊野公园、银湖山郊野公园、白石龙音乐公园、北站绿芯公园、南园公园、逸秀公园等城市生态绿轴。小区楼下就是民悦公园(规划中,总投资约1.7亿元,内建环水库人行步道、娱乐广场、运动休闲游乐设施等。)
以上信息来源于龙华政府在线官网https://www.szlhq.gov.cn/xxgk/zcfg/zcjd/content/post_11564082.html。以上信息来源于深圳公共资源交易中心官网https://www.szggzy.com/globalSearch/index.html?wd=%25E6%25B0%2591%25E6%2582%25A6%25E5%2585%25AC%25E5%259B%25AD)


🏆【区域跃升】港深科创中轴之上,梅林关&华南数字超总站位
(1)梅林关|“深港科技中轴”重要战略支点,近700亿投资
梅林关是以交通枢纽、产业集群、商业核心与科教人文为战略规划的世界级“中央活力生活区”,2024年10月,龙华区正式官宣:梅林关片区将全面对标纽约哈德逊城市广场、巴黎拉德芳斯区,打造一座“垂直立体的轨道上盖之城”,总投资规模近700亿元,由中建三局集团有限公司深度参与整体开发运营,将梅林关打造为“大湾区数字经济核心引领区、数字科创先锋示范区”,改造范围约4.63平方公里,预计新增开发量180万平方米,推动片区年总产值突破1500亿元,创造近6万个高端就业岗位。
以上信息来源于澎湃新闻《龙华将重点打造“双中心”“双十园”!争取“十五五”末GDP突破6000亿元》(https://www.thepaper.cn/newsDetail_forward_29154419)

(2)华南数字超总|四大微城市之一,湾区高密度数字集群
华南数字超总规划占地约60万平方米,以产、学、研、住、休一体化自循环空间规划,计划引入世界500强企业进驻(目前世界500强企业【海克斯康】已落户于此,已集聚35+龙头名企,数字产业集群度达95%),将打造成为继腾讯企鹅岛、深圳湾超级总部基地
、香蜜湖之后深圳第四大微城市,涵盖人工智能、5G技术、工业互联网、云计算、智能终端、新能源等高密度数字集群产业,未来可吸纳约1.5万个高新科技产业人才、年产值将达到500亿元。
关于“华南数字超级总部基地”的规划信息,来源于深国际控股有限公司官网文章《深国际华南物流园转型升级》,您可以在搜索引擎搜索“华南数字超级总部基地”等关键词信息,更进一步了解详情。(https://www.szihl.com/business/majorproject/7.html)

(3)超百轮土拍热抢,鉴证价值高地
7月7日,民治街道梅林关A802-0309号宗地,吸引6家开发商参拍,经108轮竞价,以23.7亿元总价、38795元/㎡楼面价、40.74%的溢价率被拿下;6月19日,民治街道上塘A817-0619号宗地,吸引8家开发商参拍,经57轮竞价,以12.12亿元总价、44559元/㎡楼面价、46.6%的溢价被拿下,房企热抢 ,区域未来的价格充满想象。

🏆【配套迭代】全维度配套服务,进阶改善首选
(1)多维交通路网,2站福田/3站深圳北
距地铁10号线南坑站C出口直线距离约600米,2站进福田,5站到岗厦北;民乐路衔接横岭立交(预计2026年开通)转梅观快速,南通福田CBD核心区,北接深圳北站。
(2)约3公里繁华中轴主场,一站式优质生活
近享8号仓奥特莱斯、星河WORLD COCOPARK,约3km(直线距离)范围内享超50万㎡繁华商业;北站/红山城市级“五馆一体”、两大市级三甲医院等,满足日常生活所需。
(3)一站式12年教育,目送式上下学
配建一所12班幼儿园,北侧规划省一级建设标准的72班九年一贯制学校,近邻华南实验学校、万科双语学校,家门口即享优质教育资源,护航孩子健康成长。
(详情请点击:https://mp.weixin.qq.com/s/KQkEAXqm8SL67pg6X6fzTQ)

🏆【社区进阶】建面约31万㎡人文高阶住区,纯粹圈层
总占地约4.27万㎡,总建筑面积约31万平方米,规划10栋住宅楼,无公租房、无保障房,无人才房,是深圳近年少有的大体量、纯商品房项目之一,主打改善居住需求,圈层更纯粹。

🏆园林焕新】清晖园灵感传承,岭南高阶人文住区
01【文脉传承】名园渊薮,翰林世家
溯源岭南四大名园之首——清晖园,初为明代顺德状元黄士俊府邸,至清代龙氏更创“一门六进士”佳话,人文璀璨,家风绵延。
02【整体格局】园纳万象,六境生辉
以“园藏万象”为核心理念,融汇“山水六境”,打造自然森意与现代相融的岭南美学栖居。
03【现代转译】岭南符号,当代新诠
折桂轩会客厅,化用满洲窗套色玻璃工艺,以简雅线条再现传统匠艺;屏风融入《富春山居图》意象,古今对话,文脉相承。
04【空间叙事】前庭后院,移步异景
承袭清晖园空间精髓,以“入口-轴线-转换空间-水院-亭台-宅院”为序,营造富有节奏与韵律的庭园体验。
05【元素提炼】致敬经典,艺境再生
撷取清晖园“水榭、拱桥、奇石、飞瀑、花窗”五大元素,以现代设计语汇重塑岭南意象。
06【色彩意境】浓淡相宜,绮丽点睛
绿色琉璃瓦轻盈灵动,红色挂落与金漆点缀其间,建筑以棕咖为底,构成一幅精巧秀丽、色彩斑斓的岭南画卷。


🏆【精工品质】精工智能奢居,一线品牌精装
•小户型“拎包入住”,大户型品质升级,全屋科勒、方太、东芝等一线大品牌,厨房岛台设计、厨房电器交付标准、客厅背景岩板等,打造质感生活。
•智能家居,APP/小程序远程控制,智能门锁、智能中控、智能入户、智能灯光、智能窗帘等。

🏆【产品革新】全生命周期户型,新规产品高使用率
•深圳建筑新规首发项目之一,超高综合实用率
•创新型成长户型,适应家庭不同阶段的需求变化,拔墙设柱设计、分户S墙、创新LDKC内外亲子双区等
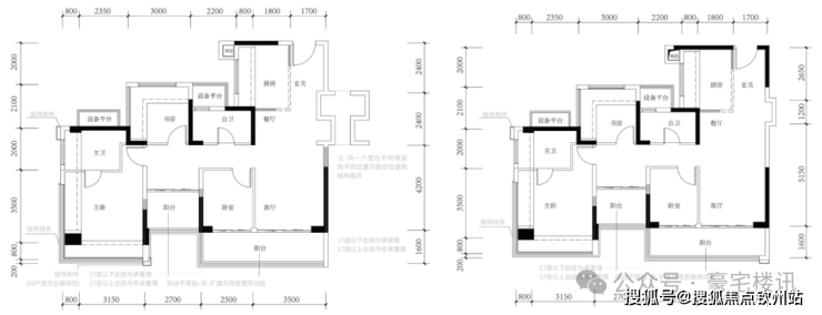
(1)建筑面积约89㎡户型
💎多变空间︱方正阳光户型,个性化多变设计
💎奢适主卧︱独立卫浴套房,私享雅致生活
💎瞰景阳台︱南向瞰景阳台,纳藏湖山风光

(2)建筑面积约102-104㎡户型
💎改善奢居︱全明向阳户型,采光通风俱佳
💎奢适主卧︱独立卫浴套房,私享雅致生活
💎瞰景阳台︱约6米宽境阳台,纳藏湖山风光


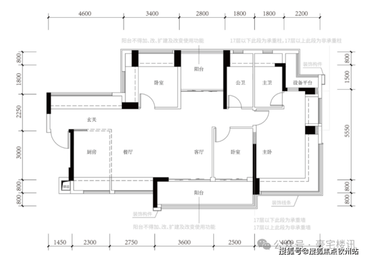
(3)建筑面积约120-121㎡户型
💎尊崇入户︱约4.6米宽境玄关,收纳居家琐碎
💎南北双阳台︱阔景双阳台,南北对流通透明亮
💎轩敞横厅︱约6.35米尺度横厅,LDKG空间无界

(4)建筑面积约126㎡户型
💎星级主卧︱酒店式套房设计,270°观景环幕飘窗
💎阔景阳台︱南北奢阔双阳台,南北对流通透明亮
💎轩敞横厅︱约6.5米尺度横厅,LDKG空间无界

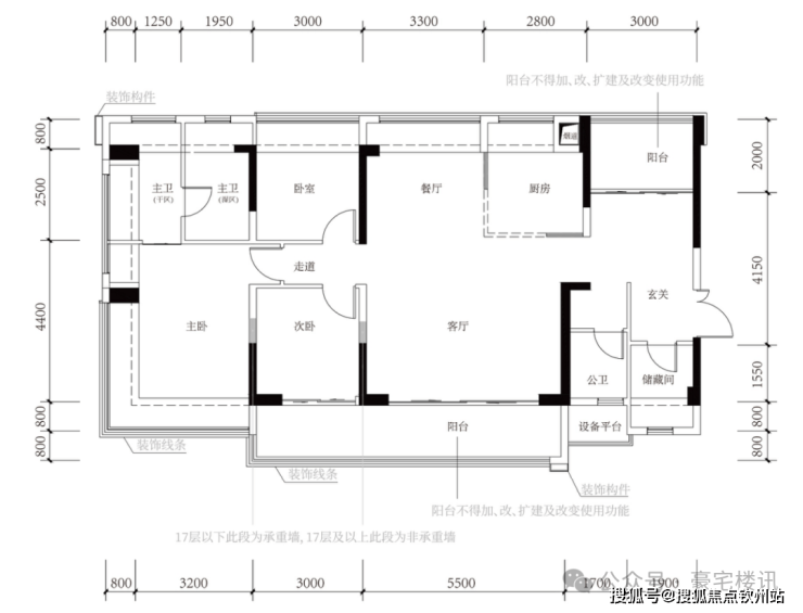
(5)建筑面积约139㎡户型
💎归家不凡︱入户玄关储藏间,彰显大宅风范
💎天幕阳台︱约8.5米宽奢阳台,空中庭院享受
💎家族聚场︱LDKG气派方厅,圆满三代同堂

中建鹏宸云筑官方售楼处:400-031-6012【工作日9:00-21:00,周末无休】
中建鹏宸云筑官方24小时电话:400-031-6012【营销中心☎☎已认证】
中建鹏宸云筑官方营销中心:400-031-6012【售楼中心☎☎已认证】
中建鹏宸云筑官方营销中心24小时电话:400-031-6012【售楼处限时特价】
中建鹏宸云筑官方营销中心官方售楼中心24小时电话:40 0-031-6012【营销中心☎☎已认证】
中建鹏宸云筑官方营销中心营销中心24小时电话:400-031-6012【售楼处☎☎已认证】
⭐◆ 开发商营销中心诚挚邀请,为您安全和隐私保驾护航,一键预约,尊享内部折扣!匠心独运的精品项目,恭候您的品鉴与选择。⭐ 过来参观样板房烦请记得提前来电预约!安排楼盘现场销售全程接待并讲解,给您更贴心的看房体验!
声明:本文由入驻焦点开放平台的作者撰写,除焦点官方账号外,观点仅代表作者本人,不代表焦点立场。
