横琴科学城售楼处电话(横琴科学城)首页网站-横琴科学城营销中心欢迎您-楼盘详情·最新价格-户型图-容积率
扫描到手机,新闻随时看
扫一扫,用手机看文章
更加方便分享给朋友

席位紧缺・横琴仅8%住宅用地
横琴可开发用地约为28平方公里,住宅用地仅占全岛可开发面积的8%,抢占横琴居住席位刻不容缓

【超级大城,地段优越】
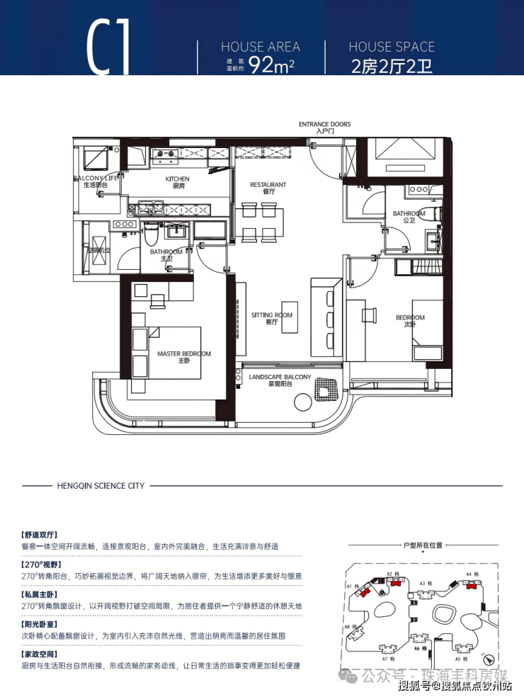
⭕横琴科学城坐落于横琴西北片区,与保税区、洪湾一衣带水,整个项目总建筑面积约385万㎡,总投资约600亿,分三期开发建设。建成后,将是珠江口西岸投资最大、规模最大及配套最优的“超级综合体”。而住宅部分位于横琴科学城一期。按照规划,项目一期总占地面积约32万㎡,总建筑面积约116万㎡,总投资约190亿元,涵盖商品房、人才公寓、幼儿园及商业等功能。住宅已是准现楼状态。外立面、景观园林及周边配套均已真实可见。

【服务"澳门+横琴"新定位】
⭕依托珠海 立足澳琴 辐射湾区 面向海外珠海对港澳服务保障"新窗口""新平台"珠海市珠光集团控股有限公司1980年创立于澳门,“珠光”寓意“珠海之光”,是珠海市最早驻港澳“窗口企业”、唯一的珠澳双总部国有企业。45年来,珠光集团始终与珠澳发展同频共振,已发展成为业务涵盖城市运营、产业投资、跨境服务、文体旅游,总资产规模超1700亿元的综合性集团公司。
⭕站在新起点,珠光集团将紧扣“澳门+横琴”,勇担珠海对港澳服务保障“新窗口“”新平台”,构建珠海和“澳门+横琴”境内外“双总部”模式,为琴澳一体化、澳门经济适度多元发展和珠海高水平对外开放贡献“珠光力量”。




声明:本文由入驻焦点开放平台的作者撰写,除焦点官方账号外,观点仅代表作者本人,不代表焦点立场。
