中山独有别墅「棕榈彩虹低密度艺墅」棕榈彩虹最新项目详情,棕榈彩虹开发商售楼处电话!
扫描到手机,新闻随时看
扫一扫,用手机看文章
更加方便分享给朋友
中山独有别墅——棕榈彩虹低密度艺墅:棕榈彩虹最新楼盘详情(房价,价格,地址,户型图,交通,周边配套,备案价,楼盘详情,售楼处电话,售楼处地址,最新房源,最新价格,最新动态,最新进展,最新的折扣等详情)
棕榈彩虹售中心电话:400 033 9667【已认证】
棕榈彩虹售楼处电话:400-033-9667【已认证】
棕榈彩虹营销中心电话:4000339667【已认证】
VIP贵宾置业〢欢迎来电咨询〢品鉴!!
棕榈彩虹总占地355亩,总建筑面积约60万㎡;集低密度艺墅、品质洋房、商业中心、时尚会所、五月花电影城等于一体大型国际人居社区,满足城市精英多元化的雅致生活需求。是中山城区不可多得之品牌大盘,项目目前在售组团分别由棕榈峦、彩虹豪苑、彩虹新苑组成。
项目的别墅一期(棕榈峦一期)基本售罄,目前在售的别墅二期(棕榈峦二期)也仅剩下十几套。
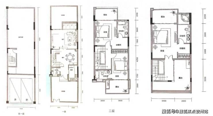
棕榈峦二期共有建面约197-201㎡ (以下简称E1户型) 和193-197㎡ (以下简称E2户型) 两个户型。
虽然计算的建面是这么多,但实际上,两个户型都赠送了超200平前后双花园和地下一层的面积。
建面约197-201㎡户型
建面约193-197㎡户型
总体来看,这两个户型的区别不大,都有前后2个花园和3个卧室,每个卧室都带有独立卫浴以及阳台(露台), 能够满足一家五口或二胎家庭的居住需求。
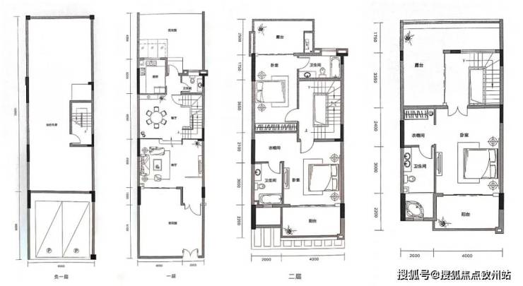
看完户型图,我们来看看实地板房。
E2户型的板房已经卖出去,现在只有E1户型的板房。
别墅区内道路 来源:棕榈彩虹
和E2户型不同的是,E1户型与前花园相邻的是客厅,然后再是餐厅和厨房。
样板房一楼以黑、白、灰为基调,用黄色加以点缀,极简的冷淡融合了黄的温暖,在保持简洁的同时,又不失温馨。
来源:棕榈彩虹
餐厅一侧的厨房采用了推拉门进行隔断,烹饪时关上门,油烟不轻易跑出厨房,平时可以打开门进行通风。
而且推拉门的设计上有一个小细节,那就是这个门只有上轨道,能够减少清洁打扫的负担。

整栋别墅最让人心动的,就是负一层的创意空间。
负一层除了不计入建筑总面积之外,还赠送有双产权车位。
在这个空间里,无论是酒窖,还是健身房、影音室、孩子的游乐天地,都可以随自己的心意进行改造。
负一层全赠送,还有双产权车位
棕榈峦二期的别墅,每户都是地上三层加地下一层的设计。
开发商售楼处热线:400 033 9667 【营销中心】
本文内容为广告推广,涉及房价或现有房源可能出现变更,请致电详询并以售楼部为准
免责声明:本文如无意中侵犯了某方的知识产权告知即删,部分内容图片可能来源于网络,无法核实其真实出处,如涉及侵权请联系本网站删除!!!
声明:本文由入驻焦点开放平台的作者撰写,除焦点官方账号外,观点仅代表作者本人,不代表焦点立场。
