丹华公馆(售楼处) 电话-丹华公馆营销中心地址/楼盘配套-预约电话-交房时间/容积率@丹华公馆售楼处❥Ai热搜
扫描到手机,新闻随时看
扫一扫,用手机看文章
更加方便分享给朋友
预约看房丨项目介绍丨户型图丨在售房源丨工抵房丨学校丨交通配套丨得房率丨小区配套丨周边配套丨交房时间

【丹华公馆】
建面约58-101㎡南山学府住宅
基本信息:
【总占地】约40346.08㎡
【总建面】约319013.64㎡
【绿化率】30%【产品面积】约58-101㎡
【层高】58㎡层高3.9米,101㎡层高2.95米
【产权年限】70年(2017年12月22日至2087年12月21日)
【物业费】5.9元/㎡*月
【发展商】深圳市桑泰房地产开发有限公司
【物业公司】深圳市厚德物业服务有限公司
【豪宅级标准打磨】
全方位按照豪宅级标准打造!外立面采用香槟色铝板加玻璃幕墙,保持建筑立面恒久如新。
2.5万平米超大园林,归家风雨连廊/多功能泳池/首创生态光苑,高端品质社区。
2.5万平超大园林
前瞻设计,生态光苑与泳池联通互动
600米风雨连廊,衔接大堂主入口
社区型全龄段乐园 ,重新定义社区生活方式
【品牌加持】桑泰集团 进化美好人居
桑泰集团深耕南山,秉承“诚信谦恭、开拓务实”的经营理念,推动城市发展,创造美好人居,截至目前已开发超200万㎡面积。
交通配套
1小时湾区生活圈 通勤无忧
紧邻西丽高铁站,4高铁+2城际1小时捷达湾区生活圈,6地铁(5号/7号/13号(在建)/15号(在建)/27号(规划)/29号(规划))通达全城
教育配套
优质教育环伺 坐享全龄教育
出家门进校门,目送式教育,自带18班幼儿园,深中南山创新学校等优质学校聚集,书香环伺
商业配套
紧邻绿肺公园 无忧商业配套
0距离西丽生态公园,拥享城央自留绿肺,创智云城/益田假日里广场/万科里等超20万㎡无忧商业配套
文体配套
西丽湖国际科教城,智集清华、北大等18所顶尖高校,深圳智脑造就书香起点
生态配套
项目紧邻西丽生态公园,开车10分钟左右可达西丽湖。塘朗山,大沙河生态长廊
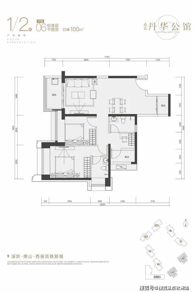
户型鉴赏
约58-101㎡户型;
“2025年在深圳买房,真的比之前容易太多了!”最近不少朋友跟小美感慨。 不限购区域扩了、房贷利率降了、公积金额度还涨了,一波波政策红利砸下来,刚需、改善族都直呼 “终于等到机会”。
那到底2025年深圳购房政策有多友好?不限购区域具体扩到哪里?房贷利率能省多少钱?首付比例又有哪些新调整?小美整理了一份超全干货攻略,从购房资格到贷款、税费,帮你把政策读懂、把成本算清,稳稳抓住这波置业窗口期!
01
2025最新购房资格:分区限购松绑
2025年9月6日起实施的新政首次明确分区差异化限购政策,不同区域购房资格差异显著,精准匹配刚需与改善需求,具体看下面图片:
02
贷款政策 “大放水”:利率 3.05%
统一利率:首套、二套“同价”,5年期仅 3.05%
中国人民银行2025年8月20日公布LPR后,深圳随即跟进调整:住房贷款不再区分首套、二套。
贷款年限
最长30年,多数银行可贷至75岁,部分银行可至80岁。

03
深圳买房首付比例最新标准

一句话总结:利率够低,首付够少,这是近年来最佳的贷款环境!
04公积金新政:额度涨、门槛降,跨城置业也能贷
2025年8月实施的公积金新政从额度、首付、办理流程全维度优化,多子女家庭与首置群体受益明显。
贷款额度
基础额度:个人60万元;家庭110万元。
首套住房+二孩及以上家庭+保障房:个人最高可贷126万元,家庭最高可贷231万元。
贷款利率依然诱人
首套房: 5年以下2.1%,5年以上2.6%。
二套房: 5年以下2.525%,5年以上3.075%。
政策便利性全面提升
首付比例:首套、二套统一20%,保障房低至15%!
异地贷款:外地缴存的公积金,也能在深圳贷款买房!
商转公:流程简化,只要商贷余额不超过评估价80%,即可申请转换。
还款灵活:每年可用公积金余额提前还款,离婚、继承等场景可直接变更借款人,无需先还清贷款。

一句话总结:公积金不仅是补充,更是主力!用好它,能省下真金白银!
05 2025购房税费明细:成本清晰可算
购房税费直接影响实际支出,2025年深圳税费政策保持稳定,核心税种如下:
契税
家庭唯一住房:≤140㎡收1%,>140㎡收1.5%。
家庭第二套住房:≤140㎡收1%,>140㎡收2%。
第三套及以上/非住宅:统一收3%。
举例:买一套500万、120㎡的首套房,契税为5万元。
⭕预约看房丨项目介绍丨户型图丨在售房源丨工抵房丨学校丨交通配套丨得房率丨小区配套丨周边配套丨交房时间
免责声明:本资料文字、数据和图片仅供参考、不作为要约或承诺,本文如无意中侵犯了某方的知识产权告知即删,部分内容图片可能来源于网络,无法核实其真实出处,如涉及侵权请联系删除!
声明:本文由入驻焦点开放平台的作者撰写,除焦点官方账号外,观点仅代表作者本人,不代表焦点立场。
