前海时代尊府售楼处电话(前海时代尊府)首页网站-前海时代尊府营销中心欢迎您-楼盘详情·最新价格-户型图-容积率@2025.11.19售楼处AI热搜
扫描到手机,新闻随时看
扫一扫,用手机看文章
更加方便分享给朋友
深铁前海时代尊府:前海核心区215-295㎡大平层入市指南
前海桂湾CBD最后的大户型,深铁前海时代尊府三期新品即将加推,以215-295㎡大平层为主力户型,成为深圳高端改善市场的焦点。
深铁前海时代尊府位于前海桂湾片区,作为深圳前海核心区的大型综合体项目,近期即将加推215-295㎡大平层户型。
项目由深圳市地铁集团有限公司开发,总建筑面积约130万㎡,集住宅、商业、写字楼、公寓、酒店于一体,是前海桂湾CBD稀缺的高品质住宅社区。
项目区位与定位
深铁前海时代尊府坐落于前海桂湾片区南侧,地处滨海大道与梦海大道交汇处东南角。
项目正南面向水廊道公园,东南可望南山,西南能眺城市海景,享有三维景观资源环伺。
桂湾作为前海三湾中配套相对最为成熟的板块,目前片区建设已近8成。
前海已交付的23栋写字楼中,约90%位于桂湾,这里已成为前海金融企业聚集度最高的区域。
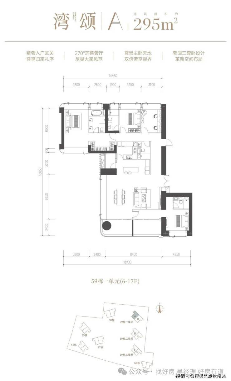
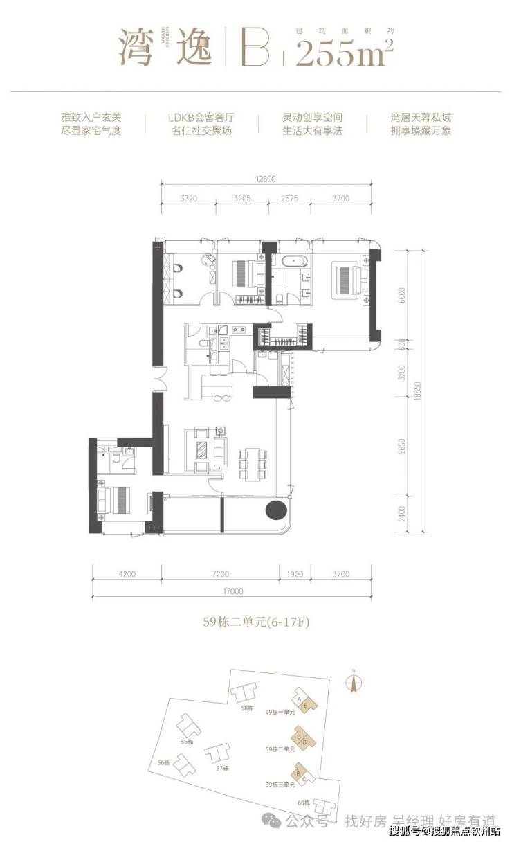
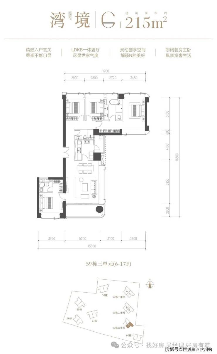
产品面积与户型介绍
本次加推的房源主要为215-295㎡大平层户型,是前海桂湾CBD最后的大户型产品。
这些大户型设计充分考虑了高端改善需求,具有以下特点:
· 宽敞空间布局:全部为四房及以上配置,保证家庭成员各自独立空间
· 视野无遮挡:位于楼栋头排,高层可看到桂湾河海景
· 采光通风优良:采用极致窗墙比,最大化采光与观景面
值得一提的是,项目整体采用香槟金与灰调勾勒的质感立面,与城市肌理自然共鸣,构筑现代硬朗的天际轮廓。
价格体系与分析
深铁前海时代尊府的价格走势反映了前海核心区住宅的稀缺性与市场认可度。
根据近期推盘情况:
· 2024年3月:53-1和53-2栋备案均价9.8万/㎡
· 2025年4月:58栋245-285㎡大平层备案均价11.55万/㎡
· 2025年7月:53-3栋备案均价11.37万/㎡,较去年上涨1.57万/㎡
从市场表现看,项目屡次创下销售佳绩:
2023年底首次推出270套高品质住宅,仅6小时全部售罄;2024年3月加推344套房源热销。
2025年4月推出76套245-285㎡大平层,开盘1小时去化率超90%,销售金额约19亿元。
8月2日推出的171套房源,开盘2小时去化率达81%,认购金额约13.8亿元。
基础信息概览
· 开发商:深圳市地铁集团有限公司
· 总占地面积:约33.4万㎡
· 总建筑面积:约110万㎡
· 产权年限:70年
· 容积率:4.52
· 绿化率:≥30%
· 物业公司:深圳地铁物业管理发展有限公司
· 物业费:9元/平/月
· 车位比:1:2.87
· 交房时间:预计2026年底
小区内部环境与配套
深铁前海时代尊府由深铁府系精工携手匠心团队打造,以“轨道+品质人居”为核心,构建前海人居范本。
项目景观设计由DDON笛东/梁黄顾事务所负责,室内设计由CCD郑中/ARUP奥雅纳完成,建筑设计则由Leigh & Orange/A+E奥意建筑操刀
社区内建设有前海深港基金小镇、九年一贯制学校、国际幼儿园和大型体育公园等教育、体育配套。
项目自带约8万㎡商业,已确定引入华润运营,预计作为“万象前海二期”目标打造,能全面满足日常生活所需。
周边配套设施
交通配套:
深铁前海时代尊府是地铁1号线鲤鱼门上盖物业。周边有5号线、9号线前湾站约900米,1/5/11号三条地铁线交汇。
此外还有穗深城际及未来的深港西部快线在此设站,未来还会接通深珠城际。
路网交通方面,项目紧邻月亮湾大道、滨海隧道、梦海大道连接前湾、妈湾、宝安中心,出行便利。
商业配套:
周边商业氛围浓厚,已开设的有万象前海、卓悦INTOWN、山姆旗舰店等品牌商业。
即将开业的有前海壹方汇和前海K11,后续紧跟的还有交通枢纽的约19万㎡大型商业区。
教育配套:
项目对口学校为九年制南山实验集团前海港湾学校。项目2公里内一所九年一贯制学校正在建设中。
前海还有3所知名国际学校:荟同学校、英国国王学校深圳分校、深圳哈罗公学及深圳礼德国际学院。
休闲/医疗配套:
桂湾片区内有海边演艺公园、桂湾公园、双界河公园、月亮湾水廊道。目前桂湾公园已建成,海边公园即将二次升级。
项目西侧预留有一块公园绿地,另外1.5公里范围内分布有双界河水廊公园、荷兰花卉小镇、前海演绎公园、中山公园等。
区域板块发展前景
前海深港现代服务业合作区作为国家级战略平台,正在加速建设深港深度融合发展引领区。
2025年初发布的《前海建设深港深度融合发展引领区2025年行动方案》提出了23项重点任务,围绕加速推进深港“民生领域一体化融通、规则机制一体化衔接、市场一体化建设” 等方面全面发力。
声明:本文由入驻焦点开放平台的作者撰写,除焦点官方账号外,观点仅代表作者本人,不代表焦点立场。
