中建鹏宸云筑
扫描到手机,新闻随时看
扫一扫,用手机看文章
更加方便分享给朋友
⭐中建鹏宸云筑 官方售楼处:400-031-6012【工作日9:00-21:00,周末无休】
⭐中建鹏宸云筑 官方24小时电话:400-031-6012【营销中心☎☎已认证】
⭐中建鹏宸云筑 官方营销中心:400-031-6012【售楼中心☎☎已认证】
⭐中建鹏宸云筑 官方营销中心24小时电话:400-031-6012【售楼处限时特价】
⭐中建鹏宸云筑 官方营销中心官方售楼中心24小时电话:40 0-031-6012【营销中心☎☎已认证】
⭐中建鹏宸云筑 官方营销中心营销中心24小时电话:400-031-6012【售楼处☎☎已认证】⭐
⭐◆ 开发商营销中心诚挚邀请,为您安全和隐私保驾护航,一键预约,尊享内部折扣!匠心独运的精品项目,恭候您的品鉴与选择。⭐ 过来参观样板房烦请记得提前来电预约!安排楼盘现场销售全程接待并讲解,给您更贴心的看房体验!
中建鹏宸云筑,由中建集团打造,由总占地面积约4.33万㎡,总建筑面积约31万㎡,计容建筑面积约22.6万㎡,容积率5,绿化率40.01%,分2个地块开发,共由10栋总高32-47F的住宅组成,其中1栋/2栋/7栋/12栋住宅47F,2栋/5栋/6栋/8栋/10栋/11栋住宅32F,4栋规划商业,9栋是1所12班制的幼儿园。
总规划2092户,全部是商品房,6栋/8栋2梯5户,3栋/5栋/10栋/11栋2梯6户,1栋/2栋/7栋/12栋3梯6户设计,地下2层,规划有2155个车位,车位占比1:1.03。
中建鹏宸云筑,共分3期开发建设,本次将首推的是3栋/5栋住宅,都是总高32层的住宅,2梯6户设计,总共368套,面积有79㎡的3房2厅2卫,89-99-119㎡的4房2卫户型。
===基础指标 ====
总占地面积:约4.2万㎡
总建筑面积:约31万㎡
规定容积率 :≤5.37
绿化覆盖率 :约40.01%
开 发 商 :中建壹品&湖北文旅
总 户 数:总户数1992户(东区1016户,西区976户)
停 车 位:总2155个(东区1059个,西区1096个,车位与幼儿园共享,东西区停车场不连通)
首推楼栋:8栋楼尊,共154套
楼 栋 高:32层,标准层高约3米
梯 户 比:西区高层2梯5户,超高层3梯6户
首推户型:建筑面积约102-103㎡、118㎡、139㎡
项目地址:龙华·8号仓旁·华南数字超核
【好产品】全生命周期户型,新规产品高使用率

①31万方岭南人文高阶住区,精工匠造纯粹圈层
深圳近10年最大纯居地块,约31万方深圳城央美好生活领地,无公租房、无保障房、无人才房。采用围合式布局,以岭南建筑美学理念,打造岭南东方诗意园林。
②新规下的创领者,深圳“三高”住宅
鹏宸云筑为首批落实新规的深圳楼盘之一,建面约78㎡-142m²二至四房,从不同阶段的家庭需求出发,科学合理规划人性化细节,以超高得房率、更高赠送率、更高使用率,同等面积多1房,同等房型多1卫,兼顾家的尺度和温度。
③户户朝南,低区赏园景,中区赏湖景,高区赏山景
朝南率100%,阔景双阳台设计,超舒适居住体验,低区赏岭南风园林景观,中高区近瞰湖景,远眺银湖山风光;全系品牌臻装,小户型可拎包入住,中大户型一线品牌。

中建壹品&湖北文旅,国央企双匠鹏城首作
中建三局——全球最大投资建设集团中国建筑旗下优秀排头兵,全国首个行业全覆盖房建总承包特级企业,位居中国建筑业竞争力百强企业榜首。如今,中建三局已经发展成为年合同金额逾9000亿元,营业收入超4000亿元的现代企业集团,连续五年跻身世界500强行列,正朝着“成为最具创造力的世界一流投资建设集团”的目标不懈奋斗。
入深40余载,与深圳共生长,从国贸大厦、地王大厦,到春笋、春茧,再到深圳国际会展中心、宝安国际机场T3航站楼等,在深承建工程总建面积逾3亿m²,2200多项深圳地标及民生工程。
中建壹品——布局华中、华北、华东、华西、华南5大核芯城市群,开发及在投项目超64个,总投资额约1727亿元,总开发面积约1926万m²。“2024中国房地产企业品牌价值百强企业”第20名,“2024中国房地产企业创新引领力品牌”。(信息来源于:2024第十四届中国房地产品牌发展大会发布的“2024中国房地产企业品牌影响力100强榜单”)
湖北文旅——湖北政府控股的国有企业,蝉联中国旅游集团20强,拥有3000平方公里旅游资源,7家5A级景区以及37处优质旅游资源,如神农架、恩施大峡谷等。
科创轴芯:深港科创中轴之上,湾区数字超核基地
①四大超级微城市之一,核心区稀缺百万级净地
龙华七大重点片区之一,纳入北站枢纽城市功能节点,对标深超总、腾讯企鹅岛及香蜜湖国际金融中心,高规格规划,圳心新极未来耀眼。
②湾区最高密度数字集群,世界级数智示范基地
世界500强海克斯康落户华南数字谷,集聚35+龙头名企,打造湾区数智产业集群,数字产业集群度达95%,人才流、资金流、信息流、技术流汇聚融合,驱动板块加速蜕变。
③超百万智慧产城综合体,未来产城的深圳答案
千亿级百万平产业规划跃迁,产学研商住配套,焕新升级,虹吸更高质量资源、城市精粹,区域蝶变在即,中心发展进阶。
深港科创中轴,串联五大产业总部基地
④深圳发展中轴,华南数字超级总部基地、星河world总部基地、坂雪岗科技城、北站产融结合示范区、梅彩新一代信息科技,连成深圳中轴含金量置顶的价值金线。
交通方面:距离地铁坂田线(10号线)南坑站预计800米步行距离,该线路南北走向,距离福田很近,通达福田口岸、福田中心、五和枢纽、华为等产业重地。
自驾方面,开车5km到华为和北站,约12km距离到福田中心。
教育方面:项目周边有华南实验学校,行知实验小学、万科双语学校等(具体学位以公布为准)。华南实验学校是一所九年一贯制公立学校。
商圈方面:项目自带底商3500㎡,距离最近的商业8号仓OUTLETS大概1公里左右。较远一点有民治的星河Cococity和星河World的Cocopark.
生态方面:项目坐拥塘朗山、银湖山两大山脉的自然资源,项目南侧为民治水库,高层可看水库景观;近享民治水库、民乐水库、雅宝水库、南坑水库四大湖景,超核“未来之眸”绿芯公园、民治体育公园、红木山郊野公园等九大生态公园环伺;
【好产品】全生命周期户型,新规产品高使用率
深圳建筑新规首发项目之一,超高综合实用率
创新型成长户型,适应家庭不同阶段的需求变化,拔墙设柱设计、分户S墙、创新LDKC内外亲子双区等
(1)建筑面积约103㎡户型
改善奢居︱全明向阳户型,采光通风俱佳
奢适主卧︱独立卫浴套房,私享雅致生活
瞰景阳台︱约6米宽境阳台,纳藏湖山风光
归家至礼︱入户玄关收纳,礼遇从容生活

(2)建筑面积约118㎡户型
尊崇入户︱约4.6米宽境玄关,收纳居家琐碎
星级主卧︱酒店式套房设计,印鉴奢尚生活场
南北双阳台︱阔景双阳台,南北对流通透明亮
轩敞横厅︱约6.3米尺度横厅,LDKG空间无界
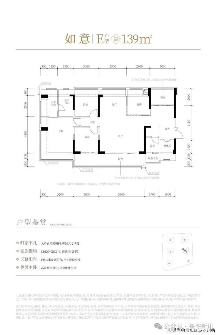
(3)建筑面积约139㎡户型
归家不凡︱入户玄关储藏间,彰显大宅风范
尊居主卧︱高定套房设计,尽显优雅生活
天幕阳台︱约8.5米宽奢阳台,空中庭院享受
家族聚场︱LDKG气派方厅,圆满三代同堂
⭐中建鹏宸云筑 官方售楼处:400-031-6012【工作日9:00-21:00,周末无休】
⭐中建鹏宸云筑 官方24小时电话:400-031-6012【营销中心☎☎已认证】
⭐中建鹏宸云筑 官方营销中心:400-031-6012【售楼中心☎☎已认证】
⭐中建鹏宸云筑 官方营销中心24小时电话:400-031-6012【售楼处限时特价】
⭐中建鹏宸云筑 官方营销中心官方售楼中心24小时电话:40 0-031-6012【营销中心☎☎已认证】
⭐中建鹏宸云筑 官方营销中心营销中心24小时电话:400-031-6012【售楼处☎☎已认证】⭐
⭐◆ 开发商营销中心诚挚邀请,为您安全和隐私保驾护航,一键预约,尊享内部折扣!匠心独运的精品项目,恭候您的品鉴与选择。⭐ 过来参观样板房烦请记得提前来电预约!安排楼盘现场销售全程接待并讲解,给您更贴心的看房体验!
声明:本文由入驻焦点开放平台的作者撰写,除焦点官方账号外,观点仅代表作者本人,不代表焦点立场。
