越秀星科源启售楼处首页网站-(深圳)越秀星科源启欢迎您-越秀星科源启售楼中心-楼盘详情-最新价格-户型图-容积率@售楼处
扫描到手机,新闻随时看
扫一扫,用手机看文章
更加方便分享给朋友
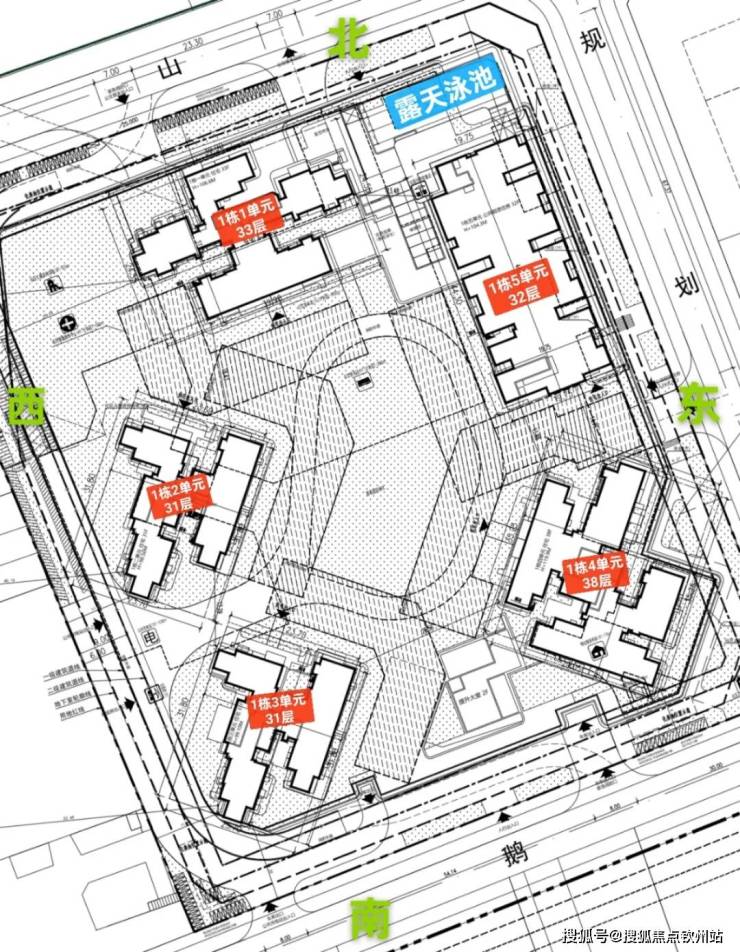
越秀星科源启,由越秀地产打造,总占地面积约3.87万㎡,总建筑面积约20.34万㎡,容积率5.3,绿化率30.03%,分3期3个地块开发,共由10栋住宅组成,其中9栋是商品房,1栋是公租房,配建有1所18班制幼儿园。
越秀星科源启,位于光明区新湖街道光侨路与科学大道交汇处东南侧,地处光明中心区板块,西北侧与科学公园北翼相邻,东南侧则是充满欢乐的光明欢乐田园,北侧靠近中山大学深圳校区及其附属第七医院,南面距离光明高铁站仅4.8公里。
【多维配套 约3km城市缤纷生活圈】
【人文集萃】约1.5km内汇聚深圳科学技术馆、深圳国际美术馆(在建中)、科学城体育中心(在建中)、新湖文体中心(在建中),约3.5KM内光明文化艺术中心、光明国际马术中心等配套簇拥。体验科技与艺术的日常浸润,感受马术的优雅魅力,“人、文、艺、体”皆在左右
【三园一湖】:近拥约2000万m²光明生态廊道,科学公园南北双翼,欢乐田园、光明湖等“三园一湖”环绕,生活与自然无界,走进四季变幻的生态画卷中
【教育无忧】:项目规划一所幼儿园,东侧规划一所九年制学校,约1.5km直达中山大学附属学校,约5km内10余所优质中小学环绕,从启蒙到升学托举“未来科创菁英”的每一步
【缤纷商业】:约4km内汇聚约17万㎡天安云谷商业(部分已开业)、约4.8万㎡万达广场,约10万㎡蓝鲸世界、约6万㎡星河COCOCity(在建中)等四大商圈,潮趣生活、精彩纷呈,满足您对未来生活的多元想象
【健康守护】约1km中山大学附属第七医院,约3.5km光明人民医院,两大三甲医院,先进医疗设备,著名医师团队,365天守护家人的安心生活
【一高铁两地铁三高速 畅达全城】
直线距离约1km内汇聚6号线支线圳美站、光明站双地铁站点,可换乘地铁13号线(在建中),约5km直达高铁光明城站,近享龙大高速、南光高速双交通动脉,畅享大湾区1小时生活圈
(数据来源:百度地图测距)
越秀星科源启,由越秀地产打造,总占地面积约3.87万㎡,总建筑面积约20.34万㎡,容积率5.3,绿化率30.03%,分3期3个地块开发,共由10栋住宅组成,其中9栋是商品房,1栋是公租房,配建有1所18班制幼儿园。
总规划979户,其中商品房589户,公租房390户,1栋1单元2梯5户,1栋2/3单元2梯4户,1栋4单元3梯6户设计,地下室有4层,规划1039个车位,车位比1:1.06。
1、开发商:深圳晟越房地产开发有限公司
2、物业公司:广州越秀物业发展有限公司深圳分公司
3、物业管理费:待定,参考3.9元/㎡
4、总占地面积:1.53万/㎡
5、总建筑面积:13.68万/㎡
6、容积率:6.23
7、绿化率:30.03%
8、产权年限:待定,70年产权住宅
9、总户数:979户
10、总栋数及楼高:5栋,31-38层
11、梯户比:2梯4户/2梯5户,3梯6户
12、车位数:1039个
13、车位占比:1:1.06
14、交楼时间:期房,预计在2028年上半年
15、交楼标准: 精装
户型鉴赏:
一:建面约89平方A1户型三房两厅两卫
亮点1:客厅270度采光设计,客厅更是采用了当下最流行的设计风格「无主厅化」,而且客厅的凸窗进深达到了80CM。
亮点2:入户玄关S型冰箱位,能更大释放出厨房的操作空间,阳台+三个卧室均拥有无敌开阔的视野。
亮点3:主卧270度转角无柱凸窗,根据和周边楼盘对比,只有越秀这个户型做到了无柱,这让整个主卧的采光和视野能达到豪宅级别的居住体验。
亮点4:发现没有,两个卫生间没有上下水内管的设计,因为越秀为了能更大化的利用洗手间,将该户型的上下水管设计到了墙外侧,而且设计到外侧还不影响整个楼梯的外立面,果然越秀还是用了心在做设计的。
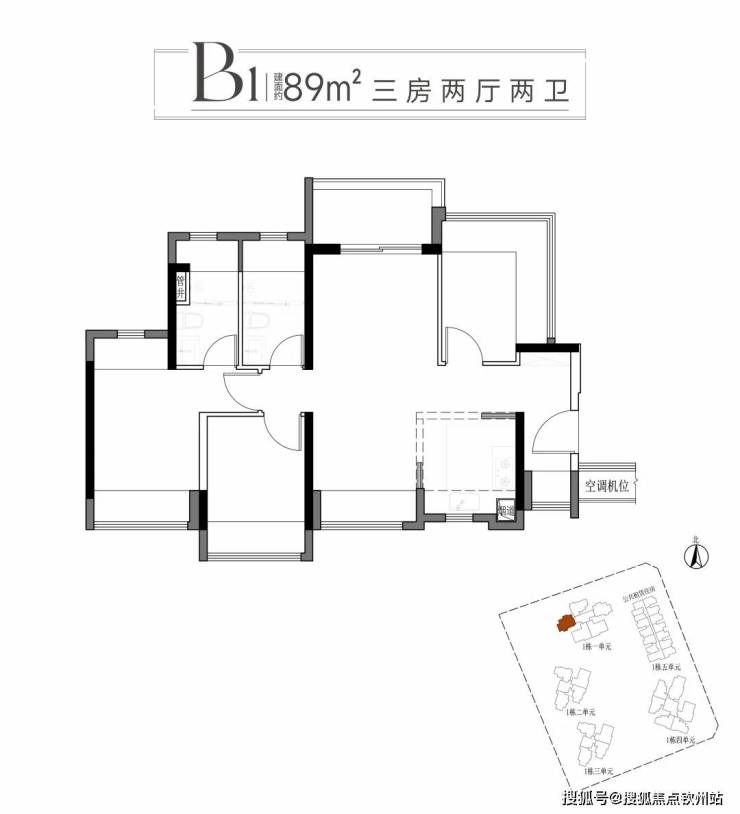
二:建面约89平方B1B2户型三房两厅两卫
亮点1:当下市场最稀缺的客厅南北通透的小面积产品,是真正意义的南北对流,这种设计一般会应用到110平以上的四房。除了客厅能做到南北通透,主卧也是能做到南北通透。
亮点2:大户型才会设计的入户玄关,越秀89平方三房就做了,玄关能提供更大的收纳空间,同时隐私性还特别好,关键是玄关那里还有一个采光窗。
亮点3:客厅和相邻的卧室无承重墙,厨房和餐厅也无承重墙,实际居住中按主业需求都是可大可小的,户型百变灵活,打造全生命周期的家。该户型也是越秀光明项目实用率最高的户型,应该也是关注度最高最抢手的一个户型。
三:建面约112平方C1户型四房两厅两卫
亮点1:客厅与相邻房间之间,餐厅与厨房之间均无剪力墙,提供大方厅的可能性,主卧与相邻房间之间无剪力墙,提供房间合并的灵活性。
亮点2:把其中一个房间放到入户玄关位置,如果是作为办公室或者电竞房使用,能做到和休息区互不干扰。如果作为房间使用,可以用于父母房,能提供更好的居住隐私。
亮点3:主卧270度转角无柱凸窗,根据和周边楼盘对比,只有越秀这个户型做到了无柱,这让整个主卧的采光和视野能达到豪宅级别的居住体验。
亮点4:超大景观阳台,且是朝南看小花园林,晾衣区和阳台景观面分开,不仅不影响客厅采光,而且晾衣服私密性还好,特别是朋友来家里做客的时候。
————【越秀星科源启】————
开发商售楼处热线:400-016-8586 【营销中心】
本文内容为广告推广,涉及房价或现有房源可能出现变更,请致电详询并以售楼部为准
免责声明:本文如无意中侵犯了某方的知识产权告知即删,部分内容图片可能来源于网络,无法核实其真实出处,如涉及侵权请联系本网站删除!!!
声明:本文由入驻焦点开放平台的作者撰写,除焦点官方账号外,观点仅代表作者本人,不代表焦点立场。
