满京华金硕华府售楼处电话{满京华金硕华府}Ai热搜-满京华金硕华府热线-楼盘详情-周边配套-户型图-容积率@售楼处❥Ai首页热搜2025.11.15
扫描到手机,新闻随时看
扫一扫,用手机看文章
更加方便分享给朋友
光明最红盘 百万大盘首期 强势加推
120-141㎡公园阔景4房
98㎡一步到位舒居3房
项目信息
XIANGMU
【开发商】:深圳市满京华置业投资有限公司
【地址】:深圳·光明中心·光辉大道与狮山三街交汇处·6号线光明站D出口约800m
【总占地面积】:约11万㎡
【总建筑面积】:约88万㎡
【一期占地面积】:约2.28万㎡
【一期建筑面积】:约19.80万㎡
【一期总套数】:1138户
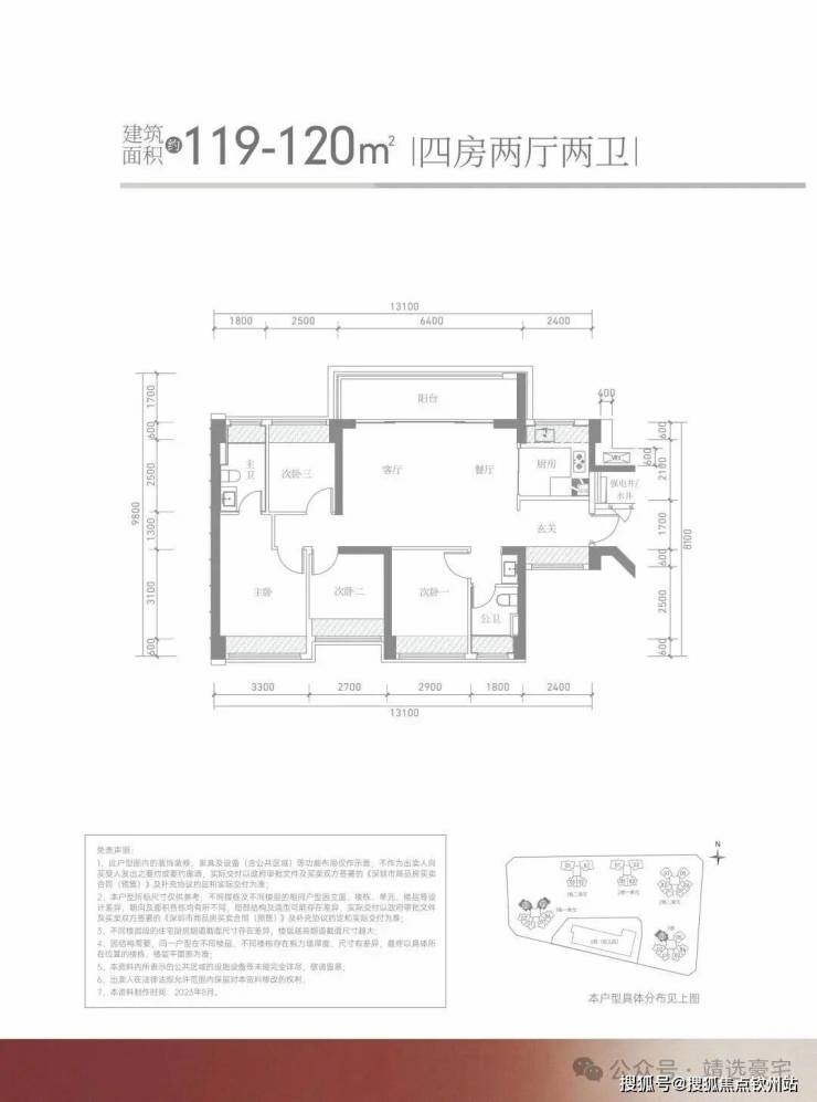
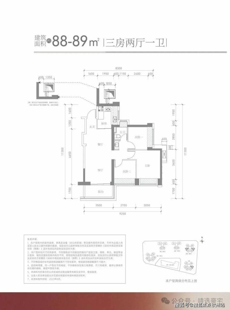
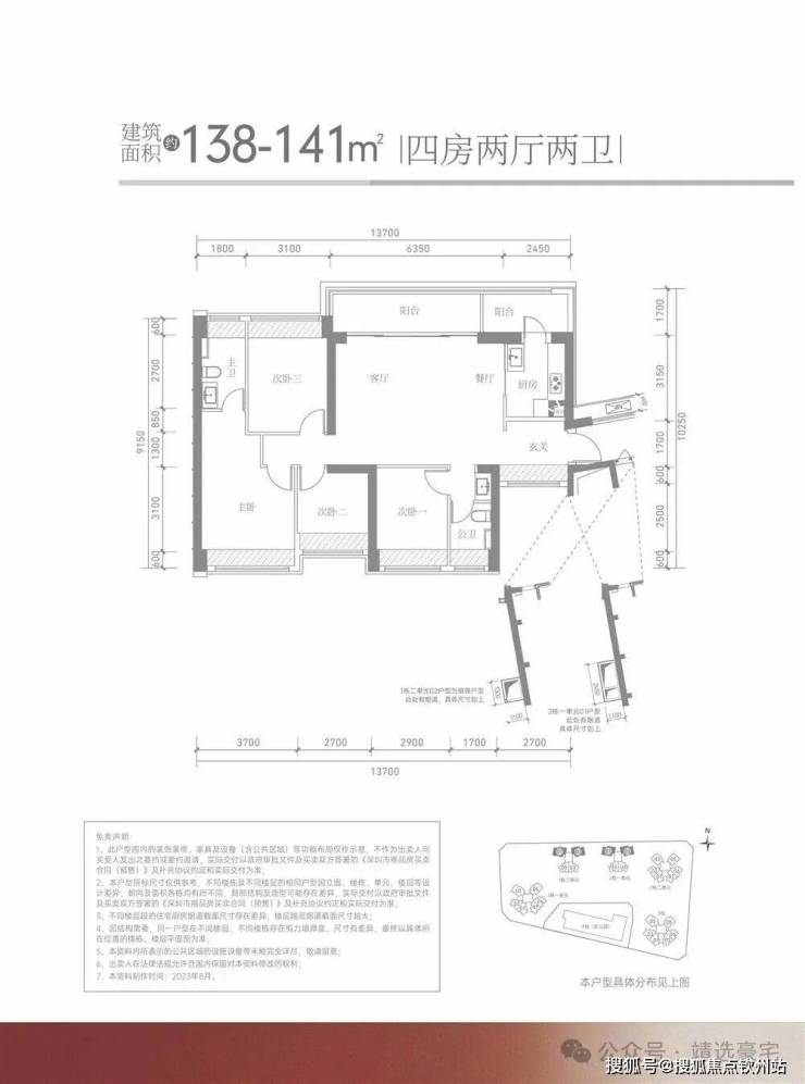
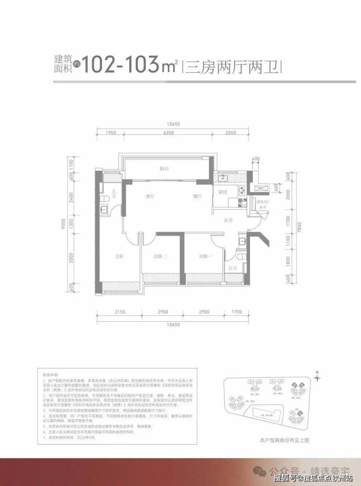
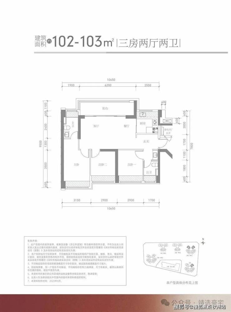
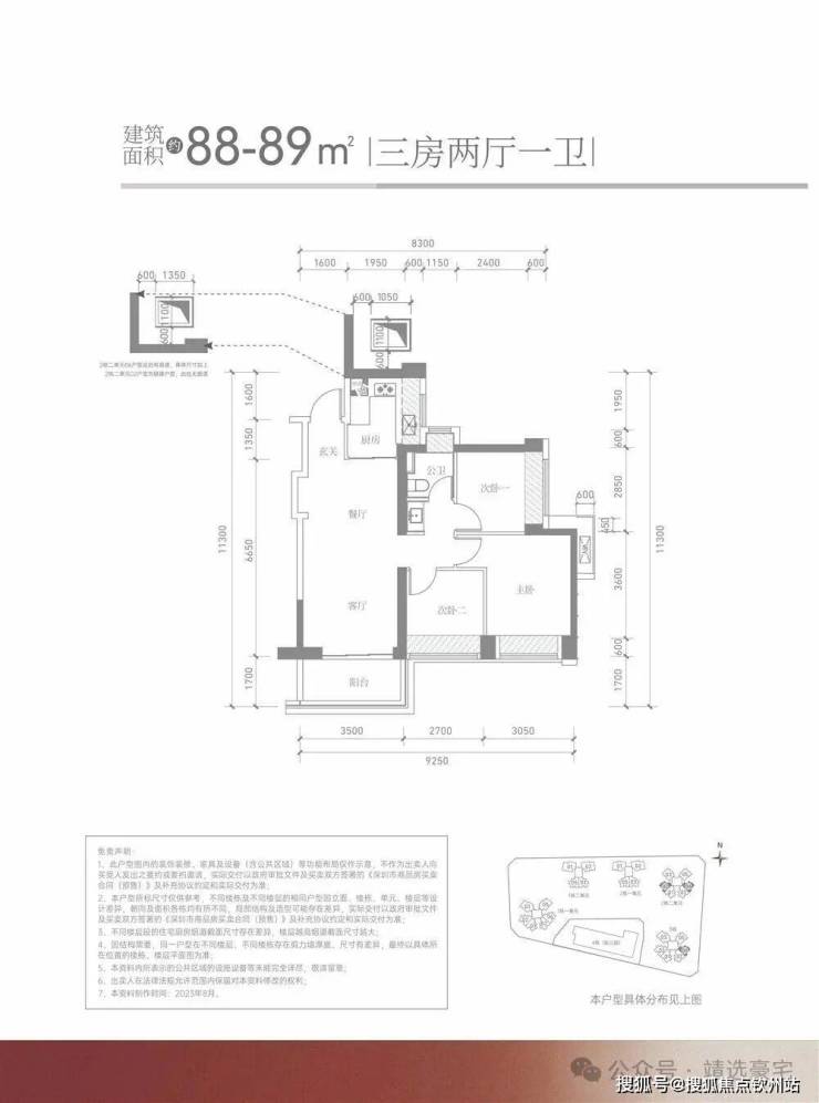
【产品户型】:建面约88㎡三房一卫、建面约99㎡三房两卫、建面约104㎡三房两卫、建面约120㎡四房两卫、建面约139㎡四房两卫
【交付标准】:全装修
【梯户比】:3T4/6户
【车位比】:1:1.14
【容积率】:6.0
【物业费】:4.3元/㎡/月
【产权年限】:70年
【批地时间】:2023年 4月
【交楼时间】:2025年
必看理由
0
1
超芯地段:绝对稀缺的中心资源
光明中心区作为光明城市“会客厅”,将打造成光明科学城国际化高品质优质公共服务配套区,深圳北部中心的“城市心脏”。金硕华府占据光明中心区C位,享中心发展红利。
0
2
超级稀缺:光明真中心区唯一在售近百万方大城
整个深圳近百万规模的项目屈指可数,金硕华府居标杆大城中央,为光明真中心区目前唯一的近百万方标杆大城,纵享“繁华”与“宁静”。
0
3
超强配套:深圳版“中央公园” 顶级市政首府级配套享受
金硕华府直面占地约208万㎡的科学公园,近享深圳国际美术馆、深圳科技馆新馆、科学城体育中心、光明文化艺术中心等市级文体配套;还坐拥狮山公园、约9.4万㎡的东周文化公园,约10万㎡的开明公园,约56万㎡的新城公园等丰富绿色生态资源,享深圳最稀缺的城市诗意栖居。
数据来源:
深圳光明:https://mp.weixin.qq.com/s/S_3Fjla7dm4aNFneBOJikg
https://mp.weixin.qq.com/s/5qGj7sul4mN5noRFr0g8eg
0
4
超速交通:1高铁三地铁三高速环绕
3地铁:邻6号线光明站/光明大街站、6号线支线 (在建中)、13号线 (在建中)
3横3纵:光辉大道、科学大道、光明大道、光明大街、光侨路、华裕路
3高速:龙大高速、南光高速、外环高速
1高铁:光明城站

0
5
超凡商业:创意街区+四大商mall 超30万方繁华汇聚
项目自带超3万㎡创意街区
约13万㎡蓝鲸世界、约4.5万㎡万达广场
约6.3万㎡星河coco city(在建)、约4.3万㎡绿地商业(在建)
0
6
超优教育:3所深小学校环绕 家门口享15年教育
优质幼儿园:配建3所幼儿园
优质小学:项目东侧规划一所小学(深圳小学光明学校狮山校区)、东周小学、光明小学、华师大附属光明星河小学、修远小学、深圳小学光明曙光学校等
优质初中:项目南侧规划一所初中(深圳小学光明学校初中校区)、光明中学、华夏中学等
九年一贯制:中山大学深圳附属学校、光明区荔园学校(在建)、深圳市教育科学研究院实验学校、深圳实验光明学校、中科院深理工附属实验高级中学、楼村第四学校(暂定名)等

数据来源:
光明政府在线:https://www.szgm.gov.cn/132100/135232/xwsq/xqhfjzxdh/content/post_10616458.html
0
7
超享社区:纯居大城 至臻生活
国际前沿审美追求,打造现代轻奢极简立面,于城市建筑之中尽显不凡;内部园林借鉴新加坡园林风格,打造出温情向阳的社交场、有趣有料的互动空间。
科学公园旁 封面天际地标
儿童游乐场:打造主题性的多维儿童游乐空间
全龄泳池:在家就能享受日光浴SPA
社区会客厅:在社区会客厅里与邻里朋友自由畅谈
高品质公区
高品质入户大堂、停车场入户大堂,归家仪式与空间交融
0
8
超能品牌:大城运营力强保障
满京华集团深耕城市25载,成长为涵括城市更新、置地开发、资产运营管理、文化运营、汽车五大业务版块的综合型投资集团
城市更新:力求将居住、产业、文化、消费等多元功能融合重组,重塑土地价值体系。
置地开发:深耕创意文化,构筑作品级项目,推动城市品质生活。
资产运营管理:服务品牌超300个,总服务资产价值超500亿,运营面积超100万㎡。
文化运营:多元生态,创建“文化+产业平台” ,聚合产业发展多元能量。
汽车:成功打造安骅汽车品牌,发展成为上汽通用华南地区最大经销商。
已开发项目:满京华·云著、满京华·喜悦里、云晓公馆、满纷天地、中央西谷大厦、SOHO艺峦、盈丰中心、科创工坊等。
0
9
户型图
公积金首套:2.6% 二套:3.075%深圳购房注意事项
在深圳购房需注意以下关键事项,涵盖政策、贷款、税费及交易流程等方面:
一、购房资格与政策
1. 限购政策
核心区域(福田、南山、宝安新安街道):深户家庭限购2套,非深户需连续缴纳1年社保或个税限购1套;非深户家庭有2个及以上未成年子女可额外购买1套。
非核心区域(罗湖、龙岗、坪山等):深户不限购,非深户连续缴纳1年社保或个税不限购,未缴社保或个税的非深户限购2套。
盐田、大鹏新区:全国居民均可自由购房,无需审核资格。
成年单身人士:按家庭标准执行限购政策。
2. 公司购房
核心区:公司需注册满1年、员工10人、纳税100万,不限套数。
非核心区:注册即可购房,无套数限制。
二、贷款政策
1. 商业贷款
利率统一为3.05%(5年期以上),首付比例:首套15%、二套20%。
贷款年限最长30年,多数银行可贷款到75岁,公积金贷款只能申请到70岁。
2. 公积金贷款
个人最高126万,家庭最高231万。
首套、二套首付均为20%,保障房首付15%。
贷款额度为公积金余额的16倍,有二孩及以上家庭购买第二套房享首套房政策。
三、税费与费用
1. 契税
首套或二套,140㎡以下1%,140㎡以上首套1.5%、二套2%。
家庭唯一住房且面积≤140㎡,契税为1%;面积>140㎡,契税为1.5%。
第三套及非住宅统一为3%。
2. 其他费用
产权登记费80元/套,抵押登记费80元/套。
二手房增值税、个税等按房屋年限及性质计算,满2年普通住宅免征增值税。
四、交易流程与注意事项
1. 签约前
核查开发商“五证”(国有土地使用证、建设用地规划许可证等),确保商品房销售许可证有效。
二手房需确认房屋产权清晰,无抵押、查封,核实房东户口迁出时间及学位占用情况。
2. 贷款与资金
首付款须为自有资金,禁止使用经营贷或借款。
提前自查征信与银行流水,流水需覆盖房贷月供2倍以上。
3. 收房与验房
核查户口是否迁出,清点钥匙、家电等物品,结清物业费、水电费。
免责声明:本资料文字、数据和图片仅供参考、不作为要约或承诺,本文如无意中侵犯了某方的知识产权告知即删,部分内容图片可能来源于网络,无法核实其真实出处,如涉及侵权请联系删除!
声明:本文由入驻焦点开放平台的作者撰写,除焦点官方账号外,观点仅代表作者本人,不代表焦点立场。
