国庆七天乐翰熙典居(售楼处)首页网站电话-翰熙典居营销中心电话-翰熙典居欢迎您-楼盘详情-最新价格-户型图-容积率@售楼中心
扫描到手机,新闻随时看
扫一扫,用手机看文章
更加方便分享给朋友
翰熙典居位于粤港澳大湾区科创核心——粤海街道,紧邻深圳大学,背靠腾讯总部,逾50万㎡地标级奢宅综合体,代言湾区时代奢居典范,焕新塔尖生活向往,引领人居品质进阶。
地铁9号线、15号线(在建中)交汇深大南站;9号线2站高新园、3站深超总、4站大前海区域;周边“四横三纵”主干道、双城际铁路及海空交通网络环绕,纵横驰骋,畅连全城。
人文中心丨百年人文印记 桂脉传承不息
桂庙新村,传承百年城市人文底蕴,是粤海科创产业的时代摇篮、深大学子的后花园,也是深圳奇迹的源点。
从桂庙新村到翰熙典居,一脉城市向上的繁心,为於此奋进的各界时代精英,谨献伫立于中心之上的人文奢宅,为粤海匠造一座屹立于时代之巅的地标之作。
优教护航丨全龄教育环伺 赋写下一代美好未来
幼儿园:项目自带1所12班制幼儿园
小学:西侧规划有1所30班小学(地块红线外)、南二外学府一小
中学:南二外学府中学、深圳南山中加学校
大学:深圳大学,全国十大最美校园
(周边教育设施如有变动,以南山区教育局最新颁布政策为准)
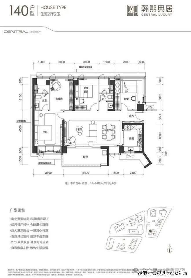
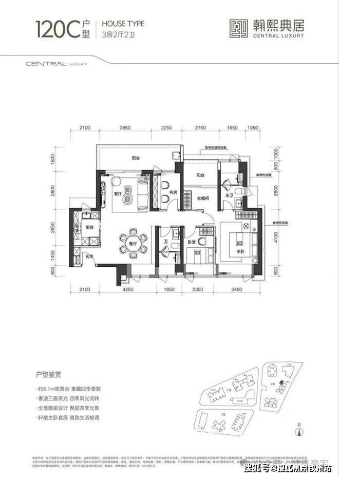
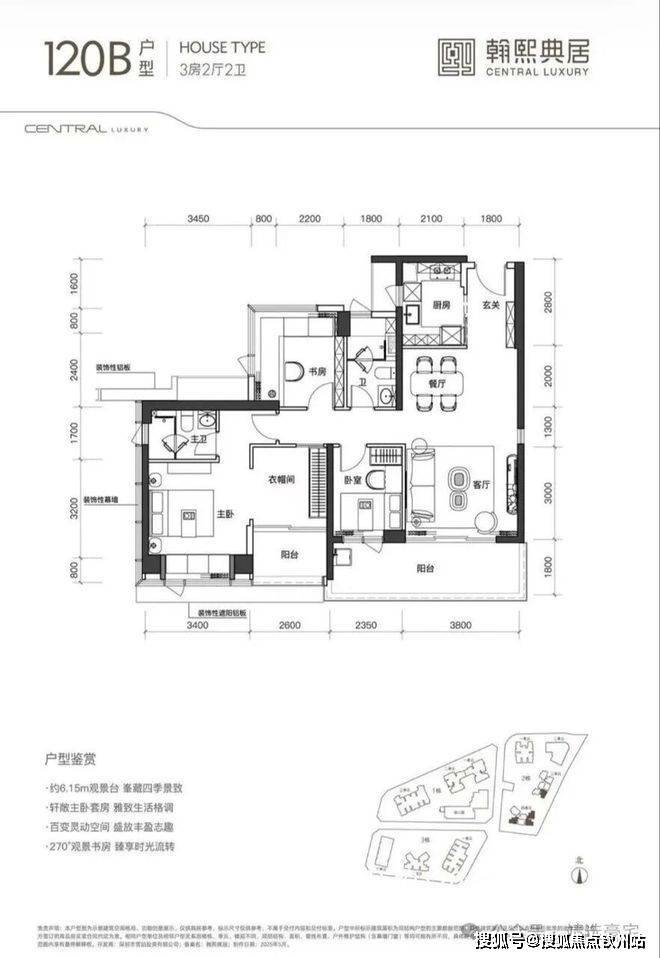
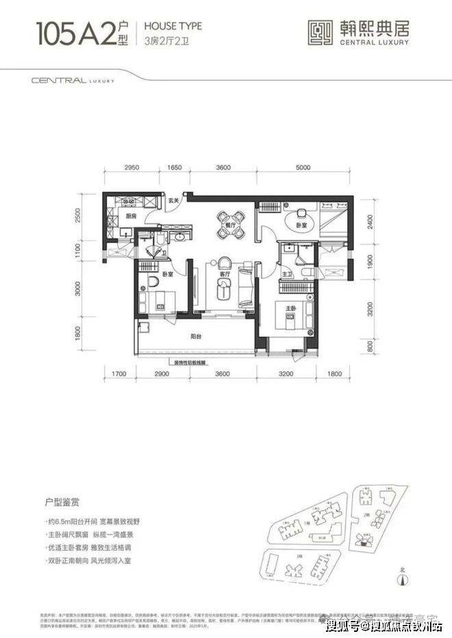
首推主力户型:新规后建面约105-140㎡奢雅空间
2025年深圳楼市预测:政策松绑与分化加剧下的购房指南
一、政策松绑:史上最宽松时代来临
1. 限购放开:继非核心区取消限购后,核心区(福田、南山等)或允许外地户籍购房者购买1套,深圳家庭可增购1套,甚至大户型限购可能率先解除。
2. 首付与利率创新低:首套房首付比例或降至1成,二套1.5成;房贷利率有望从3字头降至2字头,公积金贷款额度同步提升。
3. 税费减免:首套房税费或全面取消,二套契税低至1%-2%,进一步降低交易成本。
二、市场分化:核心区反弹,非核心区承压
1. 核心区领涨,豪宅成“硬通货”
南山、福田、宝中等核心区因稀缺性和高净值人群聚集,房价止跌回升。例如,南山科技园、福田百花片区等教育资源优质的区域,部分楼盘涨幅已达10%-20%。豪宅市场更是火爆,龙岗深铁阅云境等项目开盘即“日光”,高净值人群通过购置优质资产对冲通胀压力。
2. 非核心区以价换量
龙岗、坪山等区域因供应过剩,房价或继续下跌10%-15%。购房者更倾向选择地铁沿线新房(如14/16号线),避开工业区密集板块。
3. 土拍市场回暖
随着市场信心恢复,房企拿地积极性回升。2025年首宗龙岗宅地溢价70.4%成交,预示核心地块将成争夺焦点。
三、供需新格局:保障房分流与刚需机会
1. 新房供应激增
一季度24个新盘入市,供应超8700套,核心区新盘因限价放松或突破历史高位。
2. 保障房冲击刚需市场
共有产权房和人才房以周边商品房6-8折的价格分流需求。例如,宝安中心区人才房均价5.05万/㎡,性价比优势显著。
3. 购房逻辑转变
自住需求主导下,“品质+地段”成核心指标。新房选择优先国企项目(防暴雷),二手房关注“满五唯一”房源以降低税费。
四、风险与机遇:理性入市的三大原则
1. 警惕流动性风险:非核心区房产持有周期建议5年以上,避免短期套现压力。
2. 关注政策时效性:房产税试点可能落地,持有多套房需预留资金应对。
3. 把握窗口期:2024年底至2025年初为政策密集期,核心区笋盘去化加速,刚需可择机“低价上车”。
声明:本文由入驻焦点开放平台的作者撰写,除焦点官方账号外,观点仅代表作者本人,不代表焦点立场。
