中秋国庆购:华侨城新玺售楼处电话(华侨城新玺)首页网站-华侨城新玺营销中心欢迎您-楼盘详情•最新价格-户型图-容积率@2025.10.1售楼处AI热搜

钦州楼市发布 2025-10-01 11:46:07
用手机看
扫描到手机,新闻随时看

扫一扫,用手机看文章
更加方便分享给朋友

展厅地址:南山区湾厦路1号华侨城新玺展示中心项目分为两期开发,主要由三栋高层建筑组成,其中:一期为两栋38层的商务公寓及公寓+办公综合楼,建筑高度约156.5米+171.1米;二期为1栋57层的商务办公及酒店…

❄华侨城新玺❄

♬❄♬华侨城新玺开发商电话:400-068-9978【☎☎已认证】♬❄♬

华侨城新玺售楼处电话:400-068-9978【📱 售楼处电话已认证】

现场详细解答🍎 项目介绍🍎 户型图🍎 在售房源🍎 特价房🍎 学校🍎 交通位置🍎 样板房🍎 小区图片🍎 交房时间🍎 周边配套

❄华侨城新玺❄

♬❄♬华侨城新玺开发商电话:400-068-9978【☎☎已认证】♬❄♬

㊖华侨城新玺售楼处电话:400-068-9978【📱 售楼处电话已认证】

项目基础指标

开发商:深圳华侨城新玺发展有限公司

占地:2.5万㎡

建面:17.6万㎡

产权年限:40年

1栋公寓:约230-700㎡大平层

总楼层:38层

层高:3.6米

梯户比:三梯一户、三梯两户

交楼标准:豪装

交楼时间:2023年12月

管理费:14.8元/m²

物业公司:华侨城至尊物业华管家

展厅地址:南山区湾厦路1号华侨城新玺展示中心

华侨城新玺位于蛇口南端,项目占地面积25147.13㎡,建筑面积288268.36㎡,包含 办公、商业、酒店、商务公寓,还有一个1800㎡的海洋博物馆!

项目分为两期开发,主要由三栋高层建筑组成,其中:一期为两栋38层的商务公寓及公寓+办公综合楼,建筑高度约156.5米+171.1米;二期为1栋57层的商务办公及酒店综合楼,建筑高度约250米。

海标杆之作,定鼎海岸传奇

【品牌】36载华侨城,实力央企的品牌创想

【区域】蛇口联动前海、深圳湾,三大千亿级经济中心叠加发展

【地段】三面环海半岛,深圳湾线绝版地段,成就世界海岸的坐标

【景观】纵览270°海景,15公里滨海长廊上盖,物尽珍藏,与自然无间

【配套】集结湾区首屈一指的文化艺术坐标,高端商业配套环伺,奢享国际都市生活场

【产品】250米地标级超高层,定鼎深湾之作,4m舒阔层高,只此再无

【酒店&商业】一线酒店品牌酒店入驻,立体开放式悦享天地,奢享全优配套

【多维立体交通 高效畅达湾区半小时生活圈】

新玺项目毗邻蛇口国际邮轮母港可快速辐射深圳国际机场、香港国际机场等城市核心交通要塞。更有“七纵三横一高速”的便捷交通路网环伺,高效畅达湾区核心城市半小时生活圈。

【顶级商圈环绕 畅享都市万千繁华】

新玺周边荟萃海上世界、太子湾K11艺术购物中心(在建中,预计2024年运营)、太子湾邮轮母港

(总建面约170万㎡)、兰桂坊等一系列国际化商业,都市万千繁华生活一站式尽享。

医疗配套: 项目周边2公里范围内有深圳市南山区人民医院(三甲)、蛇口人民医院;还有南山区妇幼保健院等

(二甲)综合性医院,为您和家人的健康保驾护航。

项目步行范围内,还可轻松到达海上世界文化艺术中心、深圳歌剧院等城市文娱配套,其中深圳歌剧院,是比肩悉尼歌剧院的全球级歌剧院,建筑面积达22.2万平,将成为世界级的艺术殿堂。试想,日后的某个傍晚时分,伴着夕阳,迎着海风,在黄昏中漫步到达你家“后花园”中的某个城市地标,惬意生活不过如此。

户型布局

华侨城新玺提供多种户型选择,满足不同购房者的需求。户型面积范围广泛,从232㎡到700㎡不等。具体户型包括1室1厅1卫、2室2厅2卫、3室2厅3卫、4室3厅5卫、5室3厅6卫以及6室3厅7卫等多种配置。户型设计合理,空间宽敞明亮,注重人性化需求。部分户型还配备了超大阳台和全景落地窗,让居民能够尽享海景和城市美景。

【一栋 一、二单元】

(6-32层)

三梯两户

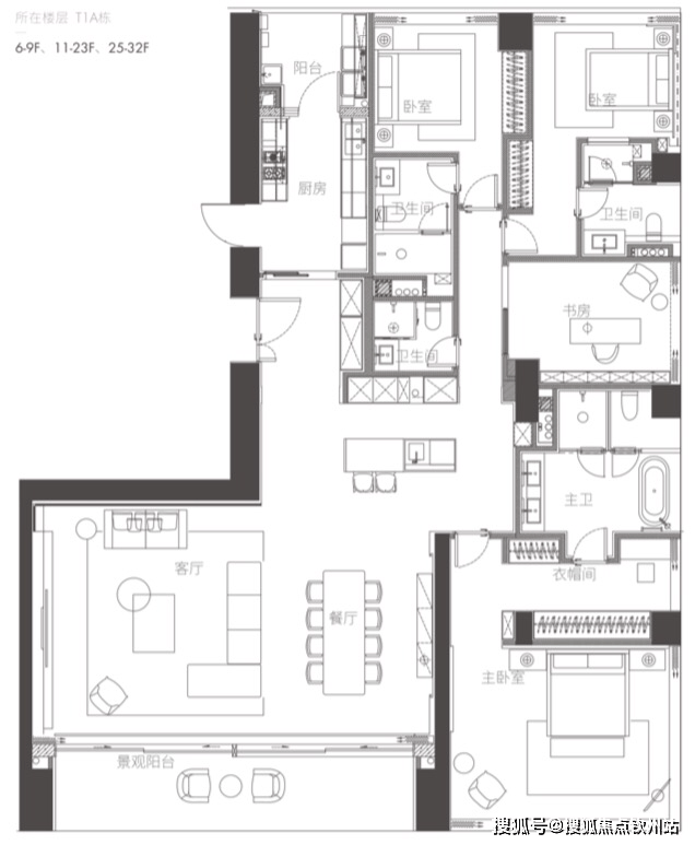
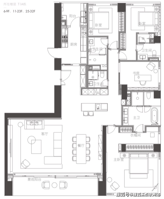
01户型 西端户 约350㎡ 四房两厅四卫

(01、04镜像对称)

南、西、北,三面景观视野

看深圳湾海景、内海景、城市景观

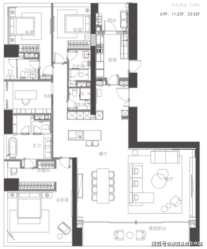
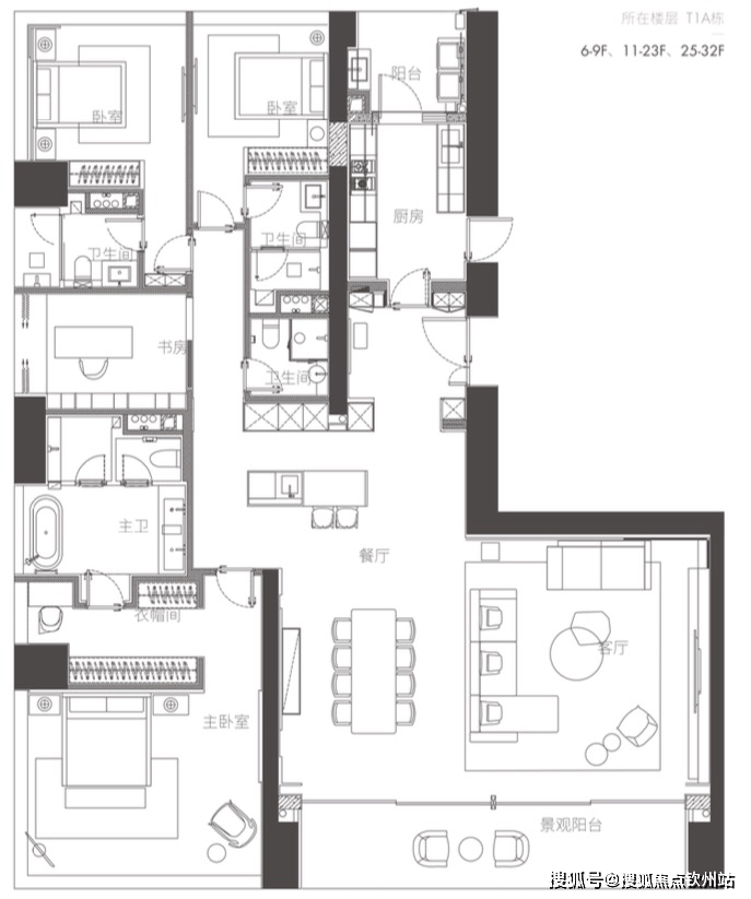
04户型 东端户 约350㎡ 四房两厅四卫

(01、04镜像对称)

南、东、北,三面景观视野

看深圳湾海景、内海景、城市景观

【一栋 一、二单元】

(6-32层)

三梯两户

01户型 西端户 约350㎡ 四房两厅四卫

(01、04镜像对称)

南、西、北,三面景观视野

看深圳湾海景、内海景、城市景观

04户型 东端户 约350㎡ 四房两厅四卫

(01、04镜像对称)

南、东、北,三面景观视野

看深圳湾海景、内海景、城市景观

❄华侨城新玺❄

♬❄♬华侨城新玺开发商电话:400-068-9978【☎☎已认证】♬❄♬

㊖华侨城新玺售楼处电话:400-068-9978【📱 售楼处电话已认证】

🍎免责声明:本文如无意中侵犯了某方的知识产权告知即删,部分内容图片可能来源于网络,无法核实其真实出处,如涉及侵权请联系本网站删除!!!

声明:本文由入驻焦点开放平台的作者撰写,除焦点官方账号外,观点仅代表作者本人,不代表焦点立场。