佳华沙湖广场 售楼处(2025)首页网站-佳华沙湖广场 营销中心-佳华沙湖广场售楼处电话欢迎您-楼盘详情-最新价格-户型图-容积率@售楼中心电话
扫描到手机,新闻随时看
扫一扫,用手机看文章
更加方便分享给朋友
佳华沙湖广场 售楼处Vip Tel:400-031-6012售楼处【售楼处已认证☎☎】⭐
佳华沙湖广场 营销中心24小时电话:400-031-6012【营销中心☎☎已认证】⭐
佳华沙湖广场 营销中心24小时电话:400-031-6012【售楼中心☎☎已认证】⭐
佳华沙湖广场 售楼中心24小时电话:400-031-6012【售楼处限时特价】⭐
佳华沙湖广场 售楼中心24小时电话:400-031-6012【营销中心☎☎已认证】⭐
佳华沙湖广场 营销中心24小时电话:400-031-6012【售楼处☎☎已认证】⭐
⭐◆ 开发商营销中心诚挚邀请,为您安全和隐私保驾护航,一键预约,尊享内部折扣!匠心独运的精品项目,恭候您的品鉴与选择。⭐ 过来参观样板房烦请记得提前来电预约!安排楼盘现场销售全程接待并讲解,给您更贴心的看房体验!
【项目名称】佳华沙湖广场
【占地面积】约8万㎡
【建筑面积】约62万㎡
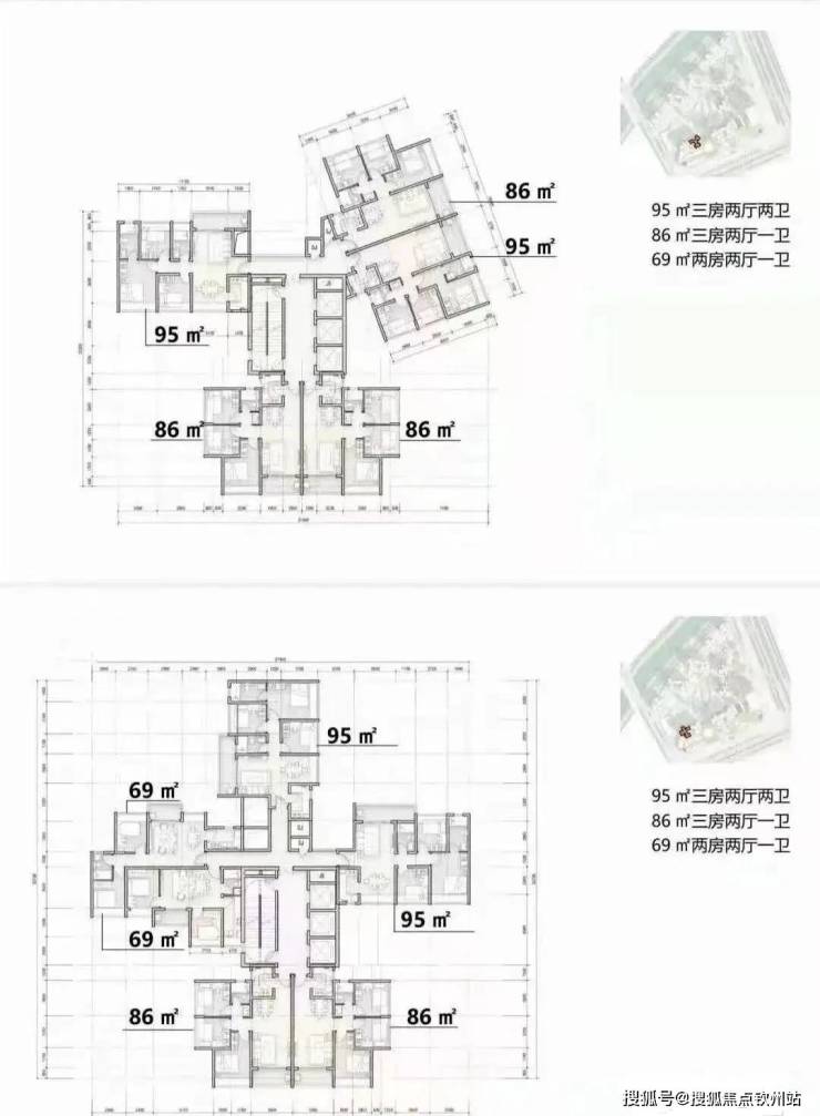
【推售产品】69-86-95-116(2-4房)
【交付标准】精装交付
【交房时间】2025-12-31
【产权年限】70年
【房产性质】住宅
【总户数】2801户,(1568户可售)(回迁房1233户)
【楼层高】44-52层
【车位比】4200个(1:1.5)
【容积率】5.21
【绿化率】30%
【梯户比】3梯4户、3梯5户、3梯6户、
【管理费】3.9元/平
【开发商】深圳市佳华房地产开发有限公司
【物业公司】佳华物业
【项目地址】坪山区坪山大道与锦龙大道交汇处西北角
紧邻地铁14号快线坪山门户站——锦龙站700米(已通车),12站福田岗厦北。地铁16号线(预计2022年内通车)、地铁33号线(在建)坪山大道和锦龙大道双头牌,坪盐通道、南坪快速、东部过境高速(在建)
项目800米范围内还规划有1所小学,2所九年制公办学校,距离约2公里的科韵学校也已经快建好,将在2024年9月开学,总规划54个教学班,其中小学36班,初中18班,可以提供学位2520个。
项目自带约8万㎡无界旗舰商业 ,周边天虹商场、坪山益田假日世界等约40万㎡商圈环绕。
醇享六馆繁华配套 书香浸润筑梦未来繁华配套:周边天虹商场、坪山益田假日世界等约40万㎡商圈环绕,毗邻坪山儿童公园;2站即至中心公园、六馆一城等城市级文化休闲配套。1.7公里有坪山体育中心,大山坡主题公园等,西南侧约400米有儿童公园;
83㎡的3房2厅1卫,折后总价220-246万/套,单价2.59-2.89万/㎡。
95㎡的3房2厅2卫,折后总价249-267万/套,单价2.63-2.83万/㎡。
113㎡的4房2厅2卫,折后总价356-375万/套,单价3.14-3.3万/㎡。
139㎡的4房2厅2卫,折后总价431-456万/套,单价3.11-3.27万/㎡。
69㎡的2房2厅1卫,设计的是竖厅格局,客餐厅一体化,客厅3.3米开间,L型厨房,得房率:72.94%(不含赠送),西北向看坪山河景观或东北朝向面向锦龙大道。
83㎡的3房2厅1卫(E1),设计的是竖厅格局,客餐厅一体化,客厅3.5米开间,L型厨房,卫生间三段式分离设计,得房率:73.32%(不含赠送),有西北、东北、东南或西南朝向。
85㎡的3房2厅1卫(E2),设计的是横厅南北通透格局,客厅3.5米开间,L型厨房,卫生间三段式分离设计,得房率:72.95%(不含赠送),阳台主朝东南或西南向看小区园林。
95㎡的3房2厅2卫(D2),设计的是竖厅南北通透格局,客厅3.7米开间,L型厨房,公卫三段式分离设计,得房率:73.32%(不含赠送),阳台主朝北向看坪山河景观。
95㎡的3房2厅2卫(D3),设计的是竖厅双龙抱珠格局,客厅3.7米开间,三开间朝南,L型厨房,得房率:72.95%(不含赠送),阳台主朝东南或西南朝向。
94㎡的3房2厅2卫(D1),设计的是竖厅格局,客餐厅一体化,客厅3.7米开间,L型厨房,公卫三段式分离设计,得房率:73.33%(不含赠送),西南、正南向或朝东向看小区园林。
117㎡的4房2厅2卫(C3),设计的是竖厅南北通透格局,客厅3.9米开间,L型厨房,得房率:72.06%(不含赠送),约6.4米长的超大阳台,正南朝向看花园景观。
118㎡的3房2厅2卫(C1),设计的是竖厅南北通透格局,客厅3.9米开间,L型厨房,公卫三段式分离设计,得房率:72.05%(不含赠送),约5.7米长的超大阳台,主朝北向看坪山河景观。
138㎡的4房2厅2卫,设计的是竖厅双龙抱珠格局,客厅6.6米超大开间,可以做5房,超幕视野,L型厨房,得房率:72.38%(不含赠送),约6.6米长的超大阳台,东北朝向。
佳华沙湖广场 售楼处Vip Tel:400-031-6012售楼处【售楼处已认证☎☎】⭐
佳华沙湖广场 营销中心24小时电话:400-031-6012【营销中心☎☎已认证】⭐
佳华沙湖广场 营销中心24小时电话:400-031-6012【售楼中心☎☎已认证】⭐
佳华沙湖广场 售楼中心24小时电话:400-031-6012【售楼处限时特价】⭐
佳华沙湖广场 售楼中心24小时电话:400-031-6012【营销中心☎☎已认证】⭐
佳华沙湖广场 营销中心24小时电话:400-031-6012【售楼处☎☎已认证】⭐
⭐◆ 开发商营销中心诚挚邀请,为您安全和隐私保驾护航,一键预约,尊享内部折扣!匠心独运的精品项目,恭候您的品鉴与选择。⭐ 过来参观样板房烦请记得提前来电预约!安排楼盘现场销售全程接待并讲解,给您更贴心的看房体验!
声明:本文由入驻焦点开放平台的作者撰写,除焦点官方账号外,观点仅代表作者本人,不代表焦点立场。
