翰熙典居售楼处电话-看房预约电话-2025(深圳粤海街道)翰熙典居-楼盘住宅详情
扫描到手机,新闻随时看
扫一扫,用手机看文章
更加方便分享给朋友
翰熙典居售楼处电话:400 033 9667,开发商线上营销中心认证电话
温馨提示⚠️:楼盘暂不接受临时到访,看房请提前预约!
项目最新介绍:房价、折扣、户型图、特价房源、得房率、优惠活动、开盘时间、交房时间、周边配套、最新详情等咨询。
翰熙典居售楼处电话:400 033 9667
翰熙典居售楼中心24小时电话:400 033 9667【营销中心】
温馨提示:过来看房请记得提前来电预约,尊享售楼处1v1销售专业讲解,感谢您的来电!
项目是深圳南山粤海街道的一个综合体项目,由深圳市贯凯投资有限公司(隶属阳光华艺集团)开发,位于南山区粤海街道白石路与学府路交叉口西北侧,东临白石路,西近南海大道,北靠深圳大学,南邻腾讯滨海大厦
翰熙典居,是深圳南山粤海街道的地标级综合体,配套设施完善,涵盖交通、商业、教育等多个方面,具体如下:
交通配套:项目楼下即为地铁 9 号线深大南站,步行约 300 米,在建的 15 号线预计 2028 年通车后将在此形成换乘枢纽,可串联前海、科技园等产业高地。自驾方面,滨海大道、南海大道、桂庙路等主干道环绕,20 分钟可达深圳湾超级总部、前海自贸区等。周边 1 公里范围内有 33 个公交站点,如软件产业基地站、桂庙站等,公交线路丰富,可满足不同通勤需求。
商业配套:自带约 5.7 万平方米潮流商业街区,规划引入餐饮、零售、生活服务等多元业态,还有约 5000㎡底商,日常采买下楼即可完成。1 公里范围内分布有茂业百货、天利名城购物中心等中型商业体。800 米可达海岸城商圈,涵盖海岸城购物中心、保利文化广场等。2 公里内有深圳湾万象城、万象天地等高端商业体,可满足高端消费需求。
医疗配套:距离南山医院(三甲)约 1.2 公里,距离深圳大学总医院(三甲)约 828 米,周边医疗资源充足,能为业主的健康提供有力保障,日常看病就医十分便捷。
休闲配套:社区内规划有 2 万㎡园林。周边公园众多,800 米处有荔香公园,500 米处有文心公园,2.5 公里处是深圳湾公园。此外,南山书城、南山图书馆、南山博物馆等市级文化设施环伺,还有在建中的深圳湾文化广场、粤海文体中心,可提供阅读、展览、讲座等文化服务,休闲娱乐选择丰富。
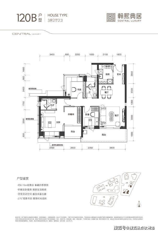
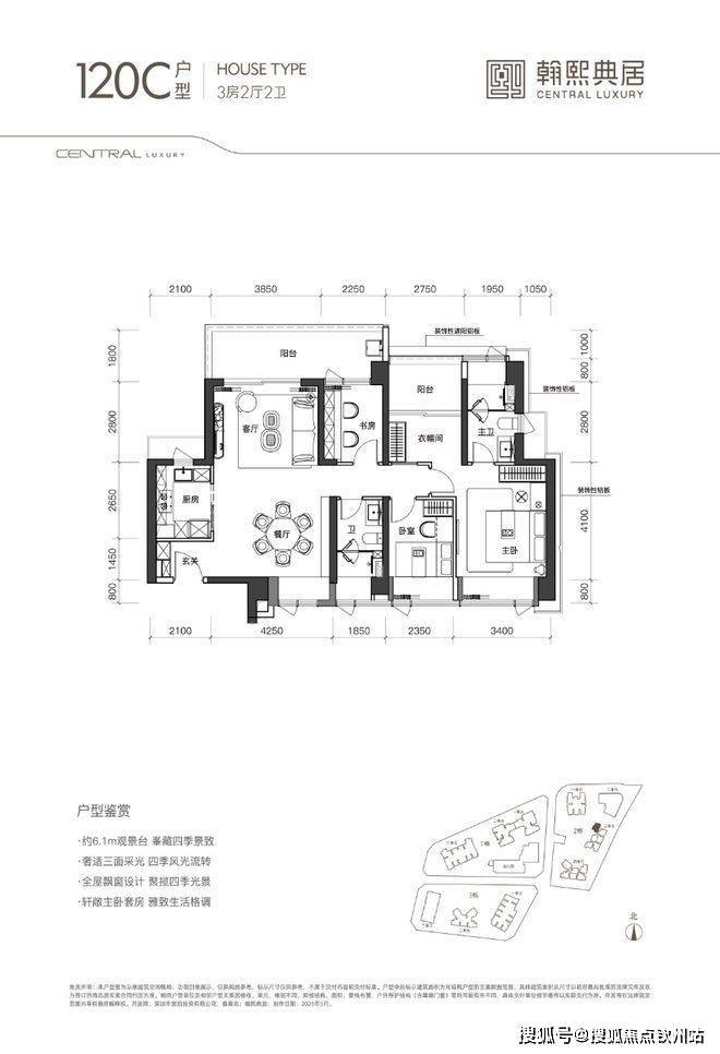
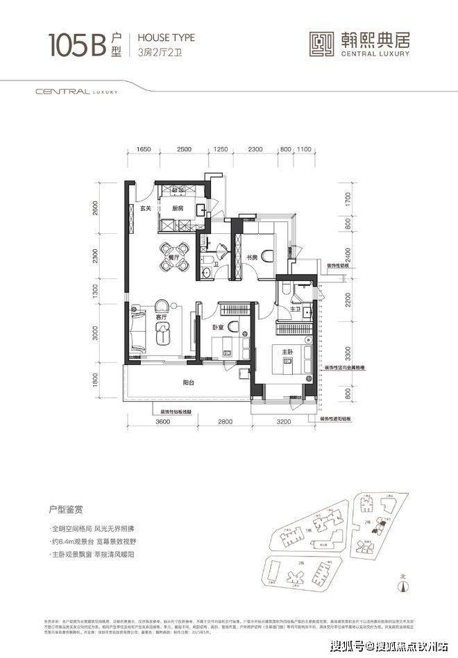
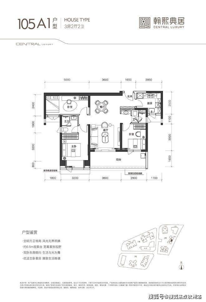
翰熙典居户型图:
户型信息:首推 02 地块的 2 栋 3/4 单元,共 328 套房源,面积有 104-105-117㎡的 3 房 2 卫,120-135㎡的 4 房 2 卫户型。户型设计多样,如 105㎡户型为 3 房设计,有最长 6.5 米景观阳台;120㎡户型为 3 房双阳台、竖厅布局;140㎡户型实现了 “私享独门独户前厅”,南北通透、大横厅布局、三面采光。
建面约 105㎡的 3 房 2 卫户型:有 A、B 两种布局。A 布局为双龙抱珠格局,入户无走廊浪费,客厅居中,两侧分布卧室,私密性强。6.5 米景观阳台连接客厅与次卧,拓展活动空间且采光好。A1 户型为东南朝向,高层可远眺深圳湾海景;A2 户型为正南朝向,可俯瞰小区园林。B 布局为竖厅设计,客餐厅一体化纵向排布,连接南向阳台,通风采光俱佳,厨房为 U 型设计,操作动线流畅。该户型朝向为正南或东南朝向,阳台直面小区花园。
建面约 120㎡的 3+1 房 2 卫户型:有 B、C 两种布局。B 布局主卧套房超 30㎡,空间尺度舒适。C 布局通过阳台和飘窗赠送约 12㎡,实际使用率达 90%。四卧室均带飘窗,主卧 16.65㎡含独立衣帽间,次卧 9.9㎡可改造为书房。户型采用横厅设计,客厅与餐厅相连,面宽约 5.4 米,整体活动空间开阔,南向阳台与客厅同宽,长度约 5.4 米,进深 1.8 米,可打造多种功能区。“+1” 空间位于户型北侧,约 7㎡,可作为书房、瑜伽室等,灵活性强。
建面约 140㎡的 4 房 2 卫户型:采用南北通透的横厅设计,横厅面积达 32㎡,客餐厅 6.6 米开间,四开间朝南,采光和通风极佳。主卧 17.35㎡带 270° 环幕飘窗,视野开阔,次卧 9.8㎡可改儿童房。北向双次卧、双卫生间、拓展空间共五面宽一字排开,可俯瞰社区内园林,静谧舒适。
开发商售楼处热线:400 033 9667 【营销中心】
本文内容为广告推广,涉及房价或现有房源可能出现变更,请致电详询并以售楼部为准
免责声明:本文如无意中侵犯了某方的知识产权告知即删,部分内容图片可能来源于网络,无法核实其真实出处,如涉及侵权请联系本网站删除!!!
声明:本文由入驻焦点开放平台的作者撰写,除焦点官方账号外,观点仅代表作者本人,不代表焦点立场。
