(合泰嘉悦公馆首页)营销中心——合泰嘉悦公馆售楼处电话_售楼中心电话|楼盘详情/户型/价格2025.10.8
扫描到手机,新闻随时看
扫一扫,用手机看文章
更加方便分享给朋友
…合泰嘉悦公馆……合泰嘉悦公馆…

🏆地铁学府 · 嘉悦公馆 · 🏆
🔥山海之上 · 双地铁口学府住区🔥
🏡72-99㎡3-4房 山海悦居

项目基本信息⭐
开 发 商:深圳市深供金广嘉房地产发展有限公司
总占地面积:约0.62万㎡
总建筑面积:约4.90万㎡
产 品 类 型:住宅
可 售 套 数:174套
产 权 年 限:住宅70年(2024年-2094年)

——世界山海,美好嘉悦 10大必买理由——
1⃣ 高实用率 | 盐田新规住宅产品
2⃣ 轻松上车 | 72㎡低总价关内三房
3⃣ 双地铁口 | 1站罗湖,8站福田CBD
4⃣ 口岸资源 | 双口岸,深港快捷生活
5⃣ 全能配套 | 约3公里范围醇熟生活圈
6⃣ 学校环伺 | 自带幼儿园(建设中),书香环绕
7⃣ 山海景观 | 坐拥城市绿肺,享山海景观
8⃣ 匠心品质 | 纯玻璃幕墙公建化住宅
9⃣ 品牌实力 | 合泰集团专注打造豪宅品质标杆
🔟 臻装美宅 | 以心筑家,精琢每一寸生活温度
【比邻区府 位居沙头角核芯腹地】
择址沙头角中心片区,比邻区府,享市政与生活配套,尽享城市核心的便捷与繁华。是城市繁华的汇聚点,也是宜居生活的理想之地。
【双地铁口比邻主干道,拥享双口岸】
直线距离8号线沙头角站/海山站地铁口均约700m,1站罗湖,8站福田CBD。拥享沙头角&莲塘双口岸,快速抵达香港,轻松实现双城生活。
深盐路封面标杆,直连深南大道、滨河大道、北环大道,快速通达福田、南山。
【丰富商业 一站式满足不同生活需求】
步行约3公里范围内,尽享约35万m²壹海城/ONE MALL购物中心、7万m²精茂城、3万m²广富百货、海岸商业街、中英街等醇熟商业配套。

【护航孩子成长 12年全龄教育资源环伺】
项目自带公立幼儿园(建设中),周边林立深圳高级中学盐田学校、田东中学、林园小学等优质学府。
(说明:本项目的学区划分和学位申请以教育局当年公布的招生政策为准)
【山海相拥 自然与繁华共生的理想栖居】
北倚翠绿梧桐山,负氧离子含量显著,空气清新宜人。南眺辽阔大鹏湾,坐拥19.5公里黄金海岸线。69公里半山公园带串联多个生态公园,更有东和公园、盐田中央公园等多公园环伺,自然生态条件得天独厚,宜居程度在深圳各区中表现突出 。

——百万旧改赋能沙头角,铸就璀璨未来——
【盐田百万旧改 田心工业区】
田心旧改作为沙头角深港国际旅游消费合作区的核心项目,以百万级体量重塑城市格局,未来伴随着田心工业区的更新改造进行稳步推进,将打造多功能、现代化、高品质的万象城叠加海港城2.0版综合体。

信息来源:《盐田区产业发展第十四个五年规划》
——凝萃时代美学,缔造高品生活——
【极简美学 镌刻城市经典】
外立面采用真石漆、铝板幕墙及中空LOW-E玻璃,以现代极简美学打造历久弥新的城市地标。
中空LOW-E玻璃公建化立面:有效隔音、阻隔紫外线,营造舒适室内环境;
铝板线条:赋予建筑挺拔质感,外立面精致大气。
【高品公区 悦享高配社区生活】
项目以人性化高定标准,尽心打磨公区及居所,融合东境西韵设计理念,集奢华、现代美学的元素,注重奢华感和仪式感,采用超现代立面风格和艺术弧线角设计打造酒店化品质入户大堂。
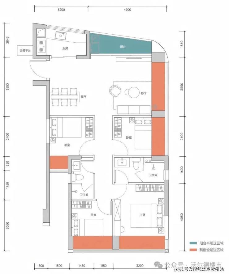
【盐田新规住宅产品,72㎡即可做三房】
高规格通透户型产品,建面约72-99㎡3-4房,精心打造约2.4m进深阔景阳台,拓展空间更多可能性,为居者提供充足的休闲与活动区域。
户型鉴赏:
声明:本文由入驻焦点开放平台的作者撰写,除焦点官方账号外,观点仅代表作者本人,不代表焦点立场。
