最新热搜:玖玖颂阁售楼处电话→玖玖颂阁百度Ai热搜>玖玖颂阁营销中心24小时电话>2025最新房价>楼盘百科详情>售楼处最新发布
扫描到手机,新闻随时看
扫一扫,用手机看文章
更加方便分享给朋友

【玖玖颂阁】推出5套89平3房2卫,B座板楼精装现房,1周拿红本!一口价单位,7天准时签约,
B503、C502,570 万
B1103、B1404、C1401,580万
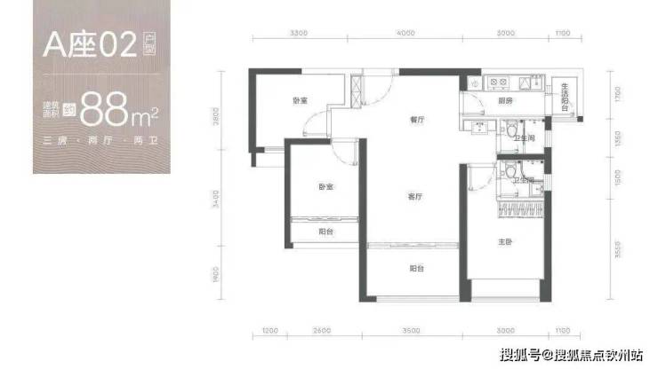
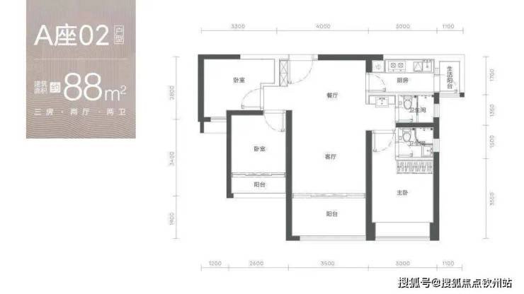
570万起,买89平3房2卫
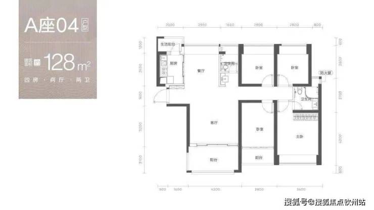
872万起,买128平4房2卫

开发商:深圳市俊弘星实业有限公司
项目位置:宝安区新安街道新安四路与建安一路交汇处
总占地:约1.4万㎡
总建面:约10.41万㎡
可售套数 :379
推售面积段:83-90㎡3房(745万-858万);128-133㎡4房(1160万- 1245万)
梯户比:A-C座2梯4户,D座2梯5户
容积率:5.04
车位数:714
物业公司:中熙物业
物业费:住宅6.00元/平方米·月
产权年限:70年 (2018年-2088年)
交楼标准:精装交付
交通配套:北环大道、G107国道、宝安大道环绕,自驾出行便捷,可达福田、南山、宝安中心区。毗邻双地铁,距今年将开通的12号线(上川站)500米,距规划中15号线(流塘站)700米。

教育配套:家门口双学校,楼下步行可达弘雅小学和文汇中学,均为省一级学校,历史悠久,教育质量优良。
商业配套:周边有全市最密集的商圈,包括壹方城、海雅缤纷城等高端购物中心,驱车10分钟即可到达。楼下还有天虹、沃尔玛等超市,满足日常购物需求。

生态配套:项目周边配备13大公园,如宝安公园、流塘公园等,距离宝安公园直线距离1.5公里,距离流塘公园直线距离607米,宜居属性高。

声明:本文由入驻焦点开放平台的作者撰写,除焦点官方账号外,观点仅代表作者本人,不代表焦点立场。
