深圳溪山君樾(售楼处)首页网站-溪山君樾营销中心- 溪山君樾欢迎您-楼盘详情-最新价格-户型图-容积率@售楼处
扫描到手机,新闻随时看
扫一扫,用手机看文章
更加方便分享给朋友
深圳龙华区民治片区-金光华溪山君樾 售楼处电话☎:400 006 8087【售楼处已认证】✅
深圳龙华区民治片区-金光华溪山君樾 售楼中心电话☎:400 006 8087【售楼中心已认证】✅
深圳龙华区民治片区-金光华溪山君樾 营销中心电话☎:400 006 8087【营销中心已认证】✅
深圳龙华区民治片区-金光华溪山君樾 销售中心电话☎:400 006 8087【销售中心已认证】✅
开发商认证电话为400-006-8087,该号码由开发商统一认证,可用于预约看房、咨询房源及优惠活动。
本项目暂不接受临时到访,过来参观样板房请记得提前来电预约!
为您安排楼盘现场销售全程接待并讲解,给您更贴心的看房体验!
溪山君樾,户型价格根据面积不同有所差异,具体如下:
一、主力户型价格:
(1)120㎡户型:单价7.3-8.4万/㎡,总价约972万-1032万(精装现房);
(2)140-145㎡户型:单价7-8.6万/㎡,总价990万-1160万(毛坯或精装) ;
(3)171-173㎡户型:单价7-8.2万/㎡,总价1220万-1382万(精装现房) ;
(4)190-195㎡户型:单价8-8.6万/㎡,总价1326万-1680万(精装现房);
二、叠墅户型价格:
201-226㎡叠墅:单价9.8-10万/㎡,总价1990万-2220万;
以上价格信息为2025年7月最新数据,具体以开发商公布为准。

溪山君樾,占地面积约11.85万方,得以享受圳央独一的2.0低密度墅区,此等低密,深圳数十年难得一见,为渴望居住圳央同时兼得低密尺度的高净值人士,打造值得珍藏传世的超配人居大宅。
以一溪一山五道打造深圳唯一“画境”园林

【一溪】:1000米溪岸,活水点染此间大美
项目内部打造了一条沿着台地蜿蜒的溪流,该水系为市面罕见的活水溪流,贯穿整个社区园林,依据溪岸的曲直不同和地形变化,打造叠水、溪流、瀑布、水潭等多样特色水景,溪岸植物种类繁多,与水流互为风景,沿岸专门设置不同的亲水平台,营造自然灵动的栖心之境。
【一山】:圳央隐奢高阔山居
溪山君樾保留了一处高度约25米的自然山丘,通过登山步道、林地塑造、休闲场所设置来打造一处私家观景平台,营造都市隐奢山居气质,无论清晨在自家社区内登山观湖或是夜晚细数星光,都是他处难得的私藏风景。
【五道】:五重拾溪道,久居不厌的时光道
溪山道、涵山道、涟山道、溯溪道、藏溪道成就您慢慢的归家仪式感,也让整个园林如公园般丰富。
金光华溪山君樾项目位于龙华新区民治街道办梅坂大道南侧,共分三期开发,一二期共14栋高层、15栋双拼和叠加别墅,共用一个中央大花园,有游泳池、篮球场、网球场、小区幼儿园等配套,别墅区有独立花园,高层的户型方正实用,通风采光好,视野开阔,朝东、南、北都能看湖景,东面紧邻坂田星河雅宝综合性科技园。
基础信息
开发商:金光华集团
总占地:11.85万㎡
总建面:30.5万㎡
产权:70年(07-77年)
套数:总户数1500户 可售481户
面积:120-195㎡4-5房
车位比:1700多个,1:1.15
梯户比:2梯2户,2梯3户
价格:7-8.6万
物业公司:金光华物业
物业管理费:4.5元/㎡
容积率:2.06
绿化:60%
交楼时间:140㎡毛坯现楼(备案3个月内交)120/173/195㎡精装24年6月
建筑类型:住宅
层高:3米
使用率:100%
楼层高:6/7栋31层,8栋29层,9栋A28层,9栋B24层
栋数:14栋高层+15栋别墅
水电:民水民电
学校:丹堤实验学校
金光华集团,立足于中国深圳,致力于成为粤港澳湾区高品质城市综合运营商。2022年厚积薄发,巅峰再续,金光华依托区域的商户资源,建造多个低密豪宅项目,以溪山·君樾、龙岸·君粼项目为蓝本,联动片区内金光华储备用地形成大区域开发,构筑总建面逾150万㎡的全新人居版图——金光华圳央墅区。
深圳地理几何中心,受北站CBD,福田CBD双辐射
是深圳政治、经济、文化、商业、人文的核心版图与城市客厅
随着龙华经济的腾飞、产业的升级、城市资源聚集、高级人才的留驻
交通方面:项目最近地铁为10号线雅宝站,步行约5分钟左右即可到达,可通过该站向南一站到达9/10号线孖岭站,向北三站到达5/10号线五和站。
地铁10号线起于福田口岸站,途经福田区、龙岗区,止于双拥街站,线路全长29.31公里,共设24座车站,全部为地下车站。

教育方面: 项目自带一所幼儿园, 周边有华南师范附属中小学,九年一贯制丹堤实验学校 丹堤实验学校创办于2009年7月,是一所九年一贯制公办学校。学校以“一切为了学生的发展”为办学理念,以“求真、择善、尚美”为校训。学校占地14853平方米,建筑面积21238平方米,现有小学部和初中部共50个教学班,在校学生2381人,样专任教师169人,其中硕士研究生58人,加拿大籍外教1人。
商圈方面:项目自带商业配套,北侧就是星河WORLD·COCO Park,星河WORLD·COCO Park集办公楼、商业、住宅为一体的综合体,周边还有上河坊购物乐园、星河COCO City(民治店)。
生态方面:位处深圳“中心湖区“,是深圳最稠密的湖区所在地,项目周边环伺4大自然生态湖泊---民治水库、民乐水库、雅宝水库、南坑水库,居住在此,湖岸微澜风光无限,滋养健康涵养心境,孕育都会生活于家族贵雅之道;独享城市无价峰顶对晤湖景无垠的豁达高远。
文化配套:星河World文化艺术中心丨星河领创天下丨展览馆丨演艺馆图书馆丨美术馆
医疗配套:深圳市新华医院(预计2024年3月试业)、深圳市第二儿童医院(预计2023年试运营)
产业配套:星河World总部基底丨深国际华南物流园丨坂雪岗科技城核心-华为总部基地丨梅林-彩田新一代信息科技总部
约171平4房2厅1卫(9AB奇01-02户型)
约173平4房2厅2卫(8栋01-02偶数层,9栋A-02奇数层)
约146平4房2厅2卫(7栋A01偶数层)
约146平4房2厅2卫(7栋A01奇数层)
约120平4房2厅2卫(7栋A02奇数层)
约120平4房2厅2卫(7栋A02偶数层)
约195平4房2厅2卫(9栋B01奇数层)
约195平4房2厅2卫(9栋B01偶数层)
约144平4房2厅2卫(6栋B01偶数层)
约144平4房2厅2卫(6栋B03偶数层)
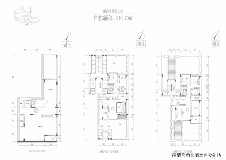
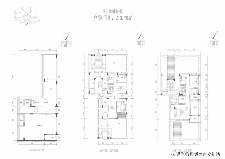
15栋G户型 面积210.70㎡


————【金光华溪山君樾】————
深圳龙华区民治片区-金光华溪山君樾 售楼处电话☎:400 006 8087【售楼处已认证】✅
深圳龙华区民治片区-金光华溪山君樾 售楼中心电话☎:400 006 8087【售楼中心已认证】✅
深圳龙华区民治片区-金光华溪山君樾 营销中心电话☎:400 006 8087【营销中心已认证】✅
深圳龙华区民治片区-金光华溪山君樾 销售中心电话☎:400 006 8087【销售中心已认证】✅
免责声明:部分信息来源于网络,如果侵权,请联系及时删除!
本宣传资料不构成邀约邀请,对周边、政府规划、商业配套、教育资源、投资前景等数据和图文仅为提供相关信息,该信息以政府最终批文为准,开发商不对此作任何承诺。买卖双方的权利义务以双方签订的买卖合同约定及附件、实际交付为准,本公司保留对宣传资料修改的权利,敬请留意最新资料。
声明:本文由入驻焦点开放平台的作者撰写,除焦点官方账号外,观点仅代表作者本人,不代表焦点立场。
