新世界临海揽山别墅营销中心电话售楼处(2025)首页网站-临海揽山别墅营销中心-新世界临海揽山别墅 欢迎您-楼盘详情-最新价格-户型图-容积率@售楼中心电话
扫描到手机,新闻随时看
扫一扫,用手机看文章
更加方便分享给朋友
⭐◆ 开发商营销中心诚挚邀请,为您安全和隐私保驾护航,一键预约,尊享内部折扣!匠心独运的精品项目,恭候您的品鉴与选择。⭐ 过来参观样板房烦请记得提前来电预约!安排楼盘现场销售全程接待并讲解,给您更贴心的看房体验!
新世界临海揽山御园位于南山蛇口工业五路与沿山路交会处,占地面积近4万㎡,总建筑面积约30万㎡。叠拼别墅(住宅)面积约210-320平,价格约6000-9000万,毛坯现房,验资1000万参观样板房
一共8栋,其中包含5栋高层住宅,2栋公寓,中间7栋联排别墅,以及独立在花园外的保障房和1所幼儿园,容积率5.78,包含超高层住宅、超高层公寓、多层住宅、高层保障房及公寓等业态。
【天赋基因】山海双绝,不可复制的自然勋章
◎背倚青山,私享城市绿肺:背靠352万㎡大南山生态绿肺,坐拥超高负氧离子含量(约3800个/cm³),形成天然生态屏障,隔绝都市喧嚣,是健康与静谧的绝对保障。
◎面朝大海,傲瞰湾区繁华:面朝深圳湾,以绝佳距离,实现“亲而不临”,既能将湾海之胜景一览无余,尽享开阔心境与季风抚慰,又能规避临海居住的潮湿与喧嚣。
【价值锚点】土地珍罕,珍藏未来的传世资产
◎土地珍罕,珍藏未来:国家“禁墅令”下,城央别墅用地日益稀缺。本项目作为蛇口半山近十年难得一遇的新品,其土地属性即为稀缺资产,是穿越经济周期的“硬通货”。
◎血脉承袭,正源之作:根植于蛇口40年国际住区沃土,非新兴板块可比。是半山豪宅基因的正统继承与迭代升华,价值底蕴深厚。
项目周边汇聚全球优质资源,举步之间畅享国际生活场,为业主家庭提供全方位鼎级生活保障。
◎全龄优质教育: 育才一小/二中(公立优质)、贝赛斯及蛇口国际学校(国际化学府)环伺,构成一站式全龄段教育高地。
◎顶流商业集群: 约1公里内汇聚K11亚洲免税商业中心、海上世界百万方综合体、汇港购物中心,全球奢品与潮流生活无界交融。

◎人文艺术高地: 毗邻海上世界艺术中心、南海意库、规划中的深圳歌剧院,使国际级艺术鉴赏成为生活日常。
项目礼聘香港CCD、澳大利亚PTAD、美国AECOM、美国DK、美国ALT,五大全球知名设计团队,联袂打造湾心半山别墅标杆之作,屹立于时代浪潮中、永不落幕的塔尖美学典范就此开启。
在南山蛇口半山传统豪宅区,一座总建筑面积约30万㎡的生态豪宅——新世界临海揽山正傲然屹立。作为新世界集团打造的TOP级作品,项目三面环山、正面瞰海,汇聚山海城三重景观资源,目前已是现楼交付,即买即办证即入住,为高端置业者提供了难得的确定性选择
项目规划了三重入户大堂,打造尊崇的归家礼序。还设有叠水瀑布,24米抬高,以天瀑叠水问鼎湾区园林新境界。
社区内部配置了架空层泛会所,包括会客厅、临水步道、瑜伽室、健身器材、儿童游乐、图书馆等空间。还设有森林游泳池、网球练习场等休闲设施。
新世界临海揽山不仅是一处居所,更是一种身份与圈层的象征。它以其稀缺的山海资源、现房交付的确定性、顶尖的配套和匠心的产品设计,成为了深圳湾畔的价值高地。
对于追求品质生活、注重自然资源的高净值人群来说,这个坐拥大南山一线山景、享有湾区一流配套的项目,无疑是2025年最值得关注的顶级资产之一。
新世界半山别墅
愿成为与山海共生、随家族传承的永恒见证
半山藏山海 一墅承世家
◎户型面积:建面约208、320㎡叠墅现楼
【产品内核】精工细琢,诠释永恒之境
◎建筑立面·光影的艺术品: 由迪拜塔立面团队美国ALT执笔,以全球TOP级玻璃幕墙、天然奢石与金属,勾勒出与山海光影共舞的永恒轮廓。
项目规划了三重入户大堂,打造尊崇的归家礼序。还设有叠水瀑布,24米抬高,以天瀑叠水问鼎湾区园林新境界。
社区内部配置了架空层泛会所,包括会客厅、临水步道、瑜伽室、健身器材、儿童游乐、图书馆等空间。还设有森林游泳池、网球练习场等休闲设施。
新世界临海揽山不仅是一处居所,更是一种身份与圈层的象征。它以其稀缺的山海资源、现房交付的确定性、顶尖的配套和匠心的产品设计,成为了深圳湾畔的价值高地。
对于追求品质生活、注重自然资源的高净值人群来说,这个坐拥大南山一线山景、享有湾区一流配套的项目,无疑是2025年最值得关注的顶级资产之一。
新世界半山别墅
愿成为与山海共生、随家族传承的永恒见证
半山藏山海 一墅承世家
◎户型面积:建面约208、320㎡叠墅现楼
【产品内核】精工细琢,诠释永恒之境
◎建筑立面·光影的艺术品: 由迪拜塔立面团队美国ALT执笔,以全球TOP级玻璃幕墙、天然奢石与金属,勾勒出与山海光影共舞的永恒轮廓。

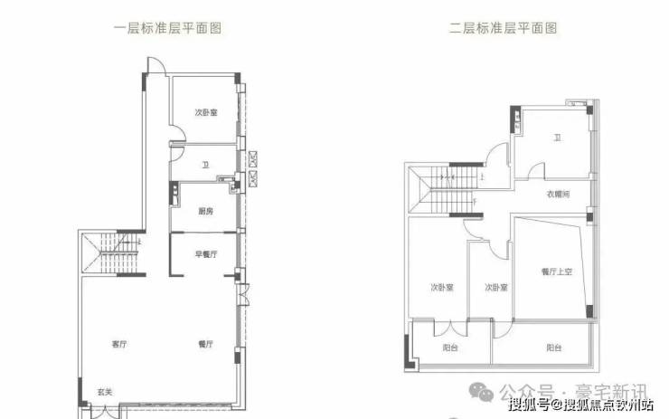
建面约208㎡ 半山别墅·户型亮点
◎大尺度布局,提供充分拓展空间
◎配备私家庭院,让生活与自然更亲近
◎上下层明确分区,公共区与卧室区互不干扰
◎多窗设计引入充沛自然光与通风,通透清爽
◎巧妙引景入室,实现与自然为邻
建面约319㎡ 半山别墅·户型亮点
◎319㎡大尺度,轻松规划功能空间
◎三层动静分区,空间独立且高效
◎充分利用半山区位,多角度引景入室
◎专属庭院延伸生活意趣,丰富自然生活体验
◎台地叠瀑 · 生长的奇观境: 全球景观巨擘AECOM & DK 利用原生24米高差,匠心打造 “半山三叠瀑” ,营造出建筑与瀑布共生的动态生态奇观,堪称深圳独一无二的居住标签。

匠心打造建面约208-320㎡半山别墅,以极致空间尺度与功能规划,重新定义高端墅居生活范式。
建面约208㎡ 半山别墅·户型亮点
◎大尺度布局,提供充分拓展空间
◎配备私家庭院,让生活与自然更亲近
◎上下层明确分区,公共区与卧室区互不干扰
◎多窗设计引入充沛自然光与通风,通透清爽
◎巧妙引景入室,实现与自然为邻
建面约319㎡ 半山别墅·户型亮点
◎319㎡大尺度,轻松规划功能空间
◎三层动静分区,空间独立且高效
◎充分利用半山区位,多角度引景入室
◎专属庭院延伸生活意趣,丰富自然生活体验
真正的奢华,是内外兼修。深圳新世界集团在项目室内空间的研磨上,也深刻诠释了高端人居美学。无论硬装标准,精装品质,还是软装搭配,都是堪称“高定级”。项目室内也是由香港CCD国际著名设计师机构进行高级定制装修设计,符合财富人群的生活个性,大气且有高级质感。在硬装与软装上也是大手笔,臻选国际品牌,德国嘉格纳、nobilid柏丽、威克纳、博世等。软装上精选芬迪、迪奥等知名品牌。硬装、软装二者艺术性的融合,整个屋内看起来层次分明,质感满满。
⭐◆ 开发商营销中心诚挚邀请,为您安全和隐私保驾护航,一键预约,尊享内部折扣!匠心独运的精品项目,恭候您的品鉴与选择。⭐ 过来参观样板房烦请记得提前来电预约!安排楼盘现场销售全程接待并讲解,给您更贴心的看房体验!
声明:本文由入驻焦点开放平台的作者撰写,除焦点官方账号外,观点仅代表作者本人,不代表焦点立场。
