热搜楼盘:华侨城宝辰(售楼处)首页网站-华侨城宝辰营销中心电话-华侨城宝辰最新价格-户型图-楼盘详情-容积率@售楼处中心2025.10.10
扫描到手机,新闻随时看
扫一扫,用手机看文章
更加方便分享给朋友
开发商:深圳华侨城西部置业有限公司
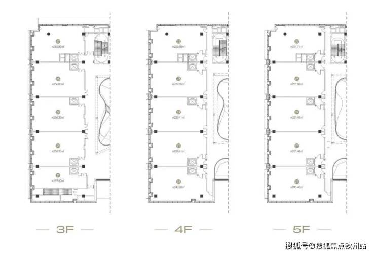
占地面积:约7817.25㎡
建筑面积:约136070㎡
总栋数:1栋
建筑高度:约230米(宝中天际线)
总楼层:52层
总房源:446套

产品类型:商办公寓
主力产品:建面约200-375㎡天幕藏品
层高:公寓4-4.1米,顶复6.3米层高
容积率:13.4
车位:400个
绿化率:10%
梯户比:八梯八户
交楼:2025年6月30精装
卖点:带阳台通燃气、不限购不限贷不限售、视野开阔

交通:项目为11号线宝安站上盖,周边汇聚了3地铁+3高速+4港口+国际机场
企业:项目1公里范围内约5万家高新企业,58家上市公司,腾讯、前海人寿、VIVO总部等名企林立
商业:壹方城、欢乐港湾、前海HOP天地等商业配套,精粹一城繁华
文体:深圳滨海艺术中心、湾区书城、宝安图书馆、宝安体育馆、青少年宫等市政配套皆铺陈于此
世界级湾区会客厅
1.2公里缤纷廊道、18公顷生态绿肺,湾区自然会客厅
『顶复』
面积:227㎡-276㎡(不含挑空),毛坯交付,约6.3m层高,俯揽一线山海云境,湾芯臻稀藏品。
『商墅』
【产品详情】13米极致层高(首层5.1米,二层4.5米,三层3.4米),3层立体空间,单套约718平,阔绰体面,舒适空间。
公积金首套:2.6% 二套:3.075%
声明:本文由入驻焦点开放平台的作者撰写,除焦点官方账号外,观点仅代表作者本人,不代表焦点立场。
