热搜焦点:中粮福田大悦广场售楼处电话>中粮福田大悦广场周边竞品对比→项目优劣势→售楼处电话发布@售楼处中心2025-09-03
扫描到手机,新闻随时看
扫一扫,用手机看文章
更加方便分享给朋友
【在售产品信息】
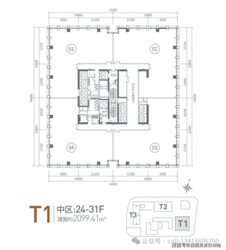
【楼栋】T1栋
【面积】446-2107㎡
【售价】3.5万/㎡起
【项目简介】
20万㎡集高端研发办公、总部大楼、菁英新贵住所、社区配套商业于一体商办综合体
⭕福田-“湾区总部之都”——世界金融磁力场
-------‐----‐-------------------------
作为中国三大金融中心之一,福田,是全国“含金量最高”的中央商务区(CBD)。为抢抓粤港澳大湾区和深圳先行示范区“双区叠加”的战略发展机遇,提高湾区核心总部经济集聚和辐射能级,福田区创建“湾区总部之都”,全力打造世界级湾区的总部经济发展标杆城区。
⭕“深圳智谷”芯核——迭代中轴商务格局
-------‐----‐-------------------------
深圳中央活力区、智能科技产业带、总部经济轴,三重战略赋能,“深圳智谷”应势而生。中粮 · 福田大悦广场择址于此,坐享超300万㎡城市更新红利,改写湾区商务芯格局。
⭕三大城势场域——会晤全球资本能量
-------‐----‐-------------------------
1【高效聚合场】- 链接世界的交通枢纽
•咫尺北环大道,与新洲干道交汇;
•快速接驳22号线梅丰站(规划中),约900米可达9号线下梅林站,高效换乘2、4、10号线,湾区出行迅捷无比。
•轨道口岸:享福田、皇岗双口岸,联动福田站、深圳北站双高铁,链接深港,对话世界。
2【活力生态场】- 涵养身心的天赋自然
•三山2水:塘朗山、梅林山、银湖山、梅林水库、香蜜湖
•三大公园:莲花山公园、上梅林公园、下梅林公园
3【中芯繁华场】- 精粹集优的CBD旗舰
•百万繁盛商圈🎰卓悦汇、佐阾虹湾、卓悦中心、皇庭广场……
•6大福田旗舰??深圳音乐厅、深圳少年宫、关山月美术馆、深圳图书馆、深圳博物馆、深圳市当代艺术与城市规划馆
•2大梅彩地标🗼深圳文学艺术中心(规划中)、国际体育文化交流中心(规划中)
【T1栋研发办公基础信息】


•建面约446-2107㎡办公空间
•约187米高5A甲级封面商务地标,领潮福田中轴之上,为总部企业造湾芯商务资产。
•对标国际商务范本,以中空LOW-E超白钢化玻璃及高性能铝板打造极简幕墙立面,玻璃宽约2.4m,大气磅礴,大美至简。



公积金首套:2.6% 二套:3.075%

声明:本文由入驻焦点开放平台的作者撰写,除焦点官方账号外,观点仅代表作者本人,不代表焦点立场。
