。◕‿◕。热搜楼盘:太子湾108府售楼处电话-太子湾108府最新房价|户型|价格@2025.10.10营销中心
扫描到手机,新闻随时看
扫一扫,用手机看文章
更加方便分享给朋友
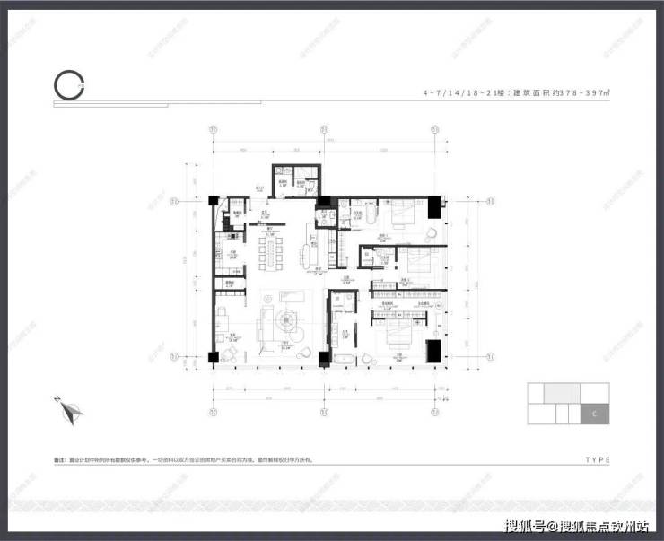
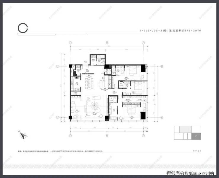
南山太子湾108府项目位于深圳蛇口核心位置港湾大道首排,背靠大南山、面朝深圳湾,建面198-336-384㎡,三种户型都有样板房,户型方正通透景观好,欢迎预约品鉴!
—太子湾108府·时代新贵总裁行馆—
总占地:约1.2万㎡
总建面:约4.2万㎡
面积段:约184-970㎡总裁瞰海资产
总层数/可售楼层:21层/4-21层
绿化率:30.64%
产权:40年产权
总套数:108套
层高:4.5m
停车位:约190个
二、【项目区域介绍】
——超级湾区「粤港澳大湾区」——
世界经贸集散地 再度于此勃兴
3大“世界级邮轮母港”、5大“千亿级国际空港”、港口货柜吞吐量约6800万标箱、机场货邮量超810万吨、机场旅客量约2.23亿人次。
——超级矩阵「9+2城市动脉」——
湾区前排 无可复制的战略位置
🗺粤港澳大湾区国家战略,由香港、澳两个特别行政区和广东省广州、深圳、珠海、佛山、惠州、东莞、中山、江门、肇庆九个珠三角城市组成的世界级城市群,是中国开放程度最高、经济活力最强的区域之一。
——超级门户「太子湾邮轮母港」——
让深圳引以为傲的海上门户 由此启幕
🛳太子湾,是招商蛇口保留的最优地块之一,斥资3000亿打造,联袂全球大师,以170万㎡筑就航母级国际滨海城,一如悉尼地标Darling Harbour,代言城市繁华名片。整个片区规划了70万m²的高端商务集群,其中一栋382米超甲级写字楼将成为新地标。片区还规划有超五星级酒店、旗舰商业、多所国际学校、国际医院等,几乎包含一座城市的所有功能。
——超级坐标「太子湾108府」——
并非一切成功 皆有相知匹配
立体交通,紧邻太子湾地铁站(在建)和邮轮母港,一小时内通达大湾区
旗舰商业,紧邻亚洲旗舰K11+DPARK,享受体量超100万㎡的海上世界综合体
教育配套,片区汇集了深圳80%的国际教育资源
医疗配套,紧邻太子湾国际医院,为健康保驾护航
🏔生态资源,片区坐拥7座滨海公园,私享环幕海景、大小南山
三 、【项目六大价值点】
⚓【环幕视野 一线海景】高踞邮轮母港之上,270°环幕视界
⚓【品牌设计 精心研磨】知名设计团队精心研磨,定制奢阔产品
⚓【阔绰大堂 彰显品味】9米挑高大堂精心打造,标杆豪宅品质
⚓【顶尖品牌 只为总裁】全球顶尖品牌,打造品质生活
⚓【日式风格 匠心打造】日本枯山水园林风格,罗汉松旺宅益主
⚓【品牌封面 百年物业】百年招商局,40年招商蛇口匠心打造,大师精奢设计,招商物业服务,定制尊崇物管
四、【项目实景鉴赏】

公积金首套:2.6% 二套:3.075%
声明:本文由入驻焦点开放平台的作者撰写,除焦点官方账号外,观点仅代表作者本人,不代表焦点立场。
